My Search Tools:

$2,721,250 - 169 Tranquil Mirror Lake Court Lot 7, CLERMONT

4
Bedrooms
5
Baths
4,990
SQ. Feet
0.3
Acres

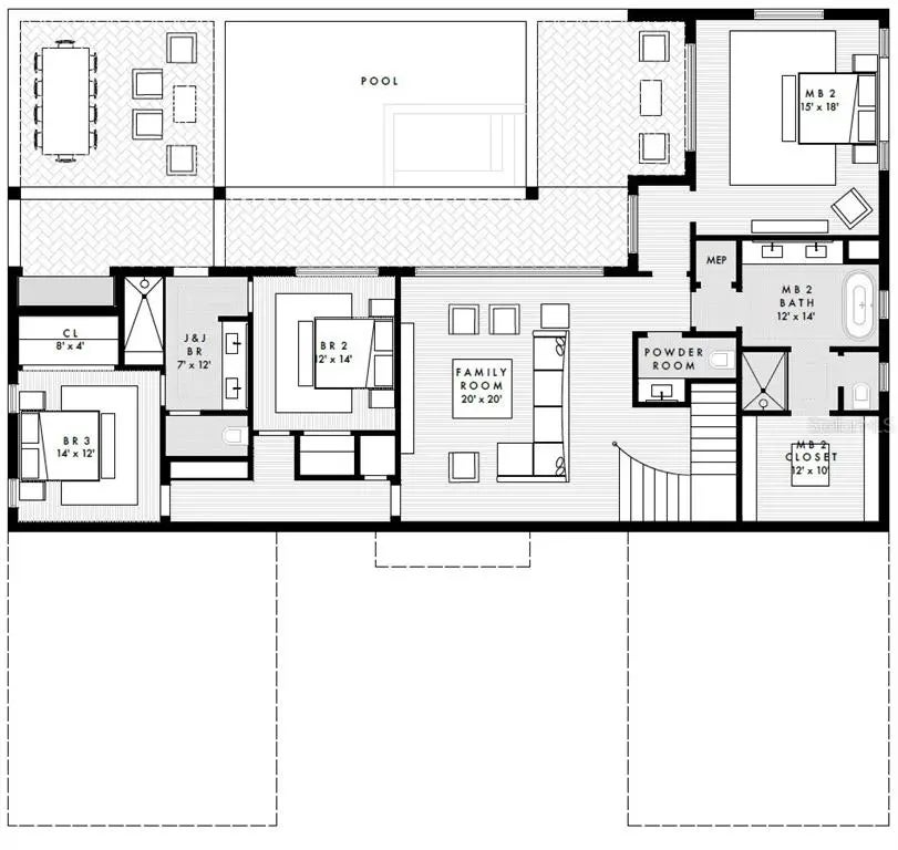
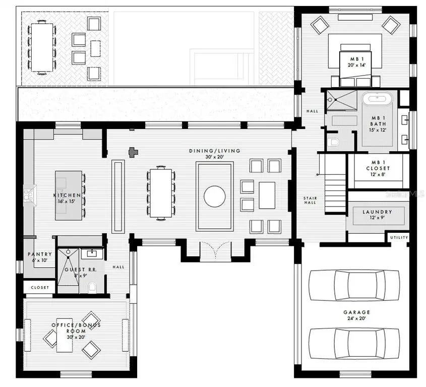
Pre-Construction. To be built. Introducing a premier LAKEFRONT elevated homesite within an exclusive gated luxury community. With expansive views across serene natural landscapes and tranquil water, this homesite truly stands out. Its higher position on the lake provides a rare vantage point, enhancing privacy while capturing sweeping panoramas and the charm of an active orange grove across the water. With approximately 90 feet of direct lake frontage and 90 feet of street frontage, the lot provides a generous and flexible building envelope suitable for a range of architectural expressions. Designed as a refined retreat for elevated everyday living, the proposed 4,990 sq ft Nottingham residence blends architectural presence with warmth, comfort, and intentional design. Thoughtfully composed living spaces, curated materials, and layered natural light create a home that feels both elegant and effortless. The floor plan is intentionally adaptable, offering options for additional bedrooms, expanded garage capacity, and enhanced outdoor living environments while maintaining timeless craftsmanship. The main floor includes the Primary suite, office/bonus room, 2 full baths, living room, kitchen and pantry, dining room, laundry, and a 2-car garage. The lower lakefront level includes 3 additional bedrooms and 2 additional baths, a powder room, and dedicated poolside living, ideal for entertaining or multi-generational living. Situated within Mirror Lake, an intimate gated community of just 21 homesites, residents enjoy an uncommon pairing of lakefront serenity and wide-open golf course vistas from the adjacent Clermont National Golf Course. The setting offers privacy, exclusivity, and a lifestyle defined by natural beauty and architectural distinction. This exceptional lot and custom designed home present a rare opportunity to build a luxury residence in one of Central Florida’s most captivating lakefront enclaves, offering privacy, exclusivity, and a thoughtful architectural vision. More than a place to live, Mirror Lake is a retreat for those who appreciate distinction, natural beauty, and a lifestyle designed with intention and differentiation. Close to all things but miles away in Lifestyle, this unique homesite is one of the most captivating sites in Mirror Lake —offering a timeless setting and an extraordinary canvas for your custom home. Call us to reserve this extraordinary Lot while you meet with MAREA Homes to explore this home design further and take next steps to making Mirror Lake your "Dream Home Come True!" There may be additional design fees from the Builder if the offered Home design is materially changed by  Buyer.

Essential Information

  • MLS® #:
    O6391722
  • Price:
    $2,721,250
  • Bedrooms:
    4
  • Bathrooms:
    5.00
  • Full Baths:
    4
  • Half Baths:
    1
  • Square Footage:
    4,990
  • Acres:
    0.30
  • Year Built:
    2027
  • Type:
    Residential
  • Sub-Type:
    Single Family Residence
  • Status:
    Active

Community Information

  • Address:
    169 Tranquil Mirror Lake Court Lot 7
  • Area:
    Clermont
  • Subdivision:
    MIRROR LAKE
  • City:
    CLERMONT
  • County:
    Lake
  • State:
    FL
  • Zip Code:
    34711

Amenities

  • Amenities:
    Gated
  • # of Garages:
    2
  • View:
    Water
  • Is Waterfront:
    Yes
  • Waterfront:
    Lake Front
  • Has Pool:
    Yes

Interior

  • Interior Features:
    Eating Space In Kitchen, Living Room/Dining Room Combo, Open Floorplan, Walk-In Closet(s)
  • Appliances:
    Dishwasher, Microwave, Range, Refrigerator
  • Heating:
    Electric
  • Cooling:
    Central Air
  • Fireplace:
    Yes
  • Fireplaces:
    Living Room
  • # of Stories:
    2

Exterior

  • Exterior Features:
    Outdoor Kitchen
  • Roof:
    Shingle
  • Foundation:
    Slab

School Information

  • Elementary:
    Grassy Lake Elementary
  • Middle:
    East Ridge Middle
  • High:
    Lake Minneola High

Additional Information

  • Days on Market:
    30

Listing Details

  • Listing Office:
    Resolute Development Group, Llc

Listing information courtesy of Resolute Development Group, Llc.

All listing information is deemed reliable but not guaranteed and should be independently verified through personal inspection by appropriate professionals. Listings displayed on this website may be subject to prior sale or removal from sale; availability of any listing should always be independently verified.

Listing information is provided for consumer personal, non-commercial use, solely to identify potential properties for potential purchase; all other use is strictly prohibited and may violate relevant federal and state law.

Listing data comes from My Florida Regional MLS.

Listing information last updated on April 23rd, 2026 at 3:07am EDT.