My Search Tools:

$0 - 14 E Washington Street, ORLANDO

-
Bedrooms
-
Baths
42,088
SQ. Feet
0.2
Acres

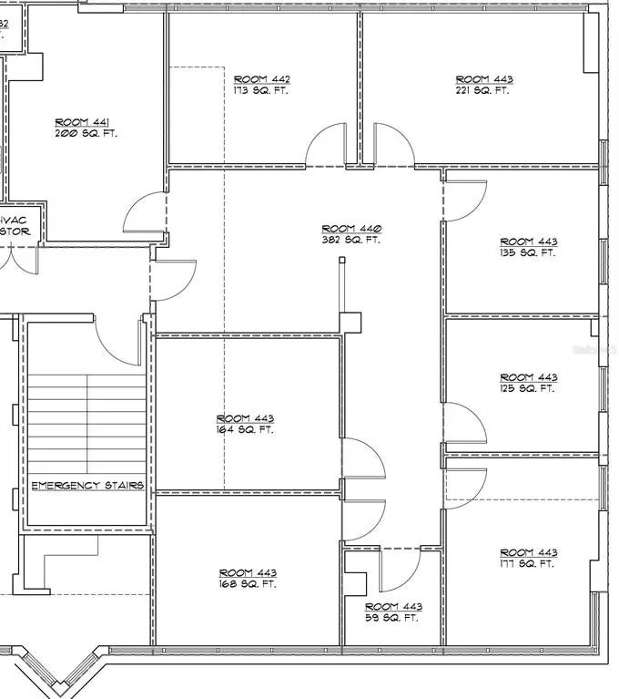
Historic Office building in Downtown, Orlando, FL. Several Office Spaces available from 100 SF- 6,830 SF. 14 E Washington Street is an ideally located six-story office building in the heart of Downtown Orlando's Central Business District (CBD). Showcasing 3,411 square feet of ground-floor retail space, previously utilized as a bank, boasting a distinctive two-level floor plan, future tenants can expect tenant improvements (TI) from the landlord and additional incentives from the City of Orlando. The upper floors provide a variety of office spaces suited for individual entrepreneurs, small businesses, and larger companies seeking expansive work environments. Significant building improvements are underway, including a modernized lobby, updated exterior façade, enhanced amenities, and state-of-the-art LED lighting throughout the hallways and lobby. Enjoying prominent visibility with unobstructed building signage at the signalized intersection of Orange Avenue and Washington Street, 14 E Washington Street sees an impressive 15,600 vehicles daily (AADT). Parking is convenient with the adjacent Jefferson Street parking garage and Central Boulevard garage. Surrounding the building is a vibrant mix of restaurants, including the local favorite Schmankerl Stub’n, banking facilities, and entertainment venues like the Kia Center and Dr. Phillips Center for the Performing Arts. For travelers, nearby accommodations include the Grand Bohemian Hotel and Aloft Orlando Downtown. With a daytime population exceeding 255,092 within a 10-minute radius, this location is just two blocks from the scenic Lake Eola, three blocks from the Orange County Courthouse, and five blocks from City Hall. Public transit options, including SunRail and Lynx bus services, provide seamless access to Interstate 4, State Road 408, and E Colonial Road, making 14 E Washington Street an optimal choice for businesses looking to thrive in Downtown Orlando.

Essential Information

  • MLS® #:
    O6259483
  • Square Footage:
    42,088
  • Acres:
    0.20
  • Year Built:
    1942
  • Type:
    Commercial Lease
  • Sub-Type:
    Office
  • Status:
    Active

Community Information

  • Address:
    14 E Washington Street
  • Area:
    Orlando
  • Subdivision:
    ROBERT R REIDS ADD
  • City:
    ORLANDO
  • County:
    Orange
  • State:
    FL
  • Zip Code:
    32801

Interior

  • Cooling:
    Central Air
  • # of Stories:
    6

Exterior

  • Foundation:
    Basement

Additional Information

  • Days on Market:
    514
  • Zoning:
    AC-3A/T/HP

Listing Details

  • Listing Office:
    Trust Realty Usa, Llc

Listing information courtesy of Trust Realty Usa, Llc.

All listing information is deemed reliable but not guaranteed and should be independently verified through personal inspection by appropriate professionals. Listings displayed on this website may be subject to prior sale or removal from sale; availability of any listing should always be independently verified.

Listing information is provided for consumer personal, non-commercial use, solely to identify potential properties for potential purchase; all other use is strictly prohibited and may violate relevant federal and state law.

Listing data comes from My Florida Regional MLS.

Listing information last updated on April 20th, 2026 at 12:40pm EDT.