My Search Tools:

$409,000 - 1533 Blue Sky Way, CLERMONT

4
Bedrooms
3
Baths
2,390
SQ. Feet
0.13
Acres

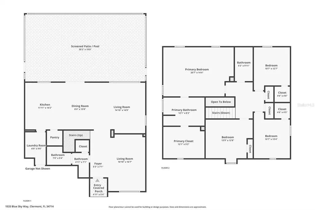
Get ready for fun in the sun at this delightful 2390 sq ft home in the gated Highlands at Summerport community! Step inside a bright, open-concept living, dining, and kitchen area, perfect for entertaining. The gourmet kitchen boasts beautiful wooden cabinets, a central island, ample counter space, matching appliances, and a walk-in pantry, making meal prep a breeze. The first floor offers incredible flexibility with a full bath featuring a walk-in shower, alongside a versatile flex space easily transformed into an office, game room, playroom, or an additional bedroom. A dedicated first-floor laundry room adds convenience. Upstairs, a spacious master suite provides a private sanctuary and features a walk-in closet. The master bathroom is a luxurious retreat with a glass-enclosed separate shower and a relaxing soaking tub. Generously sized additional bedrooms ensure comfortable living, with two of them also featuring walk-in closets. Step outside to your own private screened-in pool with a sunning patio area that overlooks a tranquil pond – your personal oasis! The community enhances your lifestyle with a community pool, clubhouse, fitness center, and playground. Zoned for Sawgrass Bay Elementary, East Ridge Middle, and East Ridge High Schools, and less than 15 minutes from Walt Disney World! Enjoy easy access to Lake Louisa State Park, historic downtown Clermont, South Lake Hospital, and W. Scott Orlando Park. This home is truly where fun meets convenience!

Essential Information

  • MLS® #:
    G5108855
  • Price:
    $409,000
  • Bedrooms:
    4
  • Bathrooms:
    3.00
  • Full Baths:
    3
  • Square Footage:
    2,390
  • Acres:
    0.13
  • Year Built:
    2005
  • Type:
    Residential
  • Sub-Type:
    Single Family Residence
  • Style:
    Florida
  • Status:
    Active

Community Information

  • Address:
    1533 Blue Sky Way
  • Area:
    Clermont
  • Subdivision:
    SUNRISE LAKES PH II SUB
  • City:
    CLERMONT
  • County:
    Lake
  • State:
    FL
  • Zip Code:
    34714-4979

Amenities

  • # of Garages:
    2
  • View:
    Water
  • Has Pool:
    Yes

Interior

  • Interior Features:
    Built-in Features, Ceiling Fan(s), Eating Space In Kitchen, Kitchen/Family Room Combo, Living Room/Dining Room Combo, PrimaryBedroom Upstairs, Walk-In Closet(s)
  • Appliances:
    Disposal, Electric Water Heater, Microwave, Range, Range Hood, Refrigerator
  • Heating:
    Central
  • Cooling:
    Central Air

Exterior

  • Exterior Features:
    Private Entrance, Sliding Doors
  • Lot Description:
    Level, Sidewalk
  • Roof:
    Shingle
  • Foundation:
    Slab

Additional Information

  • Days on Market:
    53
  • Zoning:
    PUD

Listing Details

  • Listing Office:
    Era Grizzard Real Estate

Listing information courtesy of Era Grizzard Real Estate.

All listing information is deemed reliable but not guaranteed and should be independently verified through personal inspection by appropriate professionals. Listings displayed on this website may be subject to prior sale or removal from sale; availability of any listing should always be independently verified.

Listing information is provided for consumer personal, non-commercial use, solely to identify potential properties for potential purchase; all other use is strictly prohibited and may violate relevant federal and state law.

Listing data comes from My Florida Regional MLS.

Listing information last updated on April 22nd, 2026 at 10:23pm EDT.