My Search Tools:

$1,995,000 - 805 South Gulfview Boulevard 305b, CLEARWATER BEACH

2
Bedrooms
3
Baths
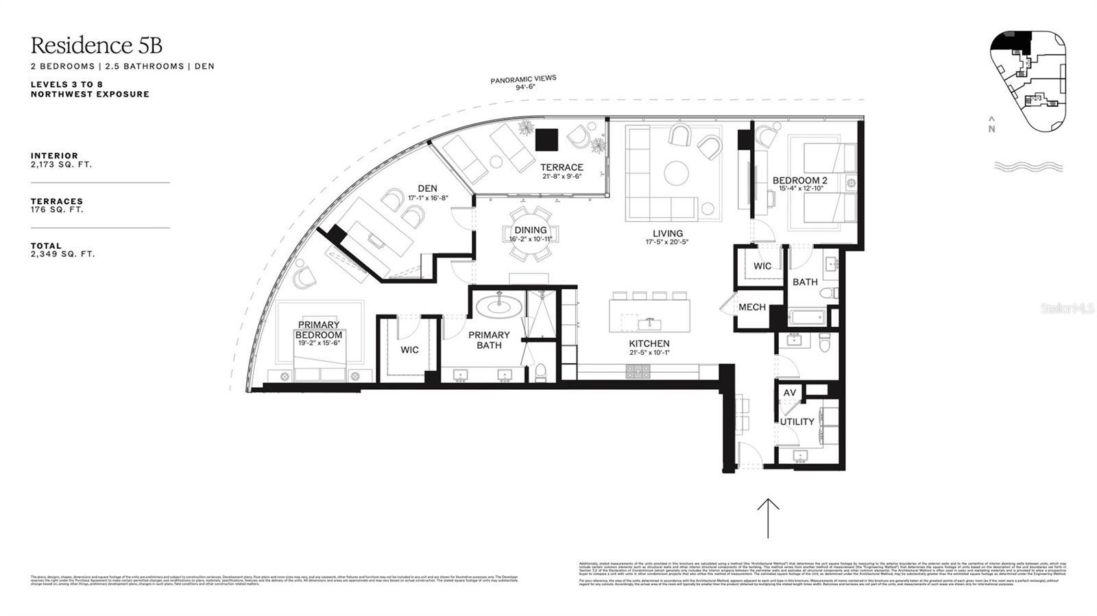
2,173
SQ. Feet
3.03
Acres

Pre-Construction. To be built. Experience the pinnacle of modern coastal luxury at Viceroy Residences on Clearwater Beach. Featuring two nine-story towers designed by Randall Stofft Architects with interiors by Steven G. This limited collection of just 86 private residences, including eight ultra-luxury penthouses, offers an unmatched combination of privacy, design excellence, and five-star services in one of Florida’s most coveted beachfront destinations. This landmark property is the first luxury condominium in the region built with advanced resiliency features, offering peace of mind with gas-powered backup generators, full-residence backup power, impact-rated glass rated for 165 MPH winds, and elevated structures exceeding 500-year flood level standards. Each home is thoughtfully designed with soaring 10-foot ceilings, floor-to-ceiling windows, and expansive terraces showcasing breathtaking Gulf views. Interior features include Italian porcelain flooring throughout, Italian cabinetry, European quartz countertops, and kitchen appliances by Sub-Zero® and Wolf®. Residents enjoy a full suite of resort-style amenities, including a luxurious pool with private cabanas, 270 feet of secluded private beachfront with a beach bar and fire pit, a private restaurant and pool bar with full food and beverage service, and a serene sunset deck for unwinding at the end of the day. The building offers an elevated standard of service and security with full-time reception, concierge, valet, porter, and 24/7 guarded access, ensuring a seamless luxury living experience. Residents enjoy the convenience of keyless residential entry with secure guest registration, along with on-demand pool and beach attendants supported by a dedicated full-service Experience Manager. Additional lifestyle offerings include a state-of-the-art fitness center and yoga room with sweeping Gulf views, a full-service spa with sauna, steam rooms, and hot and cold plunge pools, as well as a media room, resident clubhouse, kids club, teen gaming center, and multiple resident lounges. Pets are welcome. Perfectly positioned on the white sands of Clearwater Beach, this new construction luxury condo delivers breathtaking Gulf of Mexico sunset views, world-class amenities, and effortless beachfront living. A rare opportunity to own a high-end, hurricane-resilient, waterfront residence in one of Florida’s most desirable coastal markets.

Essential Information

  • MLS® #:
    TB8472814
  • Price:
    $1,995,000
  • Bedrooms:
    2
  • Bathrooms:
    3.00
  • Full Baths:
    2
  • Half Baths:
    1
  • Square Footage:
    2,173
  • Acres:
    3.03
  • Year Built:
    2027
  • Type:
    Residential
  • Sub-Type:
    Condominium
  • Status:
    Active

Community Information

  • Address:
    805 South Gulfview Boulevard 305b
  • Area:
    Clearwater/Clearwater Beach
  • Subdivision:
    VICEROY RESIDENCES CLEARWATER BEACH
  • City:
    CLEARWATER BEACH
  • County:
    Pinellas
  • State:
    FL
  • Zip Code:
    33767

Amenities

  • Parking:
    Assigned, Covered
  • # of Garages:
    2
  • Is Waterfront:
    Yes
  • Waterfront:
    Beach Front, Gulf/Ocean

Interior

  • Interior Features:
    Eat-in Kitchen, High Ceilings, Open Floorplan, Primary Bedroom Main Floor, Solid Wood Cabinets, Split Bedroom, Stone Counters, Thermostat, Walk-In Closet(s), Window Treatments
  • Appliances:
    Built-In Oven, Convection Oven, Cooktop, Dishwasher, Disposal, Electric Water Heater, Freezer, Ice Maker, Microwave, Range Hood, Refrigerator, Wine Refrigerator
  • Heating:
    Electric
  • Cooling:
    Central Air
  • # of Stories:
    9

Exterior

  • Exterior Features:
    Balcony, Sliding Doors
  • Roof:
    Membrane
  • Foundation:
    Slab

Additional Information

  • Days on Market:
    22
  • Zoning:
    T

Listing Details

  • Listing Office:
    Vcwb Development Sales, Llc

Listing information courtesy of Vcwb Development Sales, Llc.

All listing information is deemed reliable but not guaranteed and should be independently verified through personal inspection by appropriate professionals. Listings displayed on this website may be subject to prior sale or removal from sale; availability of any listing should always be independently verified.

Listing information is provided for consumer personal, non-commercial use, solely to identify potential properties for potential purchase; all other use is strictly prohibited and may violate relevant federal and state law.

Listing data comes from My Florida Regional MLS.

Listing information last updated on February 27th, 2026 at 8:18pm EST.