My Search Tools:

$1,250,000 - 28700 Corbara Place, WESLEY CHAPEL

5
Bedrooms
5
Baths
3,758
SQ. Feet
0.24
Acres

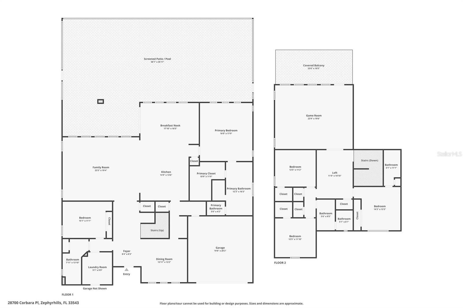
Luxury, sophistication, and resort-style living are masterfully combined in this exceptional estate residence within the prestigious, gated community of Estancia in Wesley Chapel. Designed and built by Standard Pacific, this expansive two-story home offers five bedrooms and four bathrooms, delivering an elegant balance of architectural presence and functional design suited for both refined everyday living and upscale entertaining. A professionally integrated smart home system provides seamless control of lighting, climate, security, and audio/video throughout the residence, enhancing both comfort and convenience. Multiple living and entertainment spaces offer versatility for hosting, relaxing, or multi-generational living, all unified by thoughtful flow and upscale finishes. The heart of the home is the chef’s kitchen, beautifully appointed with an oversized island, Wolf appliances, soft-close cabinetry, under-cabinet lighting, wine refrigerator, and premium finishes—effortlessly opening to the main living area for a truly connected entertaining experience. Tile flooring grounds the main level with timeless elegance, while newer carpet adds warmth and comfort to the upper level. The primary suite is a private sanctuary, offering a spa-inspired bath with a freestanding soaking tub, custom closet system, and refined finishes designed for relaxation and retreat. Every detail reflects quality craftsmanship and intentional design. Significant upgrades elevate the home further, including two new HVAC systems installed in 2025, custom Lutron motorized shades, plantation shutters, smart lighting, a central vacuum system, flat tile roof, and a paver driveway—underscoring both luxury and long-term value. Outdoor living is equally exceptional, featuring a private, heated saltwater pool and spa framed by covered and screened entertaining spaces, creating a serene and private backdrop for year-round enjoyment. Whether hosting or unwinding, this outdoor retreat offers both elegance and functionality. Residents of Estancia enjoy exclusive access to resort-style amenities including a grand clubhouse, pool, fitness center, tennis and basketball courts, scenic nature trails, and dog parks. Ideally positioned near Wiregrass Mall, Tampa Premium Outlets, top medical facilities, dining, and major commuter routes, this residence delivers an unparalleled blend of luxury, lifestyle, and location. A truly rare opportunity to own a move-in-ready estate home in one of Wesley Chapel’s most distinguished gated communities.

Essential Information

  • MLS® #:
    TB8469571
  • Price:
    $1,250,000
  • Bedrooms:
    5
  • Bathrooms:
    5.00
  • Full Baths:
    4
  • Half Baths:
    1
  • Square Footage:
    3,758
  • Acres:
    0.24
  • Year Built:
    2015
  • Type:
    Residential
  • Sub-Type:
    Single Family Residence
  • Status:
    Active

Community Information

  • Address:
    28700 Corbara Place
  • Area:
    Zephyrhills/Wesley Chapel
  • Subdivision:
    ESTANCIA
  • City:
    WESLEY CHAPEL
  • County:
    Pasco
  • State:
    FL
  • Zip Code:
    33543

Amenities

  • Parking:
    Driveway
  • # of Garages:
    3
  • View:
    Water
  • Has Pool:
    Yes

Interior

  • Interior Features:
    Built-in Features, Ceiling Fans(s), Central Vaccum, Crown Molding, Eat-in Kitchen, High Ceilings, Kitchen/Family Room Combo, Open Floorplan, Other, Primary Bedroom Main Floor, Smart Home, Solid Surface Counters, Split Bedroom, Stone Counters, Thermostat, Tray Ceiling(s), Walk-In Closet(s), Window Treatments
  • Appliances:
    Built-In Oven, Cooktop, Dishwasher, Disposal, Dryer, Electric Water Heater, Exhaust Fan, Microwave, Range, Range Hood, Refrigerator, Washer, Wine Refrigerator
  • Heating:
    Central, Electric
  • Cooling:
    Central Air

Exterior

  • Exterior Features:
    Balcony, Lighting, Other, Outdoor Grill, Outdoor Kitchen, Sidewalk, Sliding Doors
  • Lot Description:
    Sidewalk, Paved
  • Roof:
    Tile
  • Foundation:
    Slab

School Information

  • Elementary:
    Wiregrass Elementary
  • Middle:
    John Long Middle-PO
  • High:
    Wiregrass Ranch High-PO

Additional Information

  • Days on Market:
    45
  • Zoning:
    MPUD

Listing Details

  • Listing Office:
    54 Realty Llc

Listing information courtesy of 54 Realty Llc.

All listing information is deemed reliable but not guaranteed and should be independently verified through personal inspection by appropriate professionals. Listings displayed on this website may be subject to prior sale or removal from sale; availability of any listing should always be independently verified.

Listing information is provided for consumer personal, non-commercial use, solely to identify potential properties for potential purchase; all other use is strictly prohibited and may violate relevant federal and state law.

Listing data comes from My Florida Regional MLS.

Listing information last updated on March 15th, 2026 at 10:48pm EDT.