My Search Tools:

$735,000 - 6115 Anchorage Way S, ST PETERSBURG

3
Bedrooms
3
Baths
1,920
SQ. Feet
0.02
Acres

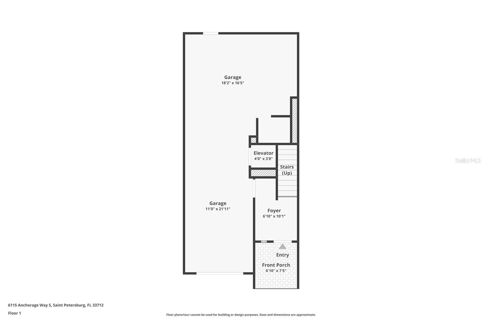
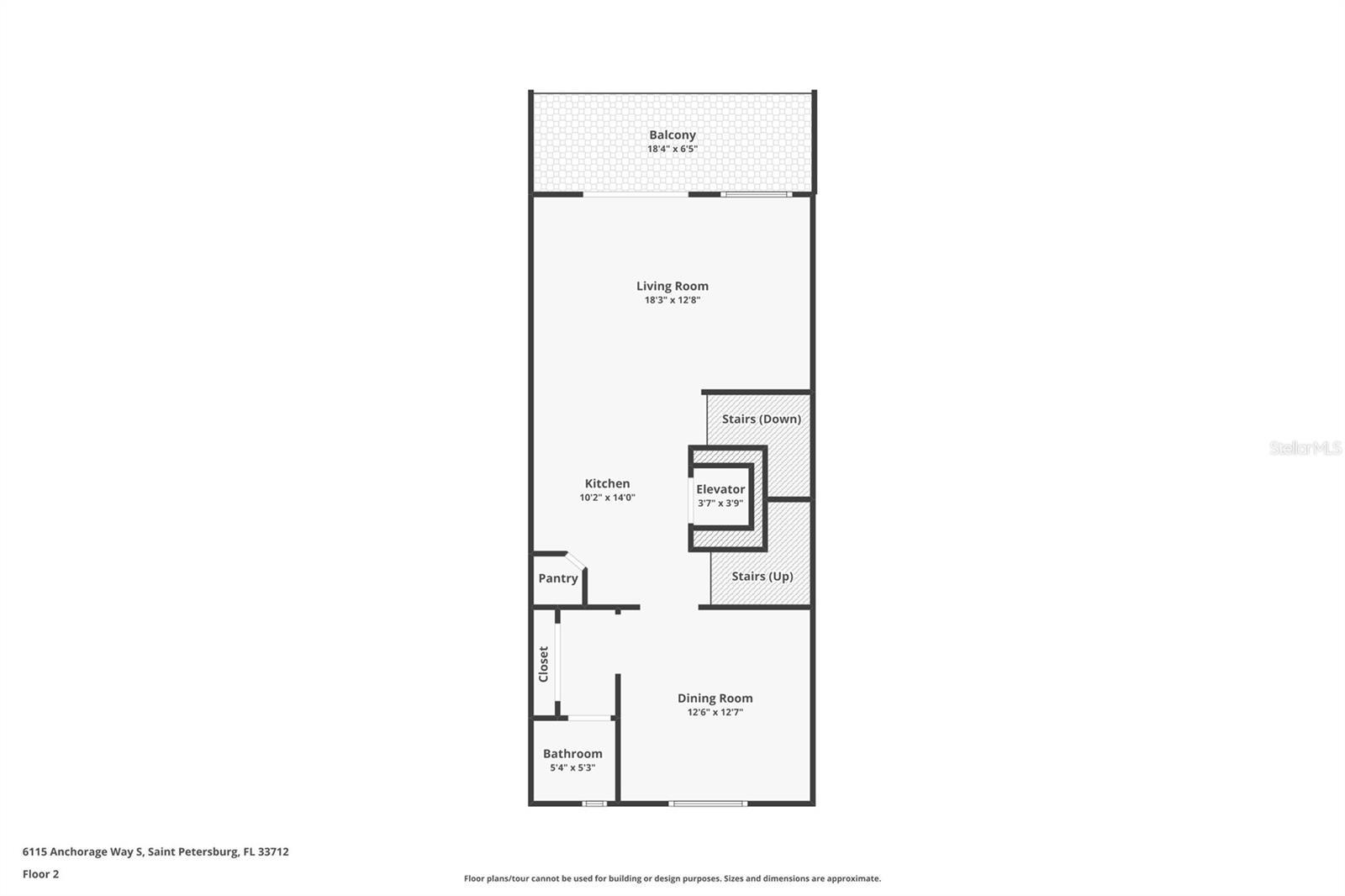
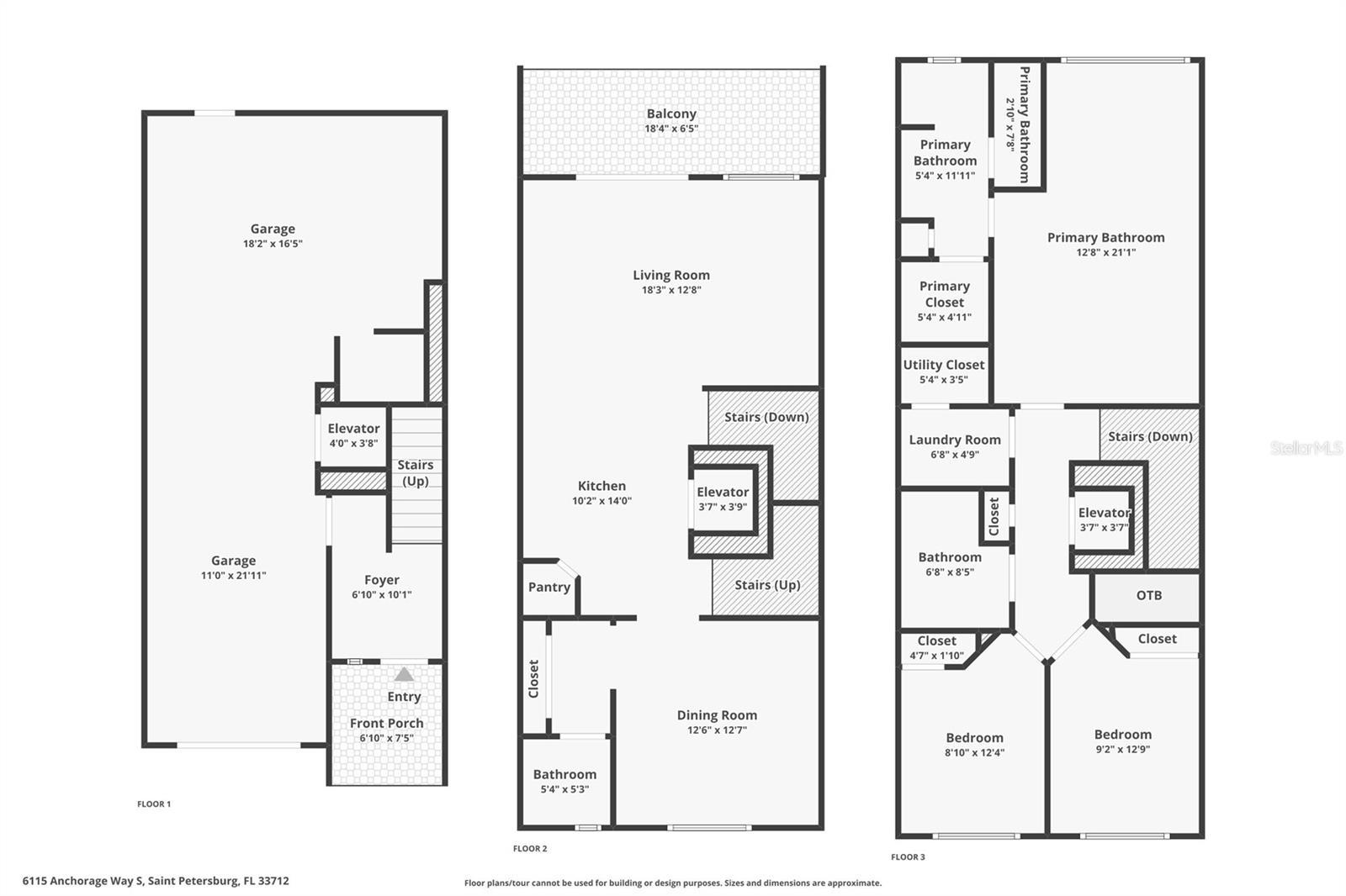
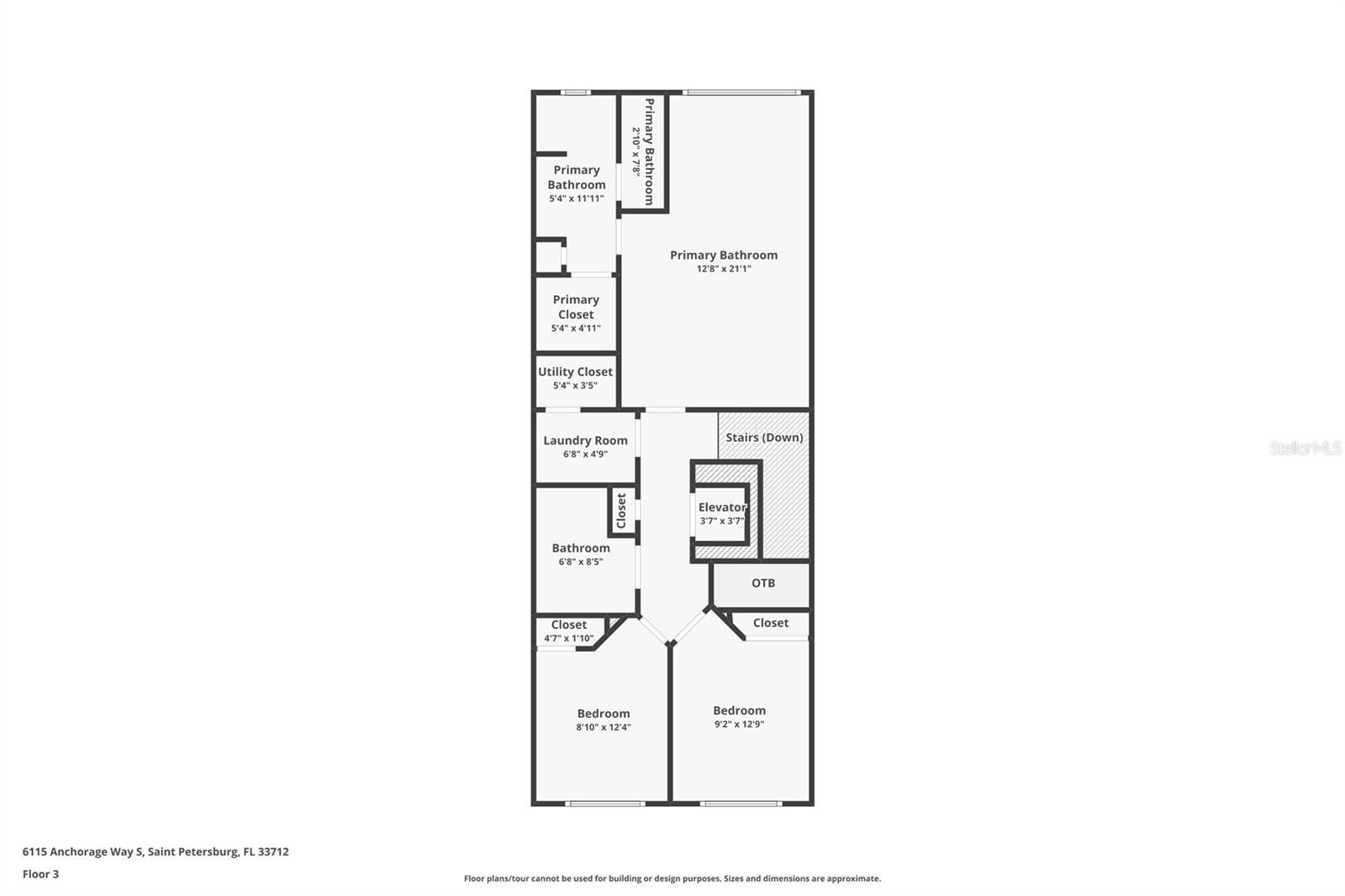
Experience elevated waterfront living in this impeccably updated three-level townhouse at Loggerhead Cove, where refined design meets serene canal views and glowing west-facing sunsets. Thoughtfully reimagined with high-end, stylish finishes & high ceilings throughout, this residence offers a sophisticated yet comfortable retreat for discerning buyers seeking both elegance and lifestyle. The placement of this unit is one of the best within this exclusive gated community. Best of all, the unit experienced NO FLOODING from 2024 storms. The main living level is designed for seamless entertaining and everyday luxury. A beautifully updated kitchen anchors the space, featuring premium finishes and a large, statement bar that serves as both a functional workspace and a natural gathering point. Whether hosting intimate dinners or lively evenings with friends, the open layout flows effortlessly into the dining and living areas, all framed by expansive windows that capture shimmering water views and dramatic sunset skies. Across three levels, the home provides a stylish array of bedrooms. The Primary overlooks the water and provides beautiful views of the sunset. Generous living spaces are complemented by refined details and modern aesthetic that feels timeless and upscale. A private elevator gets you and your belongings comfortably to any of the 3 levels. One of the standout features of this home is its canal-front setting, offering tranquil water views and a constant connection to the outdoors. The west-facing orientation ensures evenings are bathed in warm natural light, creating an ever-changing backdrop that enhances both daily living and entertaining. Enjoy peaceful mornings by the water and unwind at sunset as the sky reflects across the canal. The bottom floor is a tandem 2 car garage and work area. Walk out the back door and enjoy a ground floor terrace overlooking the water. The location is ideal, with quick access to 275, you can get anywhere you need to be with ease. Enjoy shopping only a few blocks away, you’re over the Skyway in minutes and have a direct route into Downtown St. Pete. Walk throughout this gated community with ease, and enjoy some time at the community pool. The monthly HOA includes water, sewer, trash, exterior maintenance, insurance and use of pool, clubhouse and other common spaces. This townhome combines low-maintenance living with the luxury of a prime water view. Ideal for buyers seeking a refined primary residence or an upscale coastal retreat.

Essential Information

  • MLS® #:
    TB8464364
  • Price:
    $735,000
  • Bedrooms:
    3
  • Bathrooms:
    3.00
  • Full Baths:
    2
  • Half Baths:
    1
  • Square Footage:
    1,920
  • Acres:
    0.02
  • Year Built:
    2015
  • Type:
    Residential
  • Sub-Type:
    Townhouse
  • Style:
    Key West
  • Status:
    Active

Community Information

  • Address:
    6115 Anchorage Way S
  • Area:
    St Pete
  • Subdivision:
    COVE AT LOGGERHEAD MARINA
  • City:
    ST PETERSBURG
  • County:
    Pinellas
  • State:
    FL
  • Zip Code:
    33712

Amenities

  • Amenities:
    Clubhouse, Gated
  • # of Garages:
    2
  • View:
    Water

Interior

  • Interior Features:
    Ceiling Fans(s), Elevator, High Ceilings, Stone Counters
  • Appliances:
    Bar Fridge, Dishwasher, Disposal, Microwave, Range, Refrigerator, Wine Refrigerator
  • Heating:
    Central
  • Cooling:
    Central Air
  • # of Stories:
    3

Exterior

  • Exterior Features:
    Sidewalk, Sliding Doors
  • Roof:
    Metal
  • Foundation:
    Slab

School Information

  • Elementary:
    Maximo Elementary-PN
  • Middle:
    Bay Point Middle-PN
  • High:
    Lakewood High-PN

Additional Information

  • Days on Market:
    38

Listing Details

  • Listing Office:
    Dalton Wade Inc

Listing information courtesy of Dalton Wade Inc.

All listing information is deemed reliable but not guaranteed and should be independently verified through personal inspection by appropriate professionals. Listings displayed on this website may be subject to prior sale or removal from sale; availability of any listing should always be independently verified.

Listing information is provided for consumer personal, non-commercial use, solely to identify potential properties for potential purchase; all other use is strictly prohibited and may violate relevant federal and state law.

Listing data comes from My Florida Regional MLS.

Listing information last updated on February 22nd, 2026 at 8:18am EST.