My Search Tools:

$800,000 - 104 South Maki Road, PLANT CITY

3
Bedrooms
3
Baths
2,526
SQ. Feet
0.23
Acres

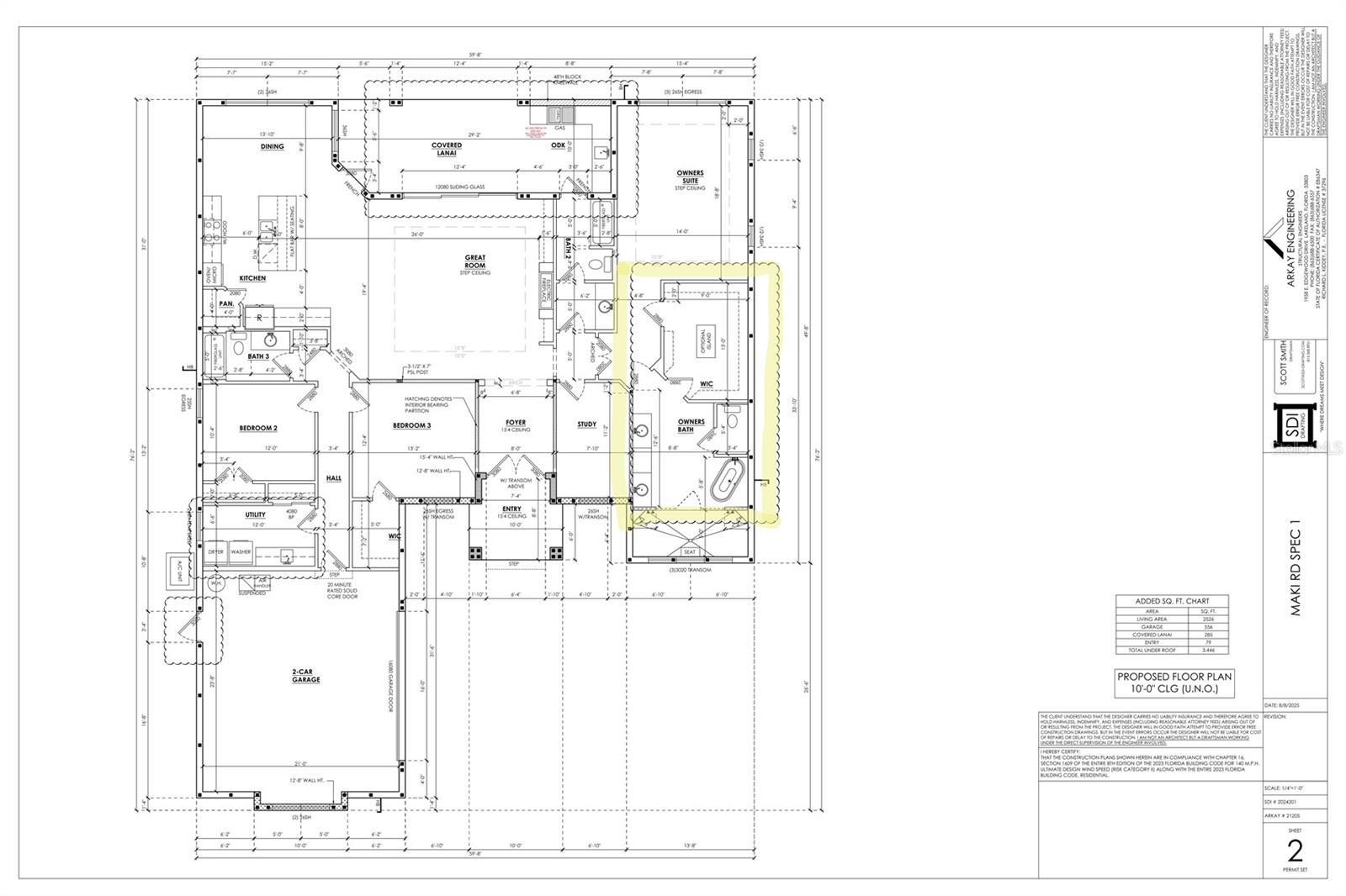
Under Construction. Luxury new construction featuring solid block masonry construction and a refined modern contemporary design. This beautifully crafted residence offers 2,526 square feet of living space and 3,446 square feet total under roof, with 3 bedrooms, 3 full bathrooms, and a den/study.Interior finishes include granite countertops, ceramic tile flooring throughout, and fully tiled showers. Oversized rooms and an open floor plan create a bright and elegant living environment. The spacious laundry room is thoughtfully designed with a wash basin, additional cabinetry, and extra storage.The chef’s kitchen features premium cabinetry, a breakfast bar, built-in pantry, and generous counter space—ideal for entertaining and everyday living. Additional highlights include a 3-car side-load attached garage, 5-panel shaker interior doors with ornamental hardware, and upgraded decorative plumbing and light fixtures.The luxurious primary suite features a spa-inspired bath with a double walk-in shower, soaking tub, twin separate vanity sinks, and a large 9 x 13 walk-in closet. Outdoor living is elevated with a covered lanai, fully sodded yard with irrigation system, gutters, and a built-in outdoor kitchen complete with grill and sink, all within a fenced rear yard. The home is completed with a high-end TPO roof system.Located in Plant City with no HOA and no flood zone and connected to city water and sewer. Includes a one-year builder’s warranty. Estimated completion is mid- to late February 2026. All renderings, drawings, floor plans, elevations, and specifications are conceptual and for marketing purposes only. The completed home may differ in design, materials, dimensions, features, and finishes. Seller and Listing Broker make no guarantees or representations regarding final construction. Buyer acknowledges that all information must be independently verified.

Essential Information

  • MLS® #:
    TB8462012
  • Price:
    $800,000
  • Bedrooms:
    3
  • Bathrooms:
    3.00
  • Full Baths:
    3
  • Square Footage:
    2,526
  • Acres:
    0.23
  • Year Built:
    2025
  • Type:
    Residential
  • Sub-Type:
    Single Family Residence
  • Style:
    Contemporary
  • Status:
    Active

Community Information

  • Address:
    104 South Maki Road
  • Area:
    Plant City
  • Subdivision:
    MC DONALD TERRACE
  • City:
    PLANT CITY
  • County:
    Hillsborough
  • State:
    FL
  • Zip Code:
    33563

Amenities

  • Parking:
    Driveway, Garage Door Opener, Garage Faces Side, Ground Level, Off Street, Oversized
  • # of Garages:
    3
  • View:
    City

Interior

  • Interior Features:
    Ceiling Fans(s), Open Floorplan, Primary Bedroom Main Floor, Solid Surface Counters, Split Bedroom, Walk-In Closet(s)
  • Appliances:
    Dishwasher, Electric Water Heater, Exhaust Fan, Microwave, Range Hood, Refrigerator
  • Heating:
    Central, Electric
  • Cooling:
    Central Air
  • Fireplace:
    Yes
  • Fireplaces:
    Decorative, Electric

Exterior

  • Exterior Features:
    French Doors, Rain Gutters, Sidewalk
  • Lot Description:
    City Limits, Level
  • Roof:
    Membrane, Other, Tile
  • Foundation:
    Stem Wall

School Information

  • Elementary:
    Burney-HB
  • Middle:
    Tomlin-HB
  • High:
    Plant City-HB

Additional Information

  • Days on Market:
    26
  • Zoning:
    R-1A

Listing Details

  • Listing Office:
    Realty Advisor Experts

Listing information courtesy of Realty Advisor Experts.

All listing information is deemed reliable but not guaranteed and should be independently verified through personal inspection by appropriate professionals. Listings displayed on this website may be subject to prior sale or removal from sale; availability of any listing should always be independently verified.

Listing information is provided for consumer personal, non-commercial use, solely to identify potential properties for potential purchase; all other use is strictly prohibited and may violate relevant federal and state law.

Listing data comes from My Florida Regional MLS.

Listing information last updated on February 14th, 2026 at 1:48am EST.