My Search Tools:

$1,250 - 8075 112th Street 303, SEMINOLE

1
Bedrooms
1
Baths
704
SQ. Feet
0.25
Acres

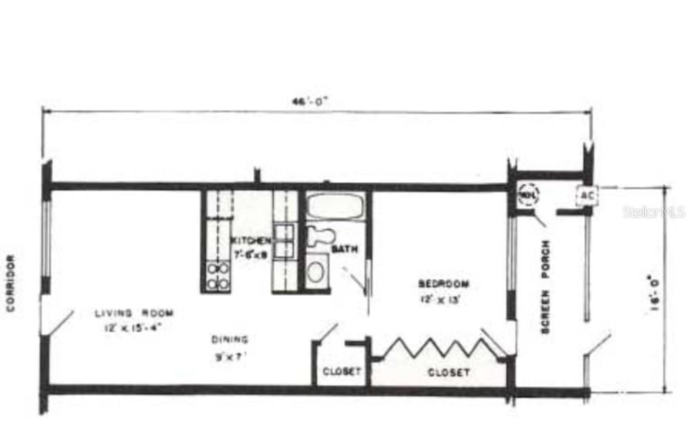
No Flood Zone - Non Evacuation Zone: Welcome to this peaceful one-bedroom, one-bath home in a well-cared-for 55+ community right in the heart of Seminole, ideally located between Clearwater and St. Petersburg. The community spans 53 beautifully landscaped acres and offers elevator access, assigned parking, and a calm, comfortable setting you’ll feel the moment you arrive. This unit features a bonus room overlooking one of the community’s two lakes. It’s the perfect spot for morning coffee, a small office, or simply a quiet place to relax and enjoy the view. The home comes partially furnished with a wood entertainment center, couch, table, lamp, queen adjustable Sealy Posturepedic mattress, bedroom TV, desk, and office chair. Laminate and Tile throughout. It’s truly move-in ready. Just bring your clothes and personal touches. Seminole Gardens offers fantastic amenities, including a heated pool, hot tub, steam sauna, community center, pool table, library, game room, fitness area, and shuffleboard courts. There is a Seminole Garden community bus which offers FREE bus rides. There is a bus stop right in front of the building and multiple pickup times throughout the day. Get to know your neighbors by joining in on the activities and clubs at the clubhouse. Shopping, restaurants, and everyday conveniences are all within easy walking distance. You’ll appreciate the laundry facilities located on the first floor just outside the elevator, along with your own private locked storage area. Mailboxes are conveniently located directly in front of your assigned parking spot. Best of all, you’re just minutes from the Gulf beaches while enjoying a quiet, non-evacuation, no flood zone location. One small dog or cat is allowed with a non-refundable pet fee. This is an easy, comfortable place to call home. If you’ve been looking for something quiet, convenient, and well-located, this one is worth seeing. Schedule your showing today.

Essential Information

  • MLS® #:
    TB8457015
  • Price:
    $1,250
  • Bedrooms:
    1
  • Bathrooms:
    1.00
  • Full Baths:
    1
  • Square Footage:
    704
  • Acres:
    0.25
  • Year Built:
    1967
  • Type:
    Residential Lease
  • Sub-Type:
    Condominium
  • Status:
    Active

Community Information

  • Address:
    8075 112th Street 303
  • Area:
    Seminole
  • Subdivision:
    SEMINOLE GARDEN APTS CO-OP
  • City:
    SEMINOLE
  • County:
    Pinellas
  • State:
    FL
  • Zip Code:
    33772

Amenities

  • Amenities:
    Clubhouse, Elevator(s), Pool, Sauna, Shuffleboard Court, Spa/Hot Tub
  • View:
    Water

Interior

  • Interior Features:
    Ceiling Fans(s), Living Room/Dining Room Combo, Open Floorplan, Primary Bedroom Main Floor, Thermostat, Walk-In Closet(s), Window Treatments
  • Appliances:
    Dishwasher, Electric Water Heater, Microwave, Other, Range, Refrigerator
  • Heating:
    Central
  • Cooling:
    Central Air
  • # of Stories:
    1

Exterior

  • Lot Description:
    In County, Landscaped, Near Golf Course, Near Marina, Near Public Transit, Sidewalk, Paved, Unincorporated

School Information

  • Elementary:
    Seminole Elementary-PN
  • Middle:
    Osceola Middle-PN
  • High:
    Seminole High-PN

Additional Information

  • Days on Market:
    15

Listing Details

  • Listing Office:
    Treasured Home Collection

Listing information courtesy of Treasured Home Collection.

All listing information is deemed reliable but not guaranteed and should be independently verified through personal inspection by appropriate professionals. Listings displayed on this website may be subject to prior sale or removal from sale; availability of any listing should always be independently verified.

Listing information is provided for consumer personal, non-commercial use, solely to identify potential properties for potential purchase; all other use is strictly prohibited and may violate relevant federal and state law.

Listing data comes from My Florida Regional MLS.

Listing information last updated on December 31st, 2025 at 9:04am EST.