My Search Tools:

$1,069,000 - 11500 Gulf Boulevard 313, TREASURE ISLAND

2
Bedrooms
2
Baths
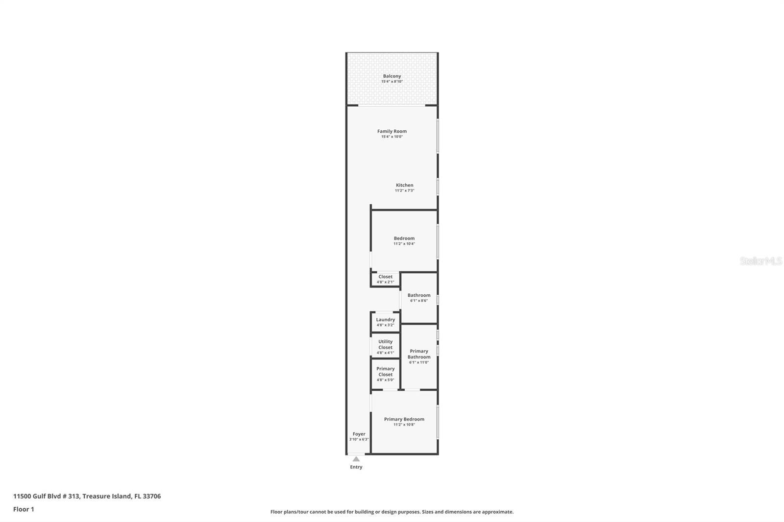
1,009
SQ. Feet
2023
Year Built

HIGH OCCUPANCY (83% average 2025 YTD) & INCOME GENERATING NIGHTLY RENTAL- This is your chance to own a LUXURY HOTEL SUITE at Ocean Club on Treasure Island. This 2-bedroom, 2-bathroom residence with just over 1000 heated square feet is your chance to own a prime piece of paradise with superior views, privacy, and value. Positioned on the 3rd Floor, this CORNER UNIT delivers unobstructed GULF AND BEACH VIEWS. Awesome direct sightlines to Treasure Island’s expansive beach. This is a rare opportunity to own one of the CORNER UNITS with extra windows and more natural light. This is also the only unit in the entire building with shutters installed in the living room area for added privacy. Located in the heart of Treasure Island Beach Trail, Ocean Club provides direct access to biking, walking, and beach activities, all without crossing a single street. The amenities are second to none, featuring an expansive resort pool and oversized hot tub, a state-of-the-art fitness center, a private sandy beach area and volleyball court, a rooftop terrace and bar area that functions as a beachfront casual food and sports bar, ample covered and open parking with a garage spot included with purchase, a 24-hour concierge, and an onsite proven rental and housekeeping management team. This turnkey unit comes FULLY FURNISHED, including impact glass windows, a deep private terrace, premium appliances, full-size washer & dryer, kitchenware, and stylish decor- everything you need for a seamless transition into beachfront ownership. Enjoy up to 30 consecutive days of personal use as a unit owner! Unlike many beachfront rental properties, Ocean Club’s onsite rental program offers industry-leading flexibility, giving owners the best of both worlds. Lucrative rental income potential and generous personal-use allowances. Pet-friendly and rental-friendly, you can choose any rental management company, but we highly recommend the onsite team, boasting one of the lowest on-site management fees in the area at just 20%

Essential Information

  • MLS® #:
    TB8449033
  • Price:
    $1,069,000
  • Bedrooms:
    2
  • Bathrooms:
    2.00
  • Full Baths:
    2
  • Square Footage:
    1,009
  • Acres:
    0.00
  • Year Built:
    2023
  • Type:
    Residential
  • Sub-Type:
    Condo - Hotel
  • Status:
    Active

Community Information

  • Address:
    11500 Gulf Boulevard 313
  • Area:
    Pass a Grille Bch/St Pete Bch/Treasure Isl
  • Subdivision:
    OCEAN CLUB TREASURE ISLAND A RESORT CONDO
  • City:
    TREASURE ISLAND
  • County:
    Pinellas
  • State:
    FL
  • Zip Code:
    33706

Amenities

  • Amenities:
    Elevator(s), Fitness Center, Pool, Spa/Hot Tub
  • Parking:
    Basement
  • # of Garages:
    1
  • View:
    Water

Interior

  • Interior Features:
    Kitchen/Family Room Combo, Open Floorplan, Window Treatments
  • Appliances:
    Dishwasher, Dryer, Electric Water Heater, Microwave, Range, Refrigerator, Washer
  • Heating:
    Central
  • Cooling:
    Central Air
  • # of Stories:
    6

Exterior

  • Exterior Features:
    Balcony, Lighting, Sliding Doors
  • Roof:
    Other
  • Foundation:
    Slab

Additional Information

  • Days on Market:
    72

Listing Details

  • Listing Office:
    Arc Realty Group

Listing information courtesy of Arc Realty Group.

All listing information is deemed reliable but not guaranteed and should be independently verified through personal inspection by appropriate professionals. Listings displayed on this website may be subject to prior sale or removal from sale; availability of any listing should always be independently verified.

Listing information is provided for consumer personal, non-commercial use, solely to identify potential properties for potential purchase; all other use is strictly prohibited and may violate relevant federal and state law.

Listing data comes from My Florida Regional MLS.

Listing information last updated on January 29th, 2026 at 2:20am EST.