My Search Tools:

$997,900 - 925 16th Avenue N, ST PETERSBURG

5
Bedrooms
3
Baths
2,838
SQ. Feet
0.15
Acres

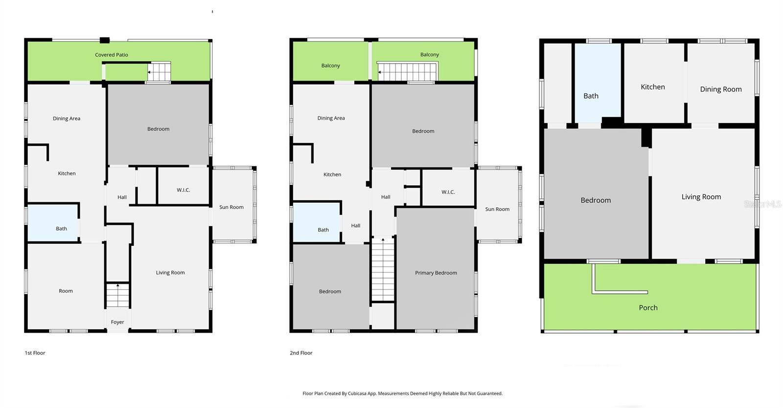
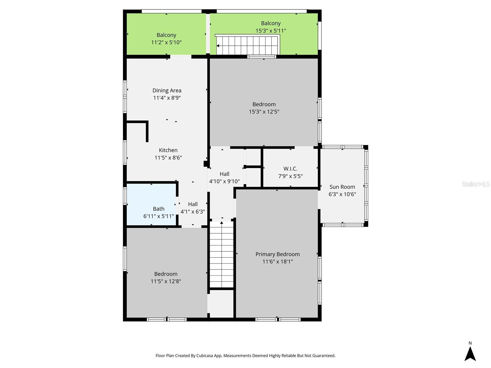
Located in the highly desirable Euclid St. Paul’s neighborhood of St. Petersburg, this recently restored triplex perfectly blends historic charm with modern updates. The property features a versatile unit mix, including two spacious 2-bedroom, 1-bathroom units (each approximately 1,131 sq. ft.) offering large rear porches, sunrooms, dining areas, and separate laundry hookups, as well as one 1-bedroom, 1-bathroom garage apartment (576 sq. ft.) with its own laundry hookup, covered porch, and a two-car garage below. The front building is constructed entirely of concrete block—including both floors and the floor system between—while the detached garage apartment is wood frame construction. Each unit enjoys abundant natural light, spacious layouts, and a tasteful combination of modern finishes and original period details. Property features include separate electric meters for each unit and one shared water/sewer/trash meter, ample parking, and inviting common spaces for tenants. Situated on a charming brick street just steps from Crescent Lake Park and only minutes to downtown St. Petersburg, this property offers the perfect opportunity for investors or those looking to live in one unit and rent out the others. A truly turnkey, income-producing property in one of St. Pete’s most sought-after neighborhoods.

Essential Information

  • MLS® #:
    TB8448105
  • Price:
    $997,900
  • Bedrooms:
    5
  • Bathrooms:
    3.00
  • Square Footage:
    2,838
  • Acres:
    0.15
  • Year Built:
    1925
  • Type:
    Residential Income
  • Sub-Type:
    Triplex
  • Status:
    Active

Community Information

  • Address:
    925 16th Avenue N
  • Area:
    St Pete/Euclid
  • Subdivision:
    HILCREST
  • City:
    ST PETERSBURG
  • County:
    Pinellas
  • State:
    FL
  • Zip Code:
    33704

Amenities

  • Parking:
    Garage Faces Rear, Ground Level, Guest, Open
  • # of Garages:
    2
  • View:
    City

Interior

  • Interior Features:
    Eat-in Kitchen, Solid Surface Counters, Walk-In Closet(s), Window Treatments
  • Appliances:
    Electric Water Heater, Range, Refrigerator
  • Heating:
    Electric
  • Cooling:
    Central Air, Mini-Split Unit(s)

Exterior

  • Exterior Features:
    Sidewalk, Storage
  • Lot Description:
    City Limits, Level, Oversized Lot, Sidewalk
  • Roof:
    Shingle
  • Foundation:
    Slab

Additional Information

  • Days on Market:
    79

Listing Details

  • Listing Office:
    Keller Williams St Pete Realty

Listing information courtesy of Keller Williams St Pete Realty.

All listing information is deemed reliable but not guaranteed and should be independently verified through personal inspection by appropriate professionals. Listings displayed on this website may be subject to prior sale or removal from sale; availability of any listing should always be independently verified.

Listing information is provided for consumer personal, non-commercial use, solely to identify potential properties for potential purchase; all other use is strictly prohibited and may violate relevant federal and state law.

Listing data comes from My Florida Regional MLS.

Listing information last updated on January 31st, 2026 at 1:35pm EST.