My Search Tools:

$2,399,000 - 6760 29th Street S, ST PETERSBURG

4
Bedrooms
4
Baths
3,699
SQ. Feet
0.52
Acres

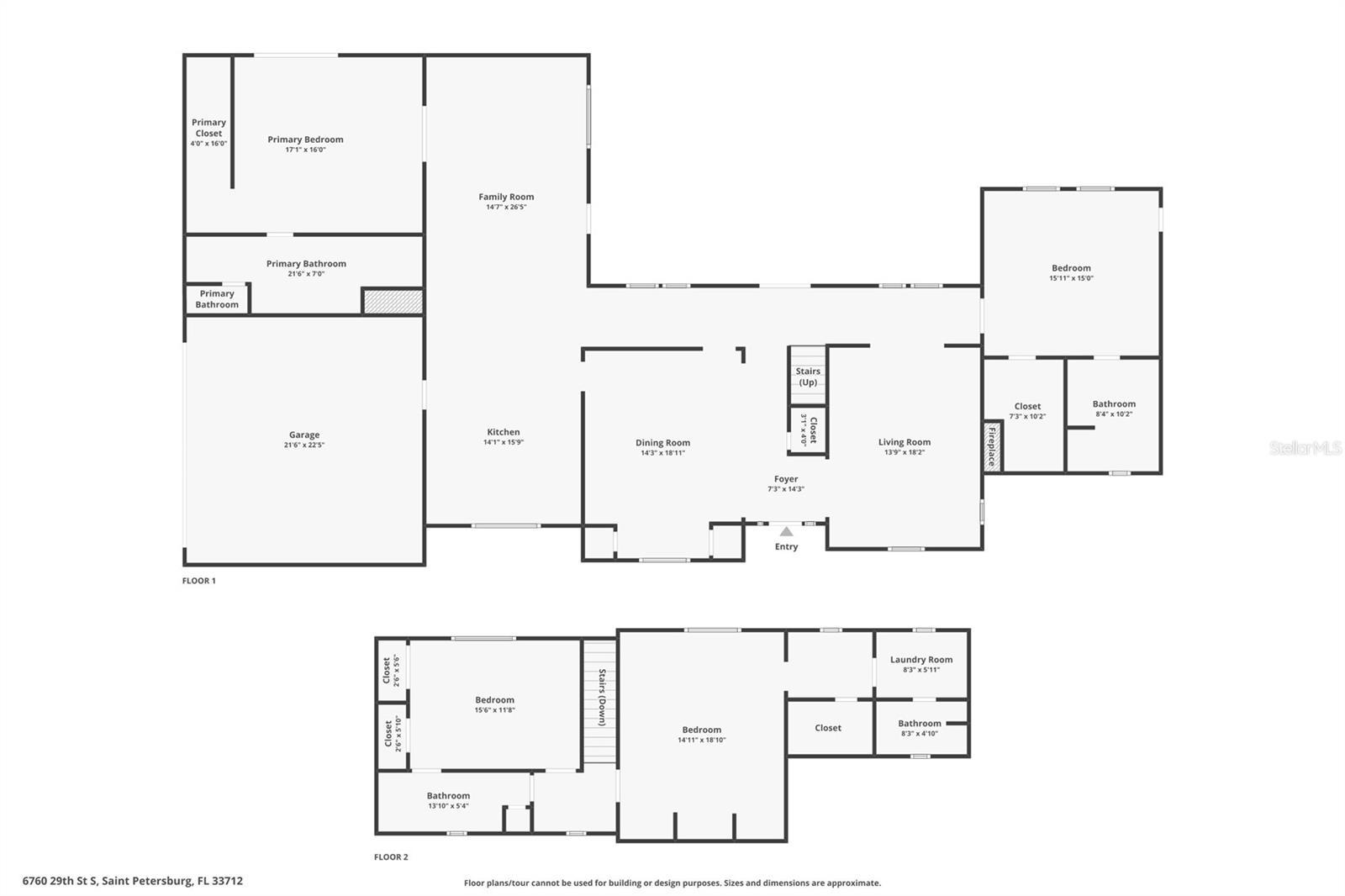
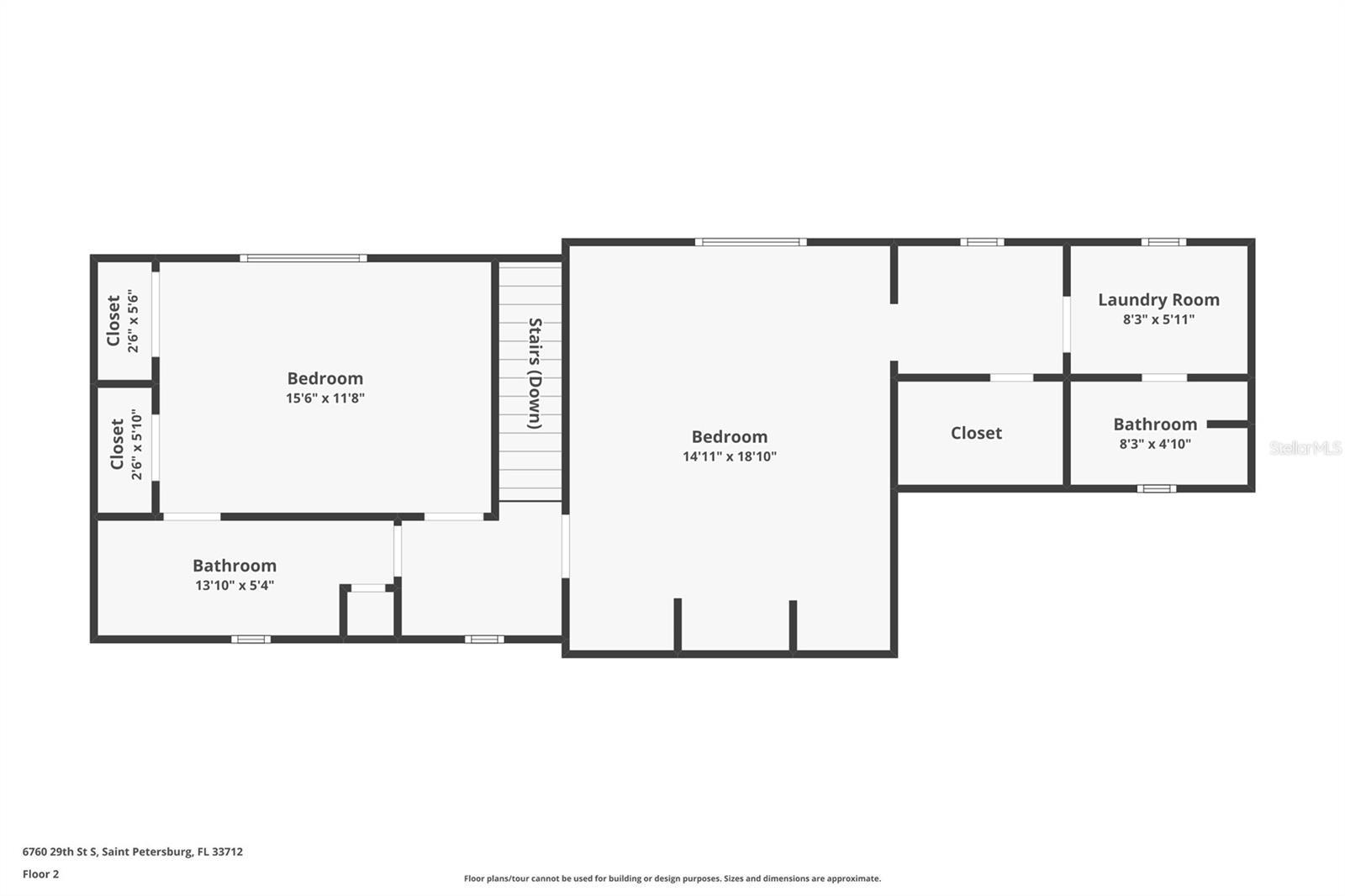
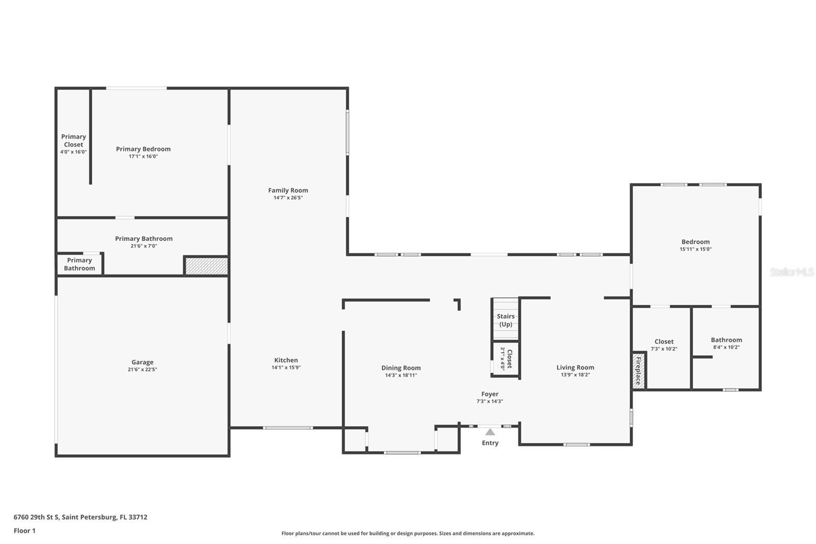
Under contract-accepting backup offers. Experience the ultimate in waterfront luxury at this extraordinary St. Petersburg residence, where refined design meets resort-style living. This 3,699 sf home sits on over a half acre, Perfectly positioned on an expansive 200 feet of serene open water with the Skyway Bridge lit up in the distance. The property offers panoramic views that stretch across tranquil waters — a rare and breathtaking backdrop for everyday living and unforgettable entertaining. As you approach, the home’s elegant coastal architecture and lush tropical landscaping set the tone for what awaits inside. The open-concept interior captures the beauty of the outdoors with oversized windows and glass doors that frame sweeping water vistas in nearly every room of the home. Each of the 4 bedrooms are spacious and well appointed and the layout has a large primary suite overlooking the pool and bay, with an equally impressive 2nd ensuite that could easily be transformed into an in-law suite. The gourmet kitchen is appointed with premium appliances, quartz and granite countertops, and custom cabinetry, seamlessly connecting to inviting living and dining spaces. Every detail has been thoughtfully curated to blend modern luxury with timeless design. From the herringbone flooring in the living room/kitchen area, to the tray ceilings, the home has been updated to an amazing standard. Step outside to your sprawling outdoor oasis, where the true magic of this home unfolds. A stunning resort-style pool anchors the expansive patio, surrounded by generous lounging, cooking and dining areas perfect for entertaining under the Florida sun. There’s even a pool cabana with A/C! Whether hosting sunset cocktails by the water, large events, or weekend gatherings with friends and family, this outdoor retreat delivers the next level of coastal living. Boating enthusiasts will appreciate the 200 feet of direct waterfront, offering ample space for a dock and easy access to the Intracoastal and Gulf waters beyond. With such a vast waterfront span, privacy and potential abound — a setting few properties can rival. The dock sits on deep water, and can give you direct access to Tampa Bay and the Gulf. Launch paddleboards, kayaks, Jet Skis from your back yard. Electronic bikes allow quick entry to the Pinellas Trail, over to St. Pete Beach. Ideally located near St. Petersburg’s vibrant downtown, renowned beaches, and world-class dining, this property combines peaceful waterfront living with the best of city convenience. A quick 3 minute drive puts you on 275 for easy access anywhere in the Tampa Bay area. Best of all, the home sits just high enough to have escaped serious damage from Helene. Minimal water entered through the rear doors, and no interior flood damage to the home (other than garage area). Home has a commercial grade 50-year metal roof and hurricane rated windows. Flood insurance is only $2,672 per year. 6760 29th Ave N is more than a home — it’s a statement of lifestyle, luxury, and waterfront elegance. Discover the rare beauty and boundless possibilities that await on this spectacular stretch of St. Petersburg shoreline.

Essential Information

  • MLS® #:
    TB8445586
  • Price:
    $2,399,000
  • Bedrooms:
    4
  • Bathrooms:
    4.00
  • Full Baths:
    4
  • Square Footage:
    3,699
  • Acres:
    0.52
  • Year Built:
    1965
  • Type:
    Residential
  • Sub-Type:
    Single Family Residence
  • Style:
    Traditional
  • Status:
    Pending

Community Information

  • Address:
    6760 29th Street S
  • Area:
    St Pete
  • Subdivision:
    PINELLAS POINT SKYVIEW SHORES 4TH ADD
  • City:
    ST PETERSBURG
  • County:
    Pinellas
  • State:
    FL
  • Zip Code:
    33712

Amenities

  • Parking:
    RV Access/Parking
  • # of Garages:
    2
  • View:
    Water
  • Is Waterfront:
    Yes
  • Waterfront:
    Bay/Harbor
  • Has Pool:
    Yes

Interior

  • Interior Features:
    Built-in Features, Ceiling Fans(s), Crown Molding, High Ceilings, Primary Bedroom Main Floor, Stone Counters, Walk-In Closet(s), Wet Bar, Window Treatments
  • Appliances:
    Bar Fridge, Dishwasher, Disposal, Dryer, Electric Water Heater, Microwave, Range, Refrigerator, Tankless Water Heater, Washer
  • Heating:
    Central
  • Cooling:
    Central Air
  • Fireplace:
    Yes
  • Fireplaces:
    Wood Burning
  • # of Stories:
    2

Exterior

  • Exterior Features:
    French Doors, Lighting, Outdoor Kitchen, Sliding Doors
  • Lot Description:
    Landscaped
  • Roof:
    Metal
  • Foundation:
    Slab

School Information

  • Elementary:
    Maximo Elementary-PN
  • Middle:
    Bay Point Middle-PN
  • High:
    Lakewood High-PN

Additional Information

  • Days on Market:
    106

Listing Details

  • Listing Office:
    Dalton Wade Inc

Listing information courtesy of Dalton Wade Inc.

All listing information is deemed reliable but not guaranteed and should be independently verified through personal inspection by appropriate professionals. Listings displayed on this website may be subject to prior sale or removal from sale; availability of any listing should always be independently verified.

Listing information is provided for consumer personal, non-commercial use, solely to identify potential properties for potential purchase; all other use is strictly prohibited and may violate relevant federal and state law.

Listing data comes from My Florida Regional MLS.

Listing information last updated on February 23rd, 2026 at 12:18pm EST.