My Search Tools:

$1,450,000 - 124 13th Avenue, INDIAN ROCKS BEACH

3
Bedrooms
3
Baths
2,080
SQ. Feet
0.14
Acres

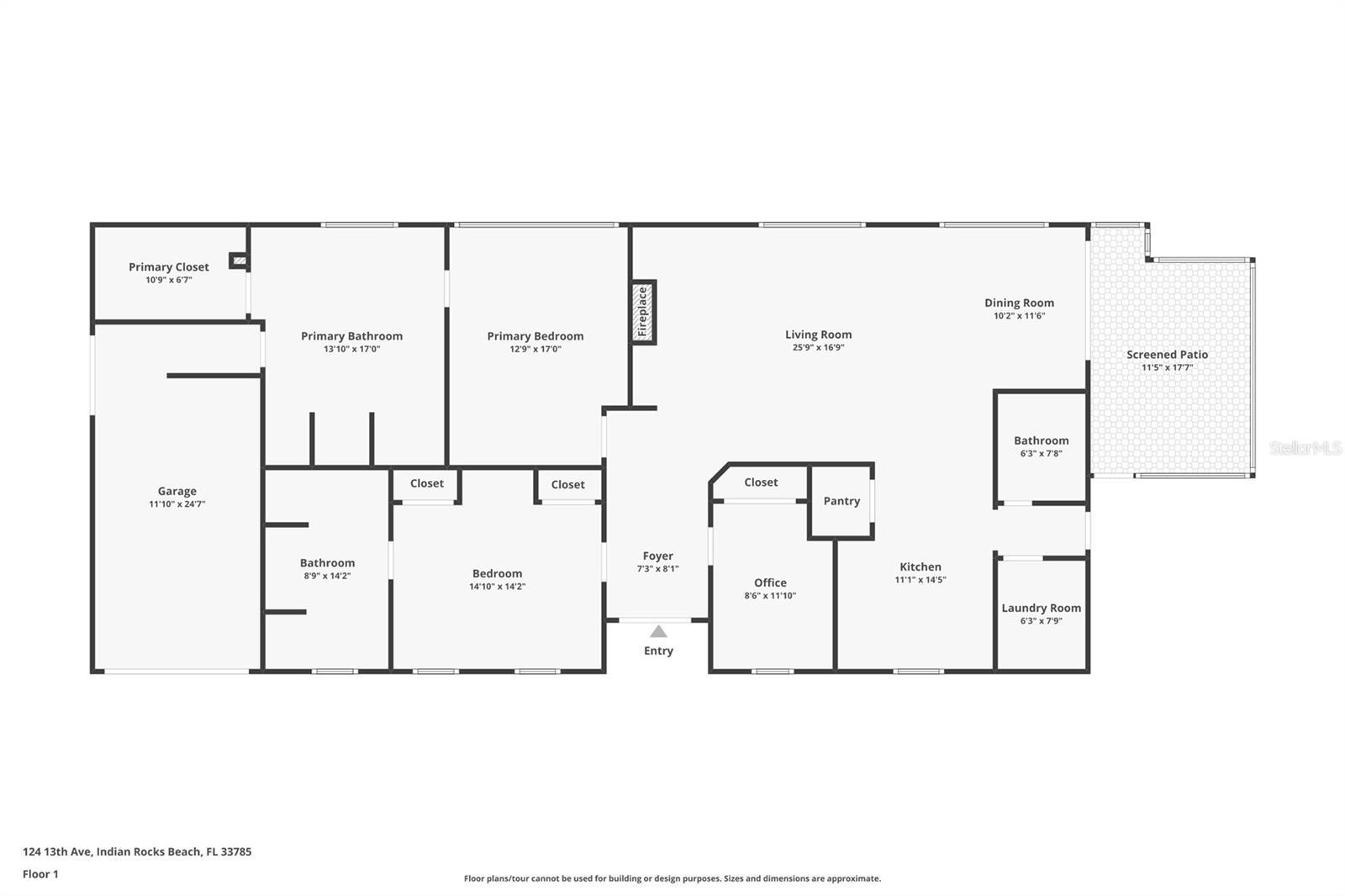
Live the Dream just a short stroll to sunsets on the beach! Remarkable POOL Home in Indian Rocks Beach - 3 Bedrooms (two en-suites) and 3 Baths! Welcome to a one-of-a-kind, designer-touched home in Indian Rocks Beach, where you can literally live where others vacation. This elegant, elevated residence offers a seamless blend of luxury, durability, and a coveted coastal lifestyle, all just a walk away from the wide, sandy beaches of the Gulf Coast! You'll find peace of mind in this home's elevated construction (a significant advantage with No flooding in the home with the 2024 storms) and its recent, major upgrades, including a New Roof (2025), New HVAC (2024), and New Water Heater (2024), new windows - everything has been done for you! Step through the stylish double-door entry into a welcoming foyer that sets the tone for the quality within. The bright, open living room flows into an elegant dining room, all framed by durable, stylish porcelain wood-look tile that extends throughout the home. The Living Room is anchored by a fully tiled fireplace flanked by custom built-in cabinets, creating a chic focal point. The home is protected and energy-efficient with hurricane-rated windows and beautiful plantation shutters. Prepare to be wowed by the exquisite kitchen, a chef’s delight featuring stunning quartz countertops, a Sub-Zero refrigerator, a Scotsman nugget ice maker, and a dedicated Sub-Zero beverage station. This spacious floor plan features three bedrooms and three full baths, including TWO private suites. The spectacular Primary Suite boasts a luxury upgraded bath with dual sinks, a vanity area, a full-length mirror, a soaking tub, and a large shower, plus a custom walk-in closet. The second suite offers a private bath with dual sinks and dual closets, perfect for guests. A third room provides flexibility for a guest room or a dedicated home office. A convenient laundry room with a sink completes the interior. Outside, your private retreat awaits. The screened lanai provides a perfect shaded space for relaxing, leading out to the incredible pool area with plenty of room to relax poolside. Salt water pool features an in-pool table for those hot Florida days, or a perfect spot to unwind in the open spa. Indian Rocks Beach is more than just a town; it’s a destination. Kolb Park is a great spot for pickleball, basketball, skatepark, baseball/softball and a playground to enjoy the outdoors. Located on a pristine barrier island between the Gulf and the Intracoastal Waterway, you are minutes away from boutique shopping and tasty restaurants. Enjoy being approximately 40 minutes to Tampa International Airport and conveniently close to Clearwater Beach, St. Pete Beach, and all major Florida attractions. This is your chance to own a piece of paradise and live like a vacationer year-round!

Essential Information

  • MLS® #:
    TB8442041
  • Price:
    $1,450,000
  • Bedrooms:
    3
  • Bathrooms:
    3.00
  • Full Baths:
    3
  • Square Footage:
    2,080
  • Acres:
    0.14
  • Year Built:
    2005
  • Type:
    Residential
  • Sub-Type:
    Single Family Residence
  • Status:
    Active

Community Information

  • Address:
    124 13th Avenue
  • Area:
    Indian Rocks Bch/Belleair Bch/Indian Shores
  • Subdivision:
    INDIAN BEACH RE-REVISED 1ST ADD
  • City:
    INDIAN ROCKS BEACH
  • County:
    Pinellas
  • State:
    FL
  • Zip Code:
    33785

Amenities

  • # of Garages:
    1
  • Has Pool:
    Yes

Interior

  • Interior Features:
    Built-in Features, Ceiling Fans(s), High Ceilings, Living Room/Dining Room Combo, Open Floorplan, Primary Bedroom Main Floor, Walk-In Closet(s)
  • Appliances:
    Bar Fridge, Dishwasher, Microwave, Range, Refrigerator, Wine Refrigerator
  • Heating:
    Central
  • Cooling:
    Central Air
  • Fireplace:
    Yes
  • Fireplaces:
    Living Room
  • # of Stories:
    1

Exterior

  • Exterior Features:
    Other
  • Lot Description:
    Corner Lot, Paved
  • Roof:
    Shingle
  • Foundation:
    Slab

School Information

  • Elementary:
    Anona Elementary-PN
  • Middle:
    Seminole Middle-PN
  • High:
    Largo High-PN

Additional Information

  • Days on Market:
    80

Listing Details

  • Listing Office:
    Keller Williams Suburban Tampa

Listing information courtesy of Keller Williams Suburban Tampa.

All listing information is deemed reliable but not guaranteed and should be independently verified through personal inspection by appropriate professionals. Listings displayed on this website may be subject to prior sale or removal from sale; availability of any listing should always be independently verified.

Listing information is provided for consumer personal, non-commercial use, solely to identify potential properties for potential purchase; all other use is strictly prohibited and may violate relevant federal and state law.

Listing data comes from My Florida Regional MLS.

Listing information last updated on January 16th, 2026 at 10:04pm EST.