My Search Tools:

$3,799,000 - 3013 South West Shore, TAMPA

5
Bedrooms
7
Baths
5,841
SQ. Feet
0.38
Acres

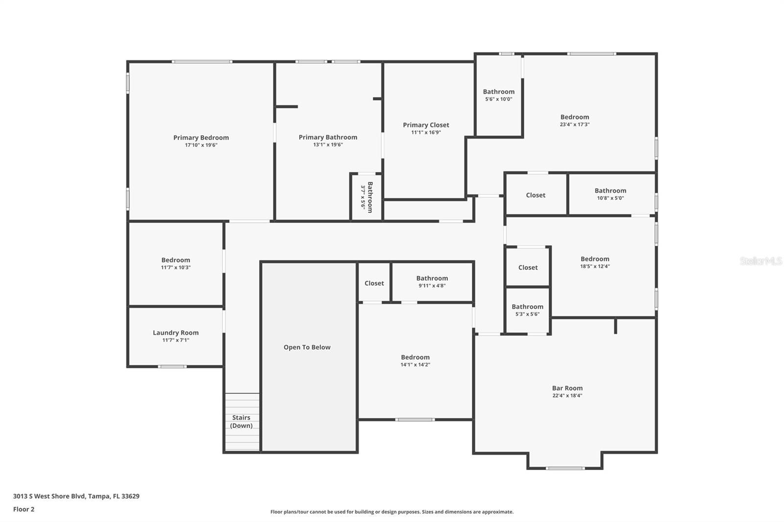
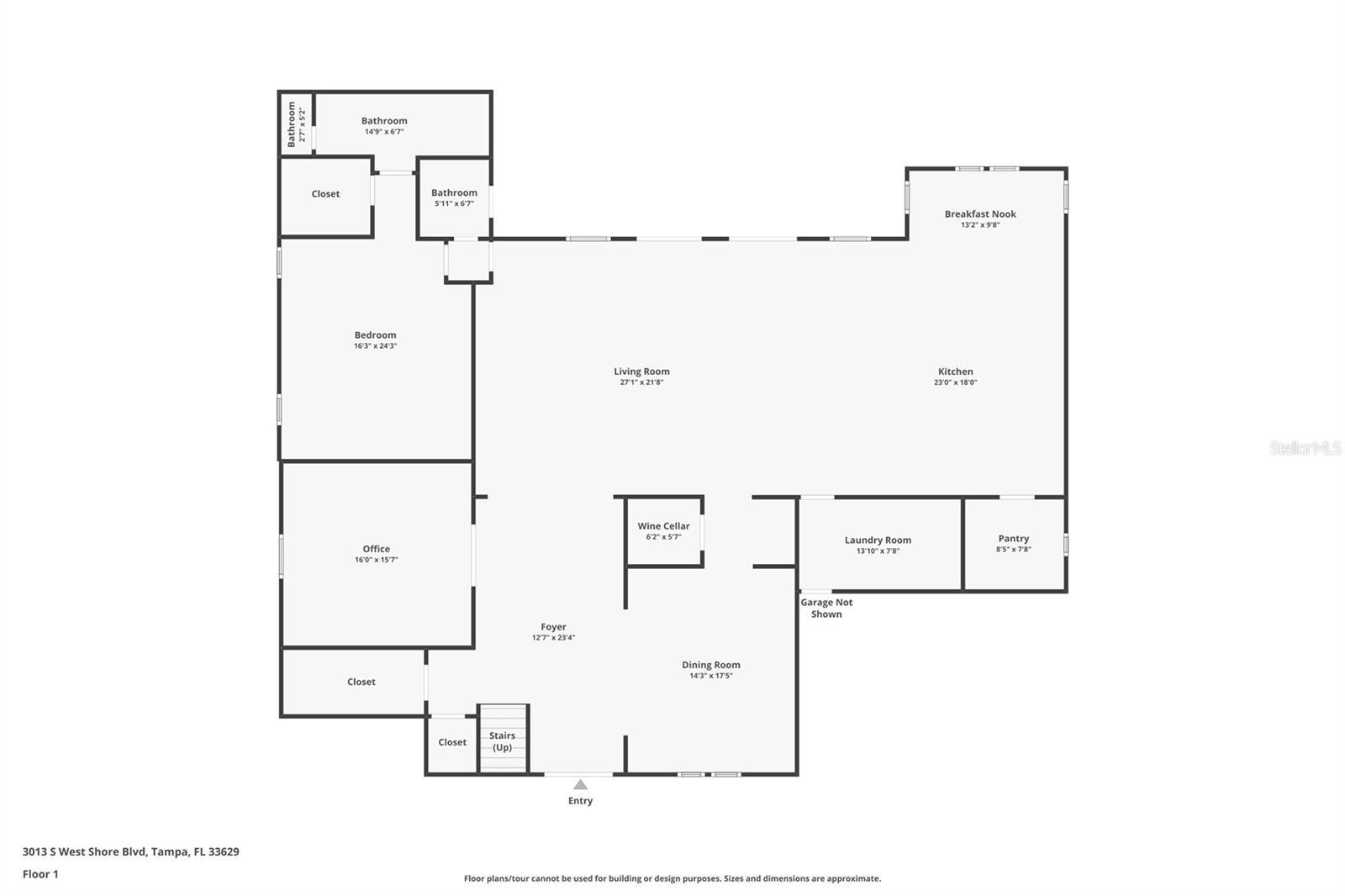
Introducing Westshore Reserve, an exclusive new construction estate in the heart of Sunset Park, built by Kingfisher Development—a highly regarded local builder known for exceptional quality, timeless design, and superior craftsmanship.This custom residence delivers refined modern luxury on an oversized .38-acre lot, privately set back from the street and secured by a gated entry. Thoughtfully designed for both elegance and livability, the home showcases impeccable detail, custom finishes, and seamless indoor-outdoor integration.A dramatic 22-foot two-story foyer anchors the home, featuring a cable-railed overlook and abundant natural light. The main level includes a private office with a custom accent wall, a formal dining room with detailed ceiling design, and a Butler’s Bar leading to a glass-enclosed wine room—designed for elevated entertaining. The chef’s kitchen features a Wolf natural gas range, Subzero paneled refrigerator, expansive walk-in pantry, and a sunlit breakfast nook overlooking the outdoor oasis.The open-concept great room opens to an outdoor oasis featuring a massive, private backyard with lush tropical landscaping, a saltwater inground pool and spa, and an expansive covered lanai complete with a fully equipped outdoor kitchen, grill station, fireplace, and a dedicated first-floor pool bath—the perfect setting for effortless entertaining and resort-style living. The first-floor suite offers flexibility as a guest or primary bedroom, with a walk-in closet and spa-like bath. The upstairs primary suite is a true statement of luxury, featuring a spa-inspired bathroom with a chandelier suspended above the soaking tub, and an oversized walk-in shower with dual entries and dual rainfall showerheads. The space is complemented by his and her vanities and an impeccably designed walk-in closet, complete with a center island and custom-built-ins crafted with exceptional detail and quality. Three additional bedrooms each offer private baths and walk-in closets, joined by a bonus room with a wet bar, a half bath, and a flex space ideal for a nursery, home gym, or second office.Additional highlights include 10-foot ceilings throughout, light wood flooring, upstairs and downstairs laundry options, a mudroom, and a 4+ car garage with EV charging. Constructed with solid block, impact-rated doors and windows, and elevated above FEMA standards, the home is also prewired for a whole-home generator and custom security, audio, and visual systems.As the fourth of five custom homes within Westshore Reserve—each built by the same trusted local developer—this residence represents the pinnacle of South Tampa craftsmanship. Zoned for A-rated schools (Mabry, Coleman, Plant) and minutes from Tampa’s best dining, shopping, and waterfront recreation, it redefines timeless luxury and elevated coastal living.

Essential Information

  • MLS® #:
    TB8441359
  • Price:
    $3,799,000
  • Bedrooms:
    5
  • Bathrooms:
    7.00
  • Full Baths:
    5
  • Half Baths:
    2
  • Square Footage:
    5,841
  • Acres:
    0.38
  • Year Built:
    2025
  • Type:
    Residential
  • Sub-Type:
    Single Family Residence
  • Status:
    Active

Community Information

  • Address:
    3013 South West Shore
  • Area:
    Tampa / Palma Ceia
  • Subdivision:
    OMAR SUB
  • City:
    TAMPA
  • County:
    Hillsborough
  • State:
    FL
  • Zip Code:
    33629

Amenities

  • Parking:
    Driveway, Electric Vehicle Charging Station(s), Garage Door Opener, Ground Level, Oversized, Tandem
  • # of Garages:
    4
  • Has Pool:
    Yes

Interior

  • Interior Features:
    Built-in Features, Ceiling Fans(s), Eat-in Kitchen, High Ceilings, Kitchen/Family Room Combo, Open Floorplan, Thermostat, Walk-In Closet(s)
  • Appliances:
    Bar Fridge, Built-In Oven, Convection Oven, Dishwasher, Disposal, Exhaust Fan, Freezer, Ice Maker, Microwave, Range, Range Hood, Refrigerator, Tankless Water Heater, Touchless Faucet
  • Heating:
    Central, Electric
  • Cooling:
    Central Air
  • Fireplace:
    Yes
  • Fireplaces:
    Gas, Insert, Outside

Exterior

  • Exterior Features:
    Awning(s), Lighting, Outdoor Grill, Outdoor Kitchen, Private Mailbox, Rain Gutters, Shade Shutter(s), Sidewalk, Sliding Doors
  • Lot Description:
    City Limits, Landscaped, Oversized Lot, Sidewalk, Paved
  • Roof:
    Metal, Shingle
  • Foundation:
    Stem Wall

School Information

  • Elementary:
    Dale Mabry Elementary-HB
  • Middle:
    Coleman-HB
  • High:
    Plant-HB

Additional Information

  • Days on Market:
    110
  • Zoning:
    RS-75

Listing Details

  • Listing Office:
    South Cedar Real Estate, Inc

Listing information courtesy of South Cedar Real Estate, Inc.

All listing information is deemed reliable but not guaranteed and should be independently verified through personal inspection by appropriate professionals. Listings displayed on this website may be subject to prior sale or removal from sale; availability of any listing should always be independently verified.

Listing information is provided for consumer personal, non-commercial use, solely to identify potential properties for potential purchase; all other use is strictly prohibited and may violate relevant federal and state law.

Listing data comes from My Florida Regional MLS.

Listing information last updated on February 15th, 2026 at 12:18am EST.