My Search Tools:

$875,000 - 10314 Lamson Road, DADE CITY

4
Bedrooms
3
Baths
2,691
SQ. Feet
2.59
Acres

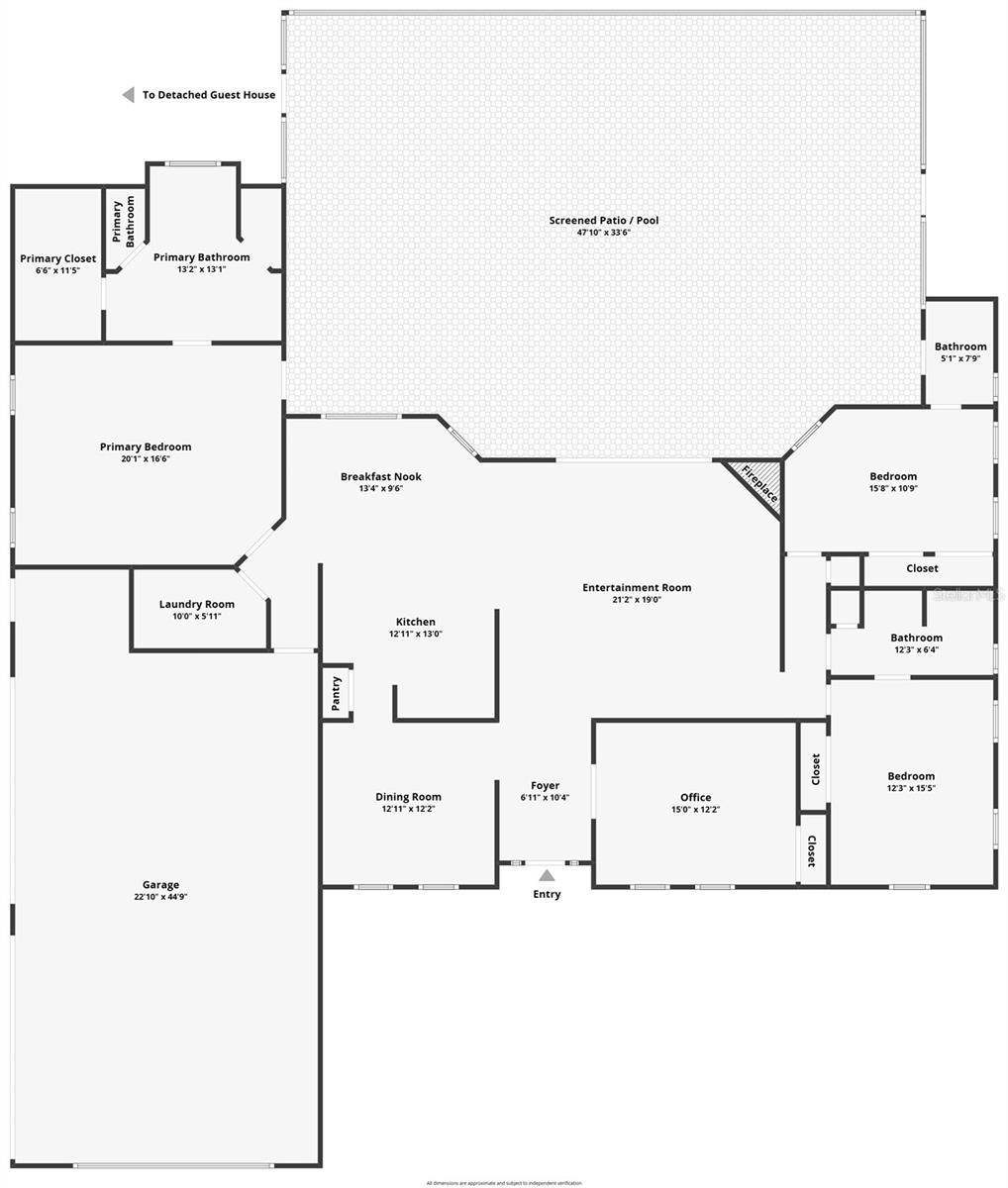
One or more photo(s) has been virtually staged. ACREAGE, HOUSE, DETACHED IN-LAW & ZONED AGRICULTRUAL!!!! Everything you need on this 2.59 acres. Lets start with the main house featuring 2691 sq feet of heated and cooled living space and 4 generously sized bedrooms and 3 full bathrooms. Features such as split bedroom floor plan, high ceilings, a great room with fireplace and am OVERSIZED 4 car garage. That's not all, the screen enclosed "SOLAR HEATED POOL" offers tons of space for outdoor entertaining and once you open the pocket sliding glass doors of the house the entertainment space spills into the home. The Primary bedroom features hardwood floors, high ceilings, private entrance out to the pool and a huge bathroom with a walk-in shower that was just re-tiled, jetted soaking tub and HUGE walk-in closet. The oversized utility/laundry room has lots of cabinet space, counter space and a wash tub and is located right off the garage. The DETACED IN-LAW APARTMENT features high ceilings, HUGE living room and an OVERSIZED bedroom & Bathroom plus a 1 car garage along with its own fenced in yard. This property is zoned agriculture and allows for chickens, cows, horses, sheep, goats and farm animals and gardening. Situated in the rolling hills of Dade City and all the quaint shops & eateries of downtown Dade City or just a short drive to Zephyrhills, Wesley Chapel or Tampa. of the

Essential Information

  • MLS® #:
    TB8441139
  • Price:
    $875,000
  • Bedrooms:
    4
  • Bathrooms:
    3.00
  • Full Baths:
    3
  • Square Footage:
    2,691
  • Acres:
    2.59
  • Year Built:
    2003
  • Type:
    Residential
  • Sub-Type:
    Single Family Residence
  • Style:
    Ranch
  • Status:
    Active

Community Information

  • Address:
    10314 Lamson Road
  • Area:
    Dade City/Richland
  • Subdivision:
    ZEPHYRHILLS COLONY CO
  • City:
    DADE CITY
  • County:
    Pasco
  • State:
    FL
  • Zip Code:
    33525

Amenities

  • Parking:
    Driveway, Garage Door Opener, Garage Faces Side, Oversized
  • # of Garages:
    4
  • View:
    Pool
  • Has Pool:
    Yes

Interior

  • Interior Features:
    Cathedral Ceiling(s), Ceiling Fans(s), Eat-in Kitchen, Open Floorplan, Solid Surface Counters, Thermostat
  • Appliances:
    Dishwasher, Electric Water Heater, Microwave, Range, Refrigerator
  • Heating:
    Central, Electric
  • Cooling:
    Central Air
  • Fireplace:
    Yes
  • Fireplaces:
    Family Room
  • # of Stories:
    1

Exterior

  • Exterior Features:
    Sidewalk
  • Lot Description:
    In County
  • Roof:
    Shingle
  • Foundation:
    Slab

School Information

  • Elementary:
    Centennial Elementary-PO
  • Middle:
    Centennial Middle-PO

Additional Information

  • Days on Market:
    108
  • Zoning:
    AR1

Listing Details

  • Listing Office:
    Elite Brokers, Llc

Listing information courtesy of Elite Brokers, Llc.

All listing information is deemed reliable but not guaranteed and should be independently verified through personal inspection by appropriate professionals. Listings displayed on this website may be subject to prior sale or removal from sale; availability of any listing should always be independently verified.

Listing information is provided for consumer personal, non-commercial use, solely to identify potential properties for potential purchase; all other use is strictly prohibited and may violate relevant federal and state law.

Listing data comes from My Florida Regional MLS.

Listing information last updated on February 8th, 2026 at 3:48pm EST.