My Search Tools:

$1,900,000 - 814 West Braddock Street, TAMPA

5
Bedrooms
5
Baths
4,084
SQ. Feet
0.14
Acres

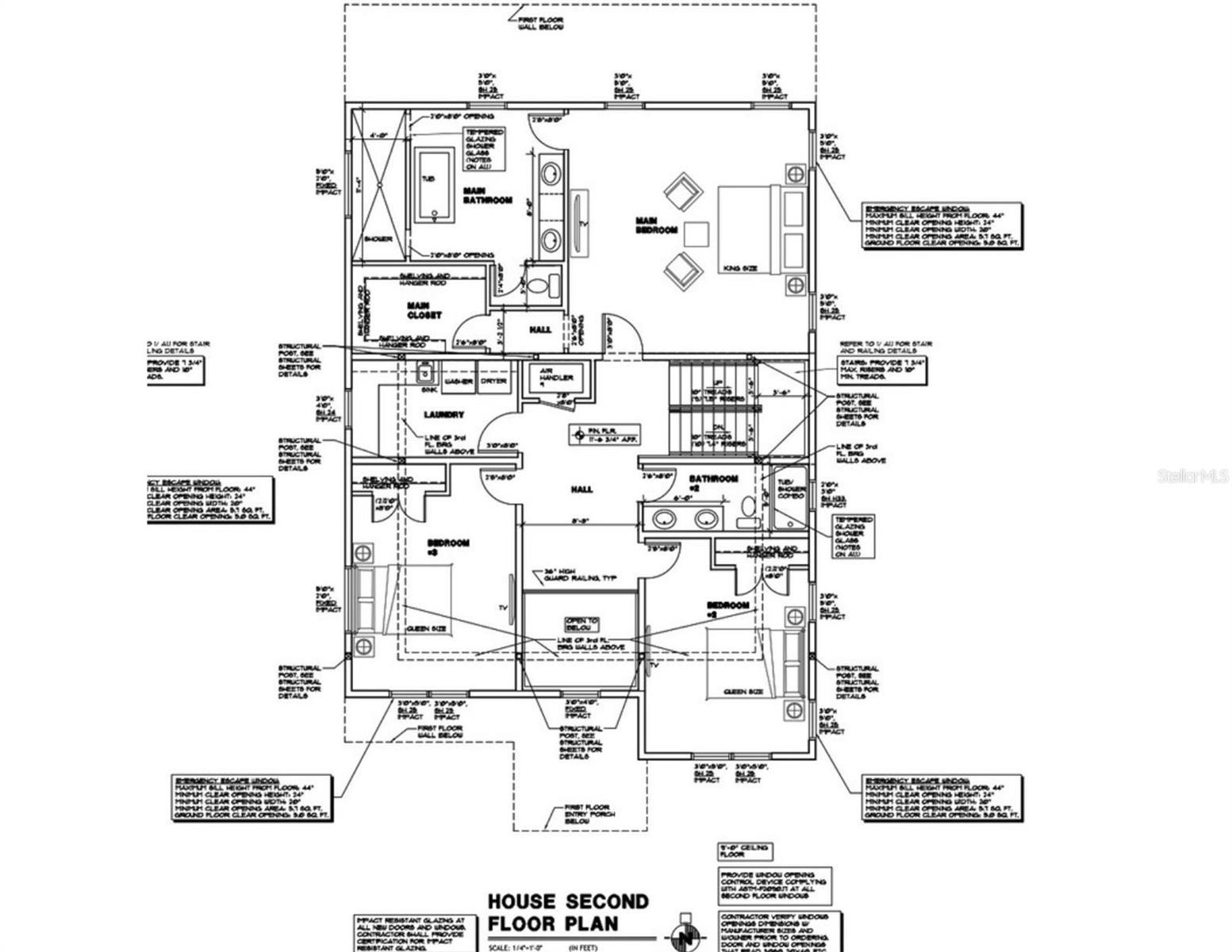
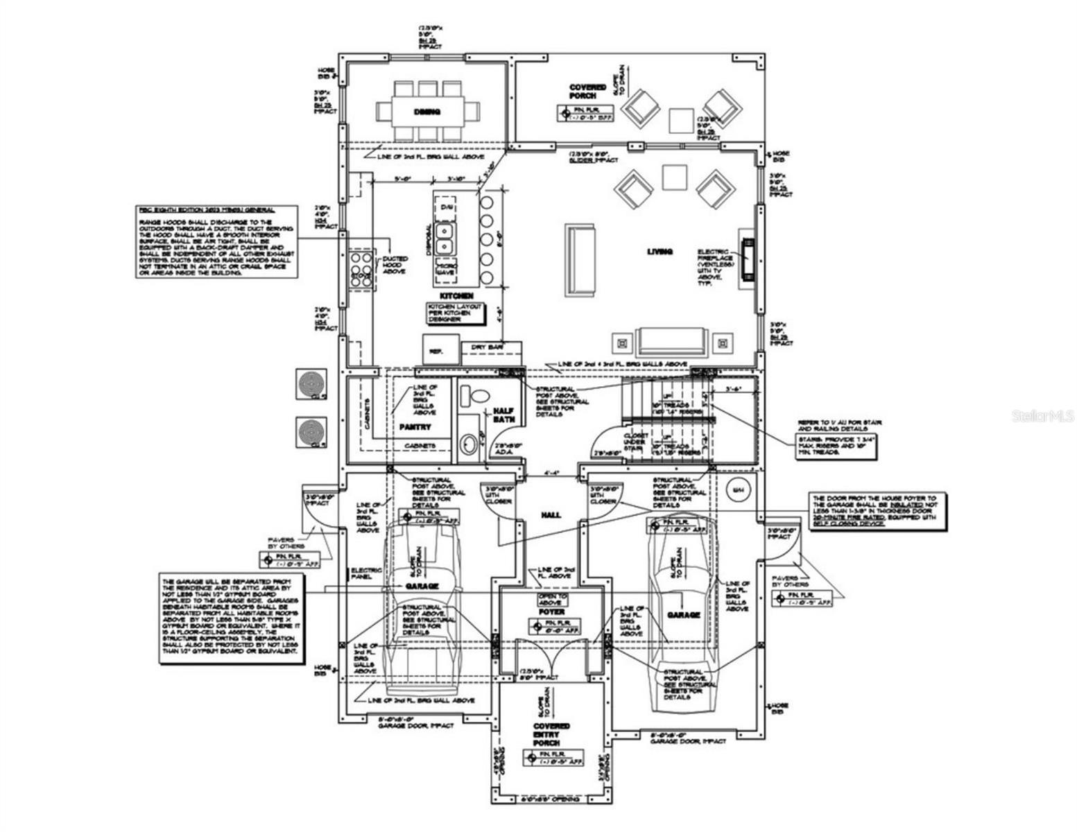
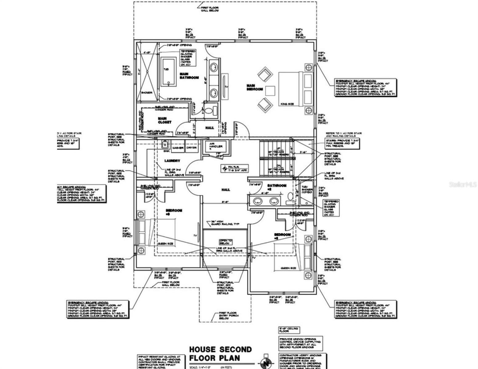
Under contract-accepting backup offers. Under Construction. Welcome to this architecturally striking, three-level, pool home constructed by Bay to Bay Group offering 4,084 square feet of thoughtfully designed living space. Upon entry, you’re greeted by a stunning archway above the foyer that opens to an expansive open-concept living area featuring a fireplace and a stylish dry bar — creating a warm and inviting atmosphere ideal for everyday living and social gatherings alike. The chef’s kitchen is truly an entertainer’s dream, showcasing an oversized island, stainless steel appliances, a custom walk in pantry and custom cabinetry throughout — beautifully curated to inspire gatherings of all kinds. Seamless access to the living, dining, and outdoor spaces makes this floor plan both functional and inviting. A half bathroom downstairs adds extra comfort and convenience for guests. Upstairs, you’ll find the impressive primary suite — a peaceful retreat filled with natural light, featuring a generous walk-in closet and a luxurious spa-inspired bath with dual shower entry and a soaking tub — the perfect place to unwind at the end of the day. The second level also includes two additional bedrooms, a guest bathroom, and a conveniently located laundry room for added functionality. The third level showcases a spacious bonus entertainment and family room complete with a full bathroom, a private bedroom, a custom built-in wet bar, and a massive balcony — the ideal space for entertaining guests or enjoying Tampa’s beautiful sunsets. The outdoor space is equally captivating, featuring an outdoor kitchen, pool, and a detached guest house with one bedroom, one full bathroom and a fully equipped kitchen — ideal for extended family, guests, or a private office. Nestled in the highly desirable Riverside Heights neighborhood, this residence offers the best of Tampa living — just minutes from Downtown Tampa, Armature Works, Michelin-starred restaurants, the Tampa Riverwalk, TGH, and Tampa International Airport

Essential Information

  • MLS® #:
    TB8439696
  • Price:
    $1,900,000
  • Bedrooms:
    5
  • Bathrooms:
    5.00
  • Full Baths:
    4
  • Half Baths:
    1
  • Square Footage:
    4,084
  • Acres:
    0.14
  • Year Built:
    2025
  • Type:
    Residential
  • Sub-Type:
    Single Family Residence
  • Status:
    Pending

Community Information

  • Address:
    814 West Braddock Street
  • Area:
    Tampa / Seminole Heights
  • Subdivision:
    SUBURB ROYAL
  • City:
    TAMPA
  • County:
    Hillsborough
  • State:
    FL
  • Zip Code:
    33603

Amenities

  • # of Garages:
    2
  • View:
    City
  • Has Pool:
    Yes

Interior

  • Interior Features:
    Ceiling Fans(s), Open Floorplan, PrimaryBedroom Upstairs, Stone Counters, Thermostat, Walk-In Closet(s)
  • Appliances:
    Dishwasher, Disposal, Microwave, Range, Range Hood, Refrigerator, Wine Refrigerator
  • Heating:
    Electric
  • Cooling:
    Central Air
  • Fireplace:
    Yes
  • Fireplaces:
    Electric

Exterior

  • Exterior Features:
    Balcony, Private Mailbox, Sliding Doors
  • Roof:
    Membrane
  • Foundation:
    Slab

School Information

  • Elementary:
    Graham-HB
  • Middle:
    Stewart-HB
  • High:
    Hillsborough-HB

Additional Information

  • Days on Market:
    114
  • Zoning:
    RS-50

Listing Details

  • Listing Office:
    Keller Williams Tampa Central

Listing information courtesy of Keller Williams Tampa Central.

All listing information is deemed reliable but not guaranteed and should be independently verified through personal inspection by appropriate professionals. Listings displayed on this website may be subject to prior sale or removal from sale; availability of any listing should always be independently verified.

Listing information is provided for consumer personal, non-commercial use, solely to identify potential properties for potential purchase; all other use is strictly prohibited and may violate relevant federal and state law.

Listing data comes from My Florida Regional MLS.

Listing information last updated on February 28th, 2026 at 8:48pm EST.