My Search Tools:

$795,000 - 4100 Central Avenue, ST PETERSBURG

-
Bedrooms
-
Baths
2,164
SQ. Feet
0.11
Acres

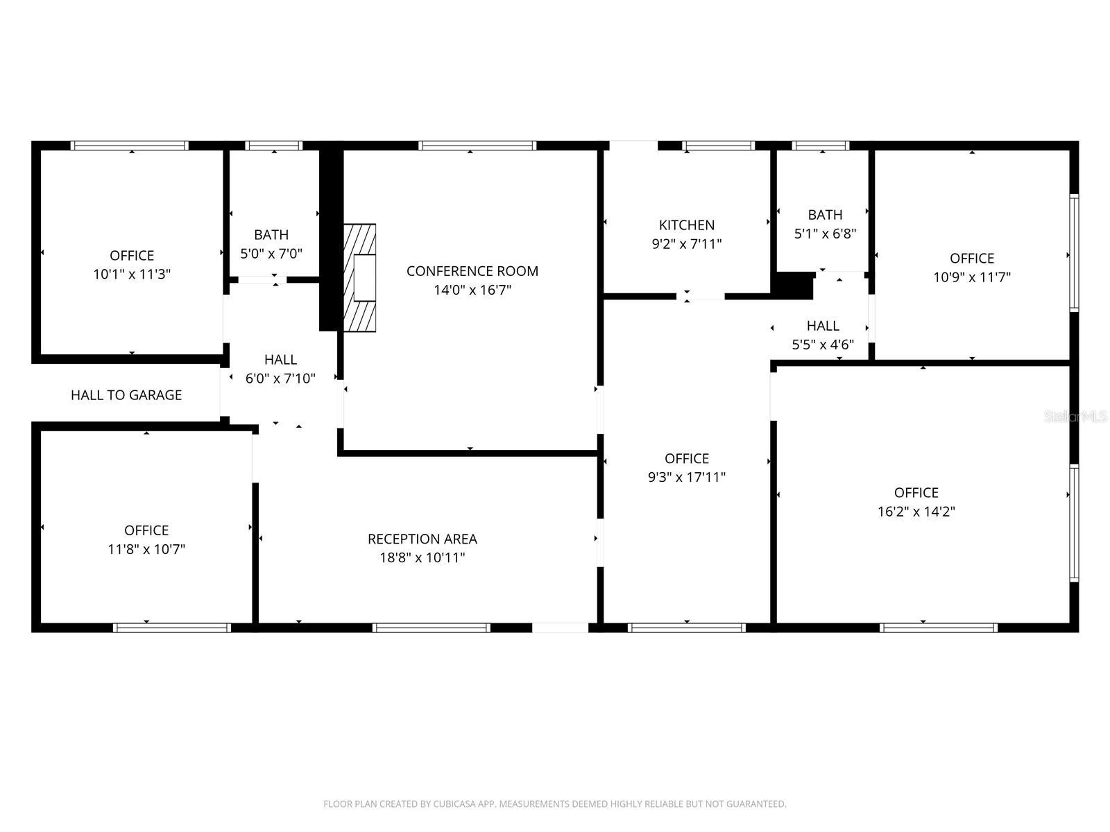
*DRAMATIC PRICE IMPROVEMENT** RENOVATED Office with INCOME-GENERATING Rental Apartment in PRIME Central Avenue location. Don’t miss this unique chance to own a fully renovated mixed-use commercial property on sought-after Central Avenue. This versatile building offers 1,624 square feet of updated professional office space, along with a 540 square foot rental apartment—ideal for a live-work arrangement or an additional income stream. CRT-1 zoning permits short-term rentals, with the current owner achieving consistent rental income, generating up to $2,400 monthly for the apartment. The fully renovated 1,624 sq. ft. office includes a welcoming reception area, four private executive offices, an executive assistant workspace, two modernized bathrooms, an upgraded kitchen, and a conference room with a fireplace. The flexible floor plan offers the adaptability to accommodate multiple businesses with ease. Situated on a HIGH and DRY prominent corner lot with 50 feet of frontage on bustling Central Avenue, the property benefits from over 15,000 vehicles passing by daily, making it a prime location for business visibility and access. You're just 5 minutes from vibrant Downtown St. Petersburg, with its restaurants, shopping, and entertainment, and only 15 minutes from the world-renowned Gulf Beaches. With CRT-1 zoning supporting both commercial and residential uses—including short-term rentals—this property offers exceptional flexibility in one of the most dynamic and desirable areas of St. Pete.

Essential Information

  • MLS® #:
    TB8435872
  • Price:
    $795,000
  • Bathrooms:
    0.00
  • Square Footage:
    2,164
  • Acres:
    0.11
  • Year Built:
    1952
  • Type:
    Commercial Sale
  • Sub-Type:
    Mixed Use
  • Status:
    Active

Community Information

  • Address:
    4100 Central Avenue
  • Area:
    St Pete/Gulfport
  • Subdivision:
    HALLS CENTRAL AVE 3
  • City:
    ST PETERSBURG
  • County:
    Pinellas
  • State:
    FL
  • Zip Code:
    33711

Interior

  • Cooling:
    Central Air, Mini-Split Unit(s)
  • # of Stories:
    2

Exterior

  • Roof:
    Shingle
  • Foundation:
    Stem Wall

Additional Information

  • Days on Market:
    130
  • Zoning:
    CRT-1

Listing Details

  • Listing Office:
    Dalton Wade Inc

Listing information courtesy of Dalton Wade Inc.

All listing information is deemed reliable but not guaranteed and should be independently verified through personal inspection by appropriate professionals. Listings displayed on this website may be subject to prior sale or removal from sale; availability of any listing should always be independently verified.

Listing information is provided for consumer personal, non-commercial use, solely to identify potential properties for potential purchase; all other use is strictly prohibited and may violate relevant federal and state law.

Listing data comes from My Florida Regional MLS.

Listing information last updated on February 16th, 2026 at 4:03am EST.