My Search Tools:

$899,900 - 14890 Cr 757, WEBSTER

4
Bedrooms
3
Baths
2,820
SQ. Feet
31.45
Acres

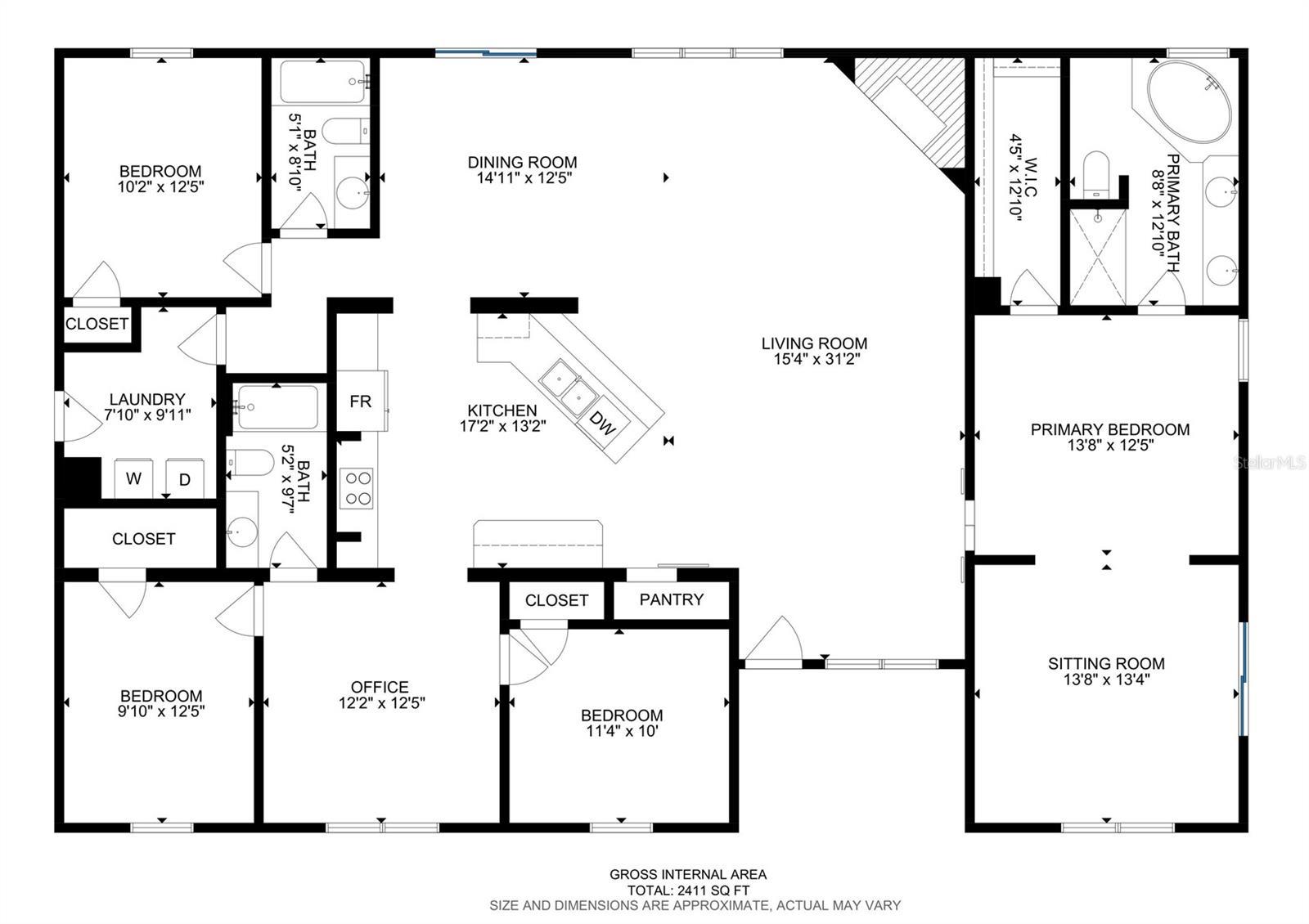
32 acres MOL situated on a quiet country road in Sumter County, Florida that backs up to State Property. Ideally located, and centrally located to Orlando, Tampa, and Ocala areas. Property perfect for gardening, grazing your livestock, training or simply enjoying the beauty of rural living. Fenced and cross fenced into twelve pastures that are approximately 2.5 acres each. Property has a working well that furnishes water to pasture and there are 6 livestock feeders and a cattle pen. There is also an additional 3 wells on the property that are not currently being used. For all your equipment storage there is a 30x40 metal barn with 3-12ft rollup overhead doors. Situated on this property is a triple-wide that boast 4 bedrooms, 3 full baths, plus a bonus room for den or office. All bedrooms are inviting, though the primary suite and ensuite bath is an exceptionally notable space with additional sitting area and private entrance to side deck for those quite moments. the kitchen is fully equipped with stainless steel appliances, breakfast bar, loads of cabinet space and pantry space. The main living area is a huge space that provides a dining area and a cozy corner wood burning fireplace. Enjoy Florida's beautiful weather and those family cookouts from your covered 14x30 rear deck and take a dip in your inground screened saltwater pool. If you are looking for that quiet rural farm living, welcome home. Seller will be conveying along with property a 30hp tractor with 6 implements, 30 ft. cattle trailer and a 30 ft flat-bed trailer.

Essential Information

  • MLS® #:
    TB8424487
  • Price:
    $899,900
  • Bedrooms:
    4
  • Bathrooms:
    3.00
  • Full Baths:
    3
  • Square Footage:
    2,820
  • Acres:
    31.45
  • Year Built:
    2017
  • Type:
    Residential
  • Sub-Type:
    Modular Home
  • Status:
    Active

Community Information

  • Address:
    14890 Cr 757
  • Area:
    Webster/Ridge Manor Estates
  • Subdivision:
    ACREAGE
  • City:
    WEBSTER
  • County:
    Sumter
  • State:
    FL
  • Zip Code:
    33597

Amenities

  • View:
    Park/Greenbelt
  • Has Pool:
    Yes

Interior

  • Interior Features:
    Ceiling Fans(s), Crown Molding, Split Bedroom, Tray Ceiling(s), Vaulted Ceiling(s)
  • Appliances:
    Dishwasher, Electric Water Heater, Microwave, Range, Range Hood, Refrigerator
  • Heating:
    Central
  • Cooling:
    Central Air
  • Fireplace:
    Yes
  • Fireplaces:
    Living Room, Wood Burning

Exterior

  • Exterior Features:
    Other
  • Lot Description:
    Cleared, Farm, Greenbelt, In County, Level, Pasture, Paved, Zoned for Horses
  • Roof:
    Shingle
  • Foundation:
    Crawlspace

Additional Information

  • Days on Market:
    153
  • Zoning:
    A10-C

Listing Details

  • Listing Office:
    Hernando East Realty Inc.

Listing information courtesy of Hernando East Realty Inc..

All listing information is deemed reliable but not guaranteed and should be independently verified through personal inspection by appropriate professionals. Listings displayed on this website may be subject to prior sale or removal from sale; availability of any listing should always be independently verified.

Listing information is provided for consumer personal, non-commercial use, solely to identify potential properties for potential purchase; all other use is strictly prohibited and may violate relevant federal and state law.

Listing data comes from My Florida Regional MLS.

Listing information last updated on February 5th, 2026 at 4:33pm EST.