My Search Tools:

$4,000 - 2800 Tifton Street S, GULFPORT

3
Bedrooms
2
Baths
1,472
SQ. Feet
0.3
Acres

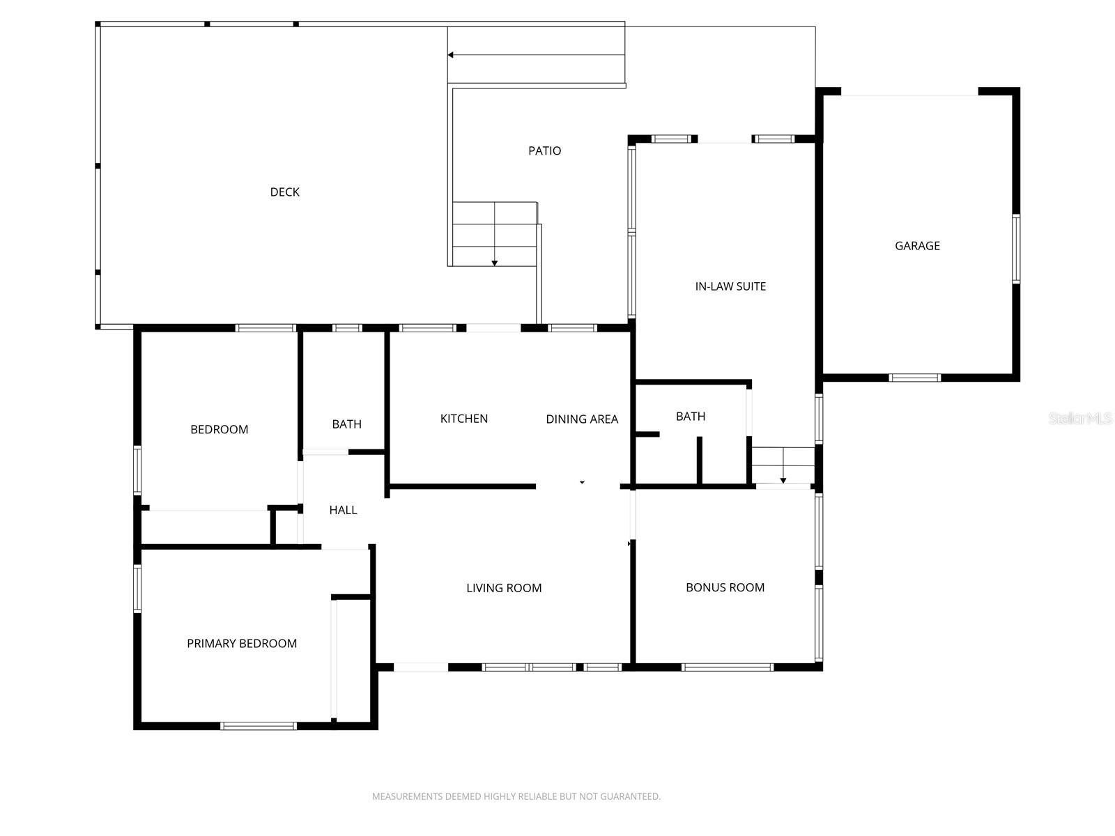
The "Lifestyle & Luxury" Tropical Paradise in Gulfport – Renovated w/ Private In-Law Suite Experience the ultimate Florida lifestyle in this professionally decorated, turnkey home. Whether you're looking for a multi-generational setup or a dedicated home office with its own entrance, this beautifully renovated 3BR/2BA property offers unmatched flexibility. The Highlights… • Flexible Living: Available fully furnished for short or long-term stays. Includes a private-entrance suite perfect for guests or a quiet workspace. • Outdoor Oasis: Host unforgettable gatherings on the massive "Margaritaville" deck from sunrise coffee to sunset cocktails. • Toys Welcome: Fenced yard with parking for 4+ cars, plus space for your Boat or RV with convenient alley access. • Location, Location: Just steps from the Marina, Boat ramp, and Waterfront park to Tennis, Pickleball, Kayak, Bike paths, Boat cruises and more. Live Like you’re on Vacation Everyday…Explore Gulfport’s historic downtown, sandy beaches, and vibrant Tiki bars. You're minutes from the St. Pete Arts District and have easy I-275 access to Tampa and Sarasota. Seasonal short-term available for $8,000/mo

Essential Information

  • MLS® #:
    TB8412107
  • Price:
    $4,000
  • Bedrooms:
    3
  • Bathrooms:
    2.00
  • Full Baths:
    2
  • Square Footage:
    1,472
  • Acres:
    0.30
  • Year Built:
    1949
  • Type:
    Residential Lease
  • Sub-Type:
    Single Family Residence
  • Status:
    Active

Community Information

  • Address:
    2800 Tifton Street S
  • Area:
    St Pete/Gulfport
  • Subdivision:
    BURNS F J REALTY COS REV
  • City:
    GULFPORT
  • County:
    Pinellas
  • State:
    FL
  • Zip Code:
    33711

Amenities

  • Parking:
    Boat, Curb Parking, Deeded, Driveway, Garage Faces Rear, Golf Cart Garage, Golf Cart Parking, Ground Level, Guest, Off Street, On Street, Open, Oversized, Workshop in Garage
  • # of Garages:
    1
  • View:
    Garden, Trees/Woods

Interior

  • Interior Features:
    Accessibility Features, Ceiling Fans(s), Split Bedroom, Thermostat, Window Treatments
  • Appliances:
    Bar Fridge, Cooktop, Dishwasher, Disposal, Dryer, Electric Water Heater, Freezer, Ice Maker, Microwave, Range, Refrigerator, Washer
  • Heating:
    Central, Electric, Solar, Zoned
  • Cooling:
    Central Air, Mini-Split Unit(s)

Exterior

  • Exterior Features:
    Hurricane Shutters, Lighting, Private Mailbox, Rain Gutters, Sidewalk, Storage
  • Lot Description:
    Historic District, Level, Near Marina, Near Public Transit, Oversized Lot, Private, Sidewalk, Paved

Additional Information

  • Days on Market:
    161

Listing Details

  • Listing Office:
    Realty Hub

Listing information courtesy of Realty Hub.

All listing information is deemed reliable but not guaranteed and should be independently verified through personal inspection by appropriate professionals. Listings displayed on this website may be subject to prior sale or removal from sale; availability of any listing should always be independently verified.

Listing information is provided for consumer personal, non-commercial use, solely to identify potential properties for potential purchase; all other use is strictly prohibited and may violate relevant federal and state law.

Listing data comes from My Florida Regional MLS.

Listing information last updated on February 4th, 2026 at 3:06pm EST.