My Search Tools:

$1,875,000 - 668 American Legion Drive, MADEIRA BEACH

3
Bedrooms
3
Baths
2,728
SQ. Feet
0.1
Acres

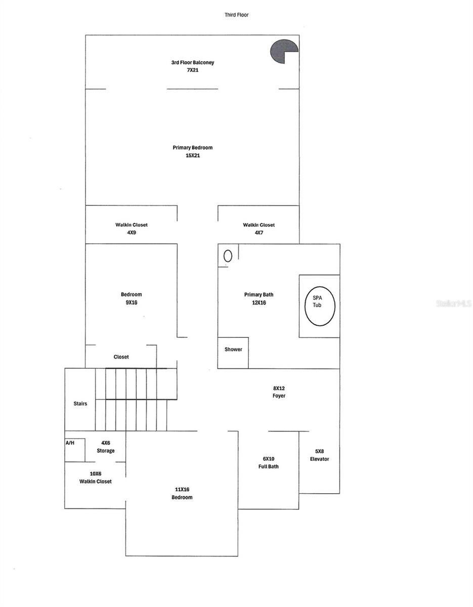
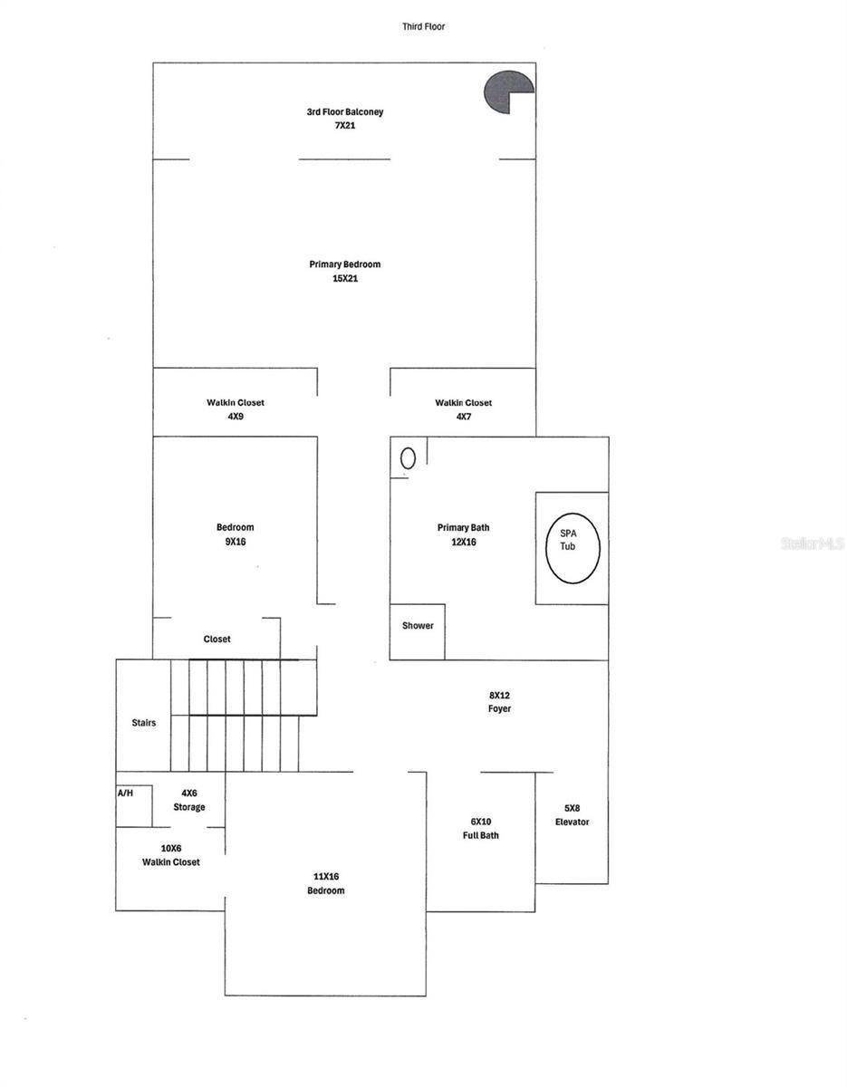
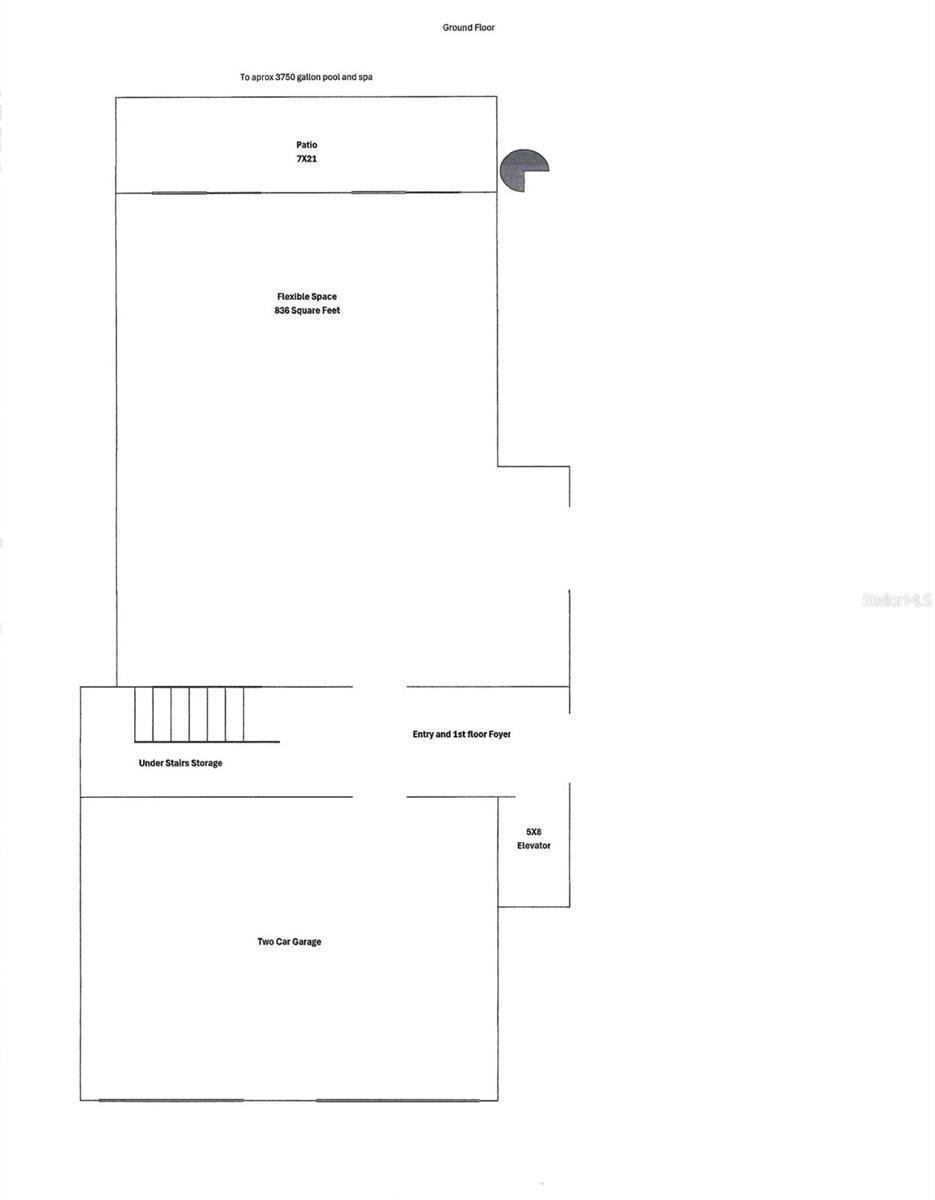
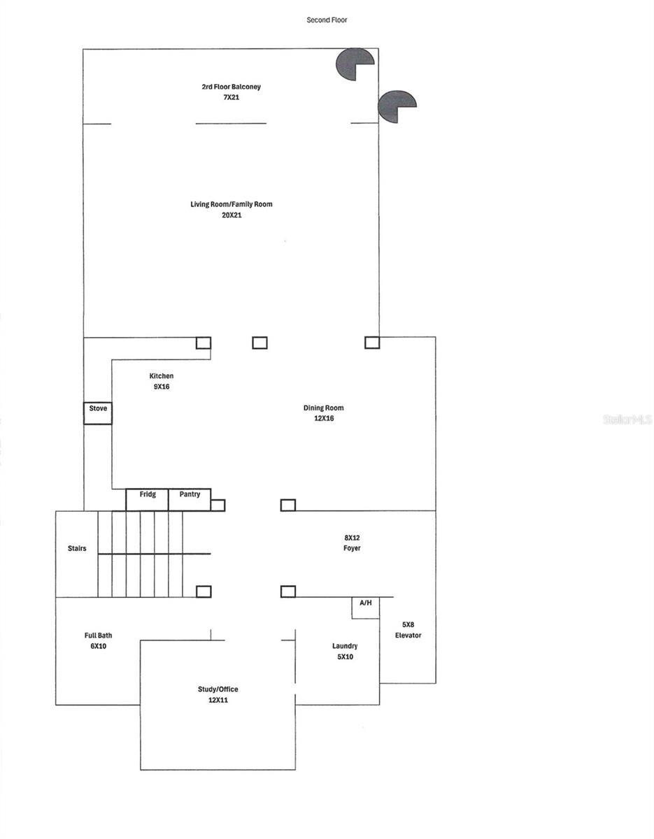
Great investment opportunity! Use as an ABNB, $1500 Dailey revenue! Unrivaled Waterfront Living with Panoramic Bay Views completely updated. Welcome to your dream home, a stunning 3-bedroom, 3-bathroom custom residence where luxury meets convenience on the water. Every detail of this home has been thoughtfully upgraded and meticulously maintained. Step inside through magnificent custom stained-glass front doors and feel the immediate sense of comfort. Boating enthusiasts will delight in the private dock, capable of accommodating approximately a 30-foot boat, providing direct access to the bay. Enjoy Paddle boarding in your back yard, the bay right behind house, and endless relaxation and entertainment in your heated pool, which can be heated up to 108 degrees! Larger filtration pump has been added so water in jets come out like a Jacuzzi! Can be enjoyed all year long. Spread out and entertain with ease, featuring a spacious bonus room on the first floor, (about 800 square feet not included in square footage of the house), – an incredibly versatile space ideal for a fourth bedroom, Mother-in-Law suite, state-of-the-art home gym, game room, or anything your heart desires. Comfort is paramount with two-zone AC systems and an on-demand tankless hot water system, and city gas for stove, and pool heater. This property is also equipped with a sprinkler system thru out the home for your safety, and your own private elevator. Ascend to the upper levels to discover not one, but two private balconies offering absolutely fabulous, unobstructed views of the bay. Imagine sipping your morning coffee or unwinding with a sunset cocktail as the water sparkles before you. Additional peace of mind comes with a lifetime warranty metal roof and an attached two-car garage. This exceptional home offers the perfect blend of tranquility and accessibility, being just minutes from pristine beaches, top-rated schools, and convenient shopping. Must take a look at this special property!

Essential Information

  • MLS® #:
    TB8409867
  • Price:
    $1,875,000
  • Bedrooms:
    3
  • Bathrooms:
    3.00
  • Full Baths:
    3
  • Square Footage:
    2,728
  • Acres:
    0.10
  • Year Built:
    2005
  • Type:
    Residential
  • Sub-Type:
    Single Family Residence
  • Status:
    Active

Community Information

  • Address:
    668 American Legion Drive
  • Area:
    St Pete/Madeira Bch/N Redington Bch/Shores
  • Subdivision:
    GALLEYS COVE
  • City:
    MADEIRA BEACH
  • County:
    Pinellas
  • State:
    FL
  • Zip Code:
    33708

Amenities

  • Parking:
    Garage Door Opener
  • # of Garages:
    2
  • Is Waterfront:
    Yes
  • Waterfront:
    Bay/Harbor, Intracoastal Waterway
  • Has Pool:
    Yes

Interior

  • Interior Features:
    Ceiling Fans(s), Crown Molding, Elevator, High Ceilings, PrimaryBedroom Upstairs, Thermostat, Walk-In Closet(s)
  • Appliances:
    Convection Oven, Dishwasher, Disposal, Dryer, Electric Water Heater, Exhaust Fan, Gas Water Heater, Ice Maker, Microwave, Range, Range Hood, Refrigerator, Tankless Water Heater, Washer, Water Filtration System
  • Heating:
    Central
  • Cooling:
    Central Air

Exterior

  • Exterior Features:
    Balcony
  • Roof:
    Metal
  • Foundation:
    Other

Additional Information

  • Days on Market:
    219
  • Zoning:
    R

Listing Details

  • Listing Office:
    Realty One Group Sunshine

Listing information courtesy of Realty One Group Sunshine.

All listing information is deemed reliable but not guaranteed and should be independently verified through personal inspection by appropriate professionals. Listings displayed on this website may be subject to prior sale or removal from sale; availability of any listing should always be independently verified.

Listing information is provided for consumer personal, non-commercial use, solely to identify potential properties for potential purchase; all other use is strictly prohibited and may violate relevant federal and state law.

Listing data comes from My Florida Regional MLS.

Listing information last updated on March 1st, 2026 at 3:48am EST.