My Search Tools:

$1,800,000 - 812 West Braddock Street, TAMPA

5
Bedrooms
5
Baths
3,771
SQ. Feet
0.14
Acres

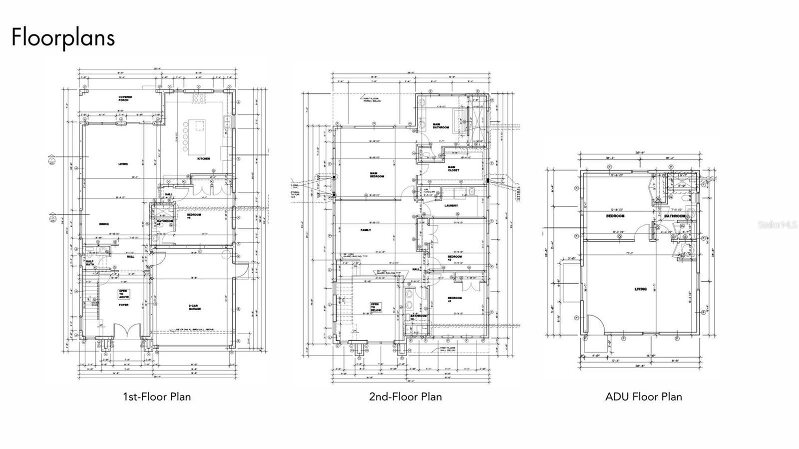
Under contract-accepting backup offers. Under Construction. Welcome to this beautifully curated home inspired by Scandinavian design and architecture. This stunning residence offers 3,771 square feet of thoughtfully designed living space. Upon entering, you're welcomed by a dramatic soaring foyer that opens to an expansive, open-concept living area — the perfect setting for both relaxation and entertaining.The main level also features a guest bedroom with an ensuite bath, offering privacy and comfort for visitors. With easy & convenient access to the living, dining, & outdoor space - the kitchen is surely an entertainers dream; featuring an oversized island, stainless steel appliances, dry bar, & custom cabinetry throughout - perfectly curated to please entertainers of all kind. Upstairs, you'll find a spacious family room - ideal for gatherings or quiet moments - the 2 additional guest rooms, a guest bath, laundry room, & the owners suite. The oversized primary owners suite serves as a peaceful retreat, offering plenty of windows for natural light, a walk in closet - and an oversized bathroom with dual vanities, a sizable shower, & a soaking tub - where you can relax and take the day away. The outdoor space is equally impressive, with a charming guest house complete with one bedroom and a full bathroom, offering a perfect sanctuary for visitors. Every element of this home is designed to create a warm, inviting atmosphere, showcasing the best of Scandinavian-inspired living. Situated in one of the most sought after neighborhoods - Riverside Heights - this is not just a house - it's a home. Just minutes to all that Tampa has to offer including downtown Tampa, Tampa Riverwalk, Michelin Star restaurants, Armature works, & several parks. Close proximity to Tampa International Airport, TGH, plenty of shopping & dining options, & so much more. Schedule your tour today!

Essential Information

  • MLS® #:
    TB8376068
  • Price:
    $1,800,000
  • Bedrooms:
    5
  • Bathrooms:
    5.00
  • Full Baths:
    4
  • Half Baths:
    1
  • Square Footage:
    3,771
  • Acres:
    0.14
  • Year Built:
    2025
  • Type:
    Residential
  • Sub-Type:
    Single Family Residence
  • Style:
    Other
  • Status:
    Pending

Community Information

  • Address:
    812 West Braddock Street
  • Area:
    Tampa / Seminole Heights
  • Subdivision:
    SUBURB ROYAL
  • City:
    TAMPA
  • County:
    Hillsborough
  • State:
    FL
  • Zip Code:
    33603

Amenities

  • # of Garages:
    2

Interior

  • Interior Features:
    Built-in Features, Ceiling Fans(s), Dry Bar, Kitchen/Family Room Combo, Open Floorplan, Walk-In Closet(s)
  • Appliances:
    Dishwasher, Disposal, Microwave, Range, Refrigerator
  • Heating:
    Central
  • Cooling:
    Central Air
  • Fireplace:
    Yes
  • Fireplaces:
    Electric

Exterior

  • Exterior Features:
    Lighting, Other, Rain Gutters, Sliding Doors
  • Lot Description:
    City Limits
  • Roof:
    Shingle
  • Foundation:
    Slab

Additional Information

  • Days on Market:
    259
  • Zoning:
    RS-50

Listing Details

  • Listing Office:
    Keller Williams Tampa Central

Listing information courtesy of Keller Williams Tampa Central.

All listing information is deemed reliable but not guaranteed and should be independently verified through personal inspection by appropriate professionals. Listings displayed on this website may be subject to prior sale or removal from sale; availability of any listing should always be independently verified.

Listing information is provided for consumer personal, non-commercial use, solely to identify potential properties for potential purchase; all other use is strictly prohibited and may violate relevant federal and state law.

Listing data comes from My Florida Regional MLS.

Listing information last updated on January 1st, 2026 at 6:19pm EST.