My Search Tools:

$840,000 - 777 Gran Kaymen Way, APOLLO BEACH

4
Bedrooms
3
Baths
2,396
SQ. Feet
0.07
Acres

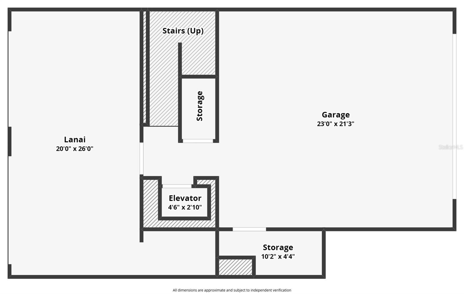
$20,000 FLEX CASH through the end of December! This can be applied towards a private POOL, outdoor kitchen, custom upgrades inside or out! The choice is yours! These townhomes each include a Private Elevator, a Rooftop Terrace, Dock with a 10,000lb Boat Lift. Direct and easy access to Tampa Bay! Concrete Block top to bottom. Impact windows and doors, plus designer-curated interior finishes. Designed with flexibility in mind, these townhomes have low rental restrictions. Details meticulously crafted for both function and luxury. The private 2-car garage comes equipped with an EV charging station, extra storage space, and a sleek exterior garage door. Just steps from your car you will be greeted by an expansive covered rear lanai that's pre-plumbed for an outdoor kitchen! An elevator inside your own home effortlessly transports you between floors, adding both grocery/luggage convenience, privacy, and sophistication. The open-concept kitchen is a chef's delight, featuring LG stainless steel appliances, Caesarstone quartz countertops, and a stunning waterfall island with a built-in SHARP drawer microwave. Adjacent to the kitchen, a flex space area provides ample room for gatherings and entertainment. The main living area includes a separate 4th bedroom or den/office along with a guest powder room. Upstairs from the main living space, the primary suite is a true retreat, offering a walk-in closet with custom shelving and an opulent ensuite bathroom with floor-to-ceiling marble, a walk-in shower, and a standalone soaking tub. LED-backlit mirrors adorn every bathroom. Custom walk-in closets. Two additional guest bedrooms also feature walk-in closets, plank tile flooring, and trim work as seen through the main living areas, tall solid core doors, expansive ceiling heights, and large windows for plenty of natural light, making the space feel elegant and inviting. Crowning this waterfront masterpiece is a private rooftop terrace! Panoramic views of Tampa Bay set the stage for unforgettable sunsets, summer storms, and fireworks. Whether enjoying a quiet evening under the stars or hosting a lively gathering, this rooftop oasis is the pinnacle of luxury living. Tropical landscaping plus lawn maintenance, irrigation, and a fishing pier are included in the low monthly HOA. No CDD fees. NO bridge restrictions! Builder warranty included! Financing Incentive available through preferred lender. Come join us for a Boat Tour and walk the fully decorated model!

Essential Information

  • MLS® #:
    TB8350530
  • Price:
    $840,000
  • Bedrooms:
    4
  • Bathrooms:
    3.00
  • Full Baths:
    2
  • Half Baths:
    1
  • Square Footage:
    2,396
  • Acres:
    0.07
  • Year Built:
    2025
  • Type:
    Residential
  • Sub-Type:
    Townhouse
  • Style:
    Custom
  • Status:
    Active

Community Information

  • Address:
    777 Gran Kaymen Way
  • Area:
    Apollo Beach / Ruskin
  • Subdivision:
    SADYNE SUNRISE TOWNHOMES
  • City:
    APOLLO BEACH
  • County:
    Hillsborough
  • State:
    FL
  • Zip Code:
    33572

Amenities

  • Parking:
    Driveway, Electric Vehicle Charging Station(s), Garage Door Opener, Ground Level
  • # of Garages:
    2
  • View:
    Water
  • Is Waterfront:
    Yes
  • Waterfront:
    Canal - Saltwater

Interior

  • Interior Features:
    Crown Molding, Eat-in Kitchen, Elevator, High Ceilings, Open Floorplan, Split Bedroom, Stone Counters, Walk-In Closet(s)
  • Appliances:
    Dishwasher, Disposal, Electric Water Heater, Microwave, Range, Range Hood, Refrigerator
  • Heating:
    Central
  • Cooling:
    Central Air
  • # of Stories:
    3

Exterior

  • Exterior Features:
    Lighting, Rain Gutters, Sidewalk, Sliding Doors
  • Lot Description:
    Cul-De-Sac, Flood Insurance Required, FloodZone, Sidewalk, Paved, Unincorporated
  • Roof:
    Other
  • Foundation:
    Slab

School Information

  • Elementary:
    Apollo Beach-HB
  • Middle:
    Eisenhower-HB
  • High:
    Lennard-HB

Additional Information

  • Days on Market:
    247
  • Zoning:
    RMC-9

Listing Details

  • Listing Office:
    Century 21 Beggins Enterprises

Listing information courtesy of Century 21 Beggins Enterprises.

All listing information is deemed reliable but not guaranteed and should be independently verified through personal inspection by appropriate professionals. Listings displayed on this website may be subject to prior sale or removal from sale; availability of any listing should always be independently verified.

Listing information is provided for consumer personal, non-commercial use, solely to identify potential properties for potential purchase; all other use is strictly prohibited and may violate relevant federal and state law.

Listing data comes from My Florida Regional MLS.

Listing information last updated on February 11th, 2026 at 9:03am EST.