My Search Tools:

$1,700,000 - 8911 North 12th Street, TAMPA

-
Bedrooms
-
Baths
13,272
SQ. Feet
0.8
Acres

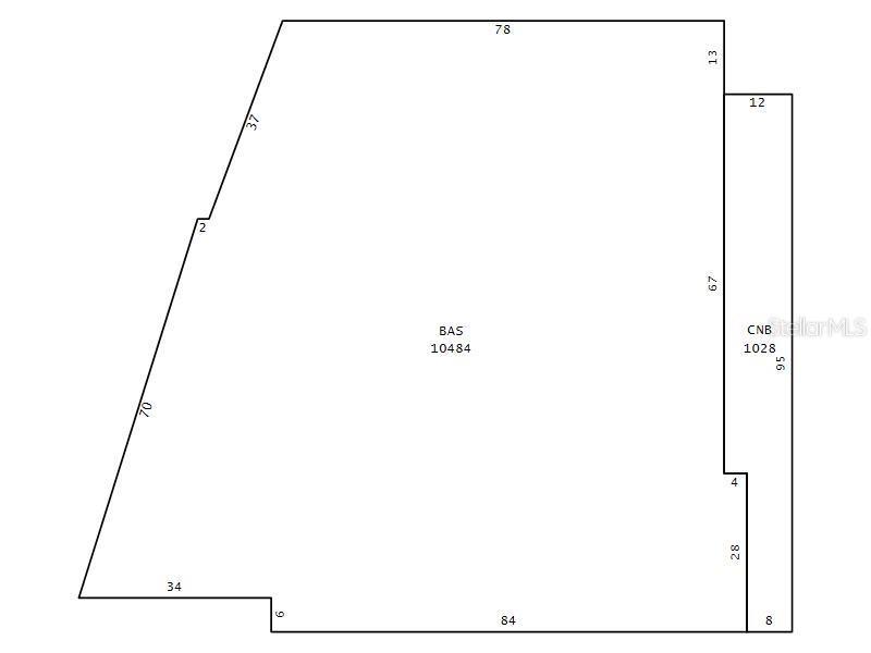
Florida Commercial Group presents industrial property for sale! Here is a perfect site for warehouse, manufacturing, light industrial or distribution businesses. Building 1 is an 11,521 +/- SF concrete building with a metal roof comprised of storage space and room for semi and large truck deliveries. There is also a drive-in-loading door that fronts 12th Street. The building’s clear height is 20’. Building 2 is 1,760+/- SF, is concrete block, with 20’ ceilings, two drive in bay doors and concrete floors. The property is fully fenced as well. The space of these buildings allows for plenty of room for vertical storage of inventory or high-volume material/ product deliveries and manufacturing/ assembling. The buildings sit on just under an acre (.80 acres) and offer direct visibility from Busch Blvd. This is a great opportunity for an investor seeking an opportunity to own/ use an industrial piece of property. There is also plenty of onsite parking. Call today for a showing.

Essential Information

  • MLS® #:
    TB8340388
  • Price:
    $1,700,000
  • Bathrooms:
    0.00
  • Square Footage:
    13,272
  • Acres:
    0.80
  • Year Built:
    1950
  • Type:
    Commercial Sale
  • Sub-Type:
    Industrial
  • Status:
    Active

Community Information

  • Address:
    8911 North 12th Street
  • Area:
    Tampa / Sulphur Springs
  • Subdivision:
    ORANGE TERRACE
  • City:
    TAMPA
  • County:
    Hillsborough
  • State:
    FL
  • Zip Code:
    33604

Amenities

  • Parking:
    Common, Secured

Interior

  • Cooling:
    None
  • # of Stories:
    1

Exterior

  • Roof:
    Metal
  • Foundation:
    Slab

Additional Information

  • Days on Market:
    349
  • Zoning:
    IG

Listing Details

  • Listing Office:
    Florida Commercial Group

Listing information courtesy of Florida Commercial Group.

All listing information is deemed reliable but not guaranteed and should be independently verified through personal inspection by appropriate professionals. Listings displayed on this website may be subject to prior sale or removal from sale; availability of any listing should always be independently verified.

Listing information is provided for consumer personal, non-commercial use, solely to identify potential properties for potential purchase; all other use is strictly prohibited and may violate relevant federal and state law.

Listing data comes from My Florida Regional MLS.

Listing information last updated on January 2nd, 2026 at 10:50am EST.