My Search Tools:

$2,749,900 - 3209 West Bay Vista Avenue, TAMPA

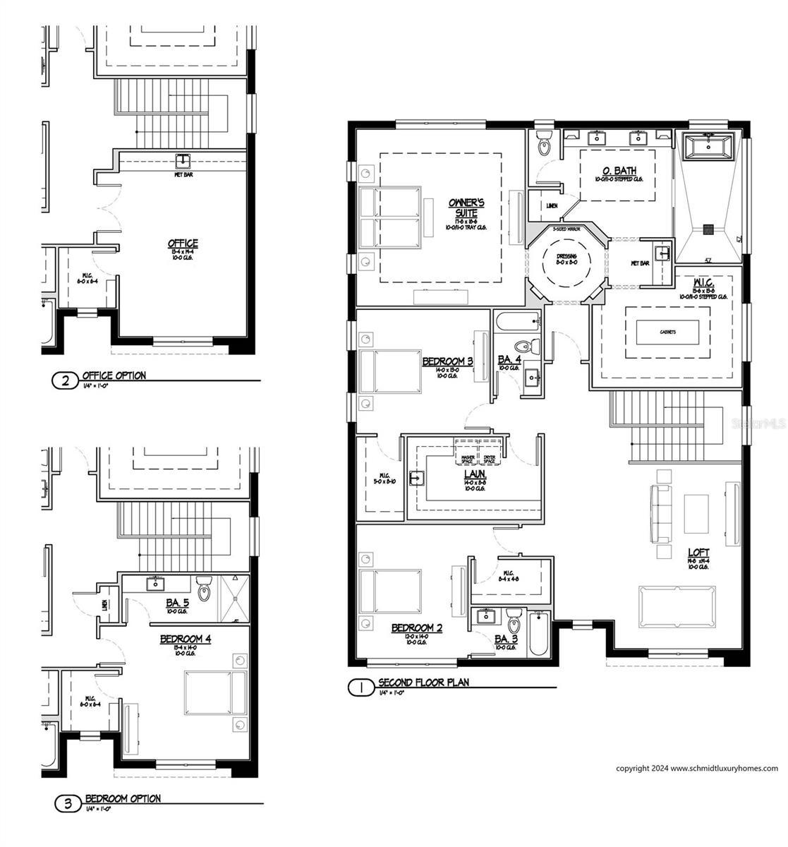
4
Bedrooms
5
Baths
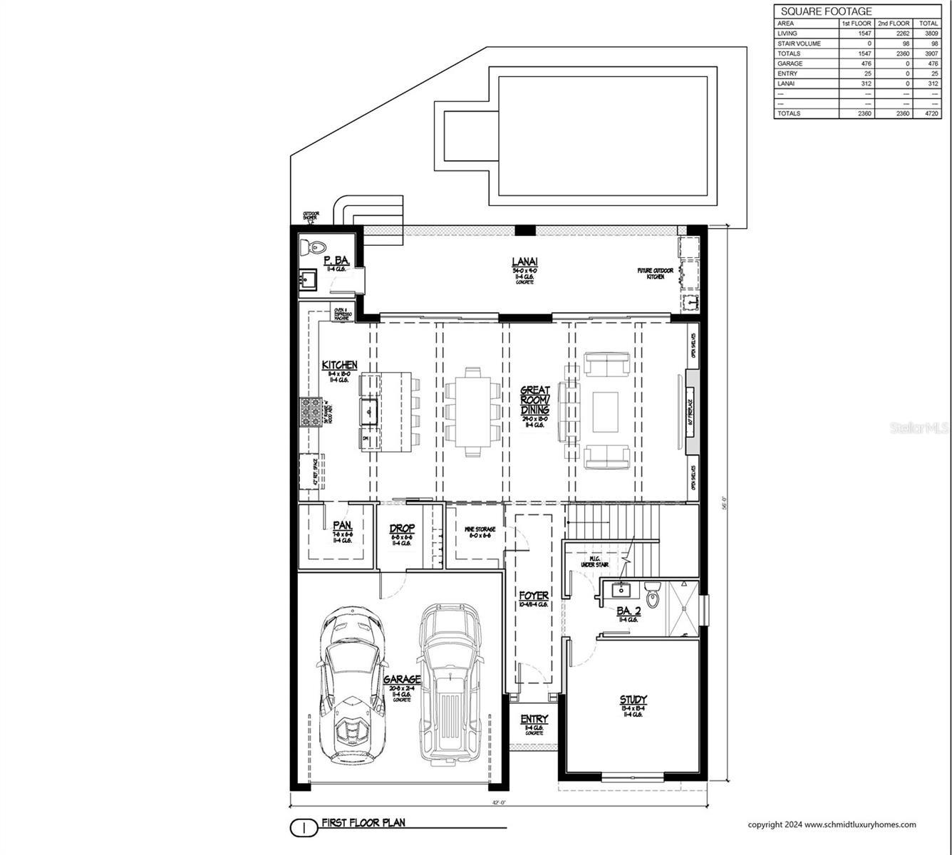
3,907
SQ. Feet
0.23
Acres

Pre-Construction. To be built. Located in the highly desirable Boulevard Heights neighborhood within the acclaimed Plant school district, 3209 W Bay Vista Avenue is a state-of-the-art preconstruction, luxury single-family home that boasts outstanding features designed with both hurricane hardening and climate resilience in mind. The entire home is built to meet or exceed the latest wind and FEMA flood requirements, with masonry exterior walls on both the first and second floors. It features "Impact Rated" insulated Lo-E windows and sliding glass doors, a hurricane wind zone (W6) rated "Modern Grooved" insulated garage door, and open cell foam insulation. Additionally, it has a generator switch prewire and gas plumbing for the generator, range, and tankless water heater, as well as a hardwired security system with camera-ready prewire points at all four outside corners. The contemporary modern architecture and design of the home include a modern exterior with clean lines and multiple mixed design surfaces, complemented by opulent contemporary interior design selections and fixtures. Inside, you'll find a custom horizontal cable railing for the interior stairs, a modern linear fireplace, and a stunning floor-to-ceiling double-sided glass wine enclosure. The lavish gourmet kitchen is equipped with Thermador appliances, including a built-in refrigerator and freezer, a commercial Thermador gas range and hood with a full-height quartz backsplash and pot filler, and a built-in espresso machine, wall oven, dishwasher, and microwave drawer. The spacious quartz island and kitchen layout provide plenty of room for culinary creations. The extravagant resort-style master wing features spacious, coffered 11-foot ceilings in the dressing area, master bedroom, and master closet. It includes a full-length three-sided mirror, an ensuite dressing area, a private morning bar/wet bar, and a massive shower and tub wet area with frameless glass panels and floor-to-ceiling tile. Outstanding design features throughout the home include 11’4” first-floor ceilings and 10’-11’ second-floor ceilings with 8-foot-tall doors, private en-suite baths for all bedrooms, and custom-selected luxury flooring and bath tile. The flex space on the second-floor loft area can be customized as a second home office, in-law suite, or home theater. The custom pool package completes the luxurious outdoor living experience, featuring a sun shelf, color LED lights, Pebble Tec interior, bubbler fountain, and bullnose coping. This home perfectly blends modern design with practical resilience, offering a safe and stylish living environment in a highly sought-after location in the Plant High school district.

Essential Information

  • MLS® #:
    TB8320232
  • Price:
    $2,749,900
  • Bedrooms:
    4
  • Bathrooms:
    5.00
  • Full Baths:
    4
  • Half Baths:
    1
  • Square Footage:
    3,907
  • Acres:
    0.23
  • Year Built:
    2025
  • Type:
    Residential
  • Sub-Type:
    Single Family Residence
  • Status:
    Active

Community Information

  • Address:
    3209 West Bay Vista Avenue
  • Area:
    Tampa
  • Subdivision:
    BAYSHORE BEAUTIFUL
  • City:
    TAMPA
  • County:
    Hillsborough
  • State:
    FL
  • Zip Code:
    33611

Amenities

  • # of Garages:
    2
  • Is Waterfront:
    Yes
  • Waterfront:
    Pond
  • Has Pool:
    Yes

Interior

  • Interior Features:
    Coffered Ceiling(s), Open Floorplan, Solid Surface Counters, Wet Bar
  • Appliances:
    Dishwasher, Disposal, Range, Range Hood, Refrigerator, Tankless Water Heater
  • Heating:
    Central, Heat Pump
  • Cooling:
    Central Air
  • Fireplace:
    Yes
  • Fireplaces:
    Electric
  • # of Stories:
    1

Exterior

  • Exterior Features:
    Outdoor Shower
  • Roof:
    Other
  • Foundation:
    Slab

School Information

  • Elementary:
    Roosevelt-HB
  • Middle:
    Coleman-HB
  • High:
    Plant-HB

Additional Information

  • Days on Market:
    406
  • Zoning:
    RS-60

Listing Details

  • Listing Office:
    Schmidt Real Estate, Inc.

Listing information courtesy of Schmidt Real Estate, Inc..

All listing information is deemed reliable but not guaranteed and should be independently verified through personal inspection by appropriate professionals. Listings displayed on this website may be subject to prior sale or removal from sale; availability of any listing should always be independently verified.

Listing information is provided for consumer personal, non-commercial use, solely to identify potential properties for potential purchase; all other use is strictly prohibited and may violate relevant federal and state law.

Listing data comes from My Florida Regional MLS.

Listing information last updated on December 24th, 2025 at 11:49am EST.