My Search Tools:

$1,350,000 - 2103 North Howard Avenue, TAMPA

-
Bedrooms
-
Baths
N/A
SQ. Feet
0.54
Acres

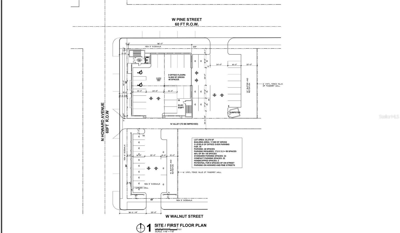
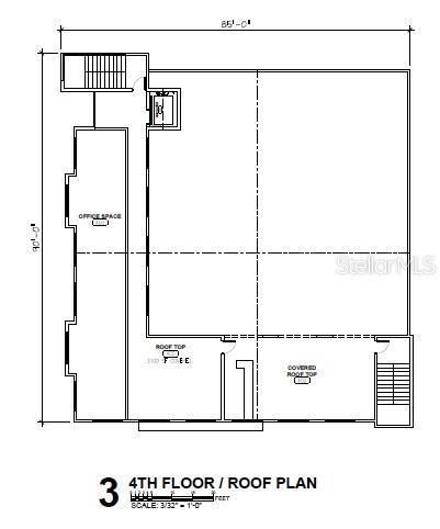
A unique opportunity for businesses or developers alike in this Howard Avenue Development Site. This assemblage consists of three vacant Commercial Intensive zoned parcels totaling 23,392 SF. The site can be used for a variety of uses such as multi-family or retail and is currently approved for a 17,900 SF, 4 story class A office structure with a rooftop deck with top floor executive offices and an outside private patio area overlooking the Downtown Tampa skyline. The site was designed with 48 parking places with an additional 9 street parking spaces. Design exceptions and site plan have been approved yet permits have not been applied for so a developer could take the project in a new direction for retail or multi-family as the Future Land Use is Community Commercial 35 (2.0 FAR) and Residential 35 (.60 FAR) allowing for higher density multifamily with a potential for increased density by use of The State of Florida's Live Local Act. The site also sits within the West Tampa Overlay as well as the West Tampa CRA (Community Redevelopment Area) and may be eligible for a variety of grants. Surveys and plans can be made available for review to interested parties and for use to eventual purchaser. Traffic count of 19,000 VPD. Located in Tampa just north of I-275, offering easy access to surrounding areas.

Essential Information

  • MLS® #:
    TB8301880
  • Price:
    $1,350,000
  • Bathrooms:
    0.00
  • Acres:
    0.54
  • Type:
    Land
  • Sub-Type:
    Land
  • Status:
    Active

Community Information

  • Address:
    2103 North Howard Avenue
  • Area:
    Tampa
  • Subdivision:
    MAC FARLANES REV MAP OF ADD
  • City:
    TAMPA
  • County:
    Hillsborough
  • State:
    FL
  • Zip Code:
    33607

Additional Information

  • Days on Market:
    497
  • Zoning:
    CI

Listing Details

  • Listing Office:
    Bay Street Commercial Llc

Listing information courtesy of Bay Street Commercial Llc.

All listing information is deemed reliable but not guaranteed and should be independently verified through personal inspection by appropriate professionals. Listings displayed on this website may be subject to prior sale or removal from sale; availability of any listing should always be independently verified.

Listing information is provided for consumer personal, non-commercial use, solely to identify potential properties for potential purchase; all other use is strictly prohibited and may violate relevant federal and state law.

Listing data comes from My Florida Regional MLS.

Listing information last updated on January 19th, 2026 at 10:35am EST.