My Search Tools:

$1,800,000 - N Main Street, ST CLOUD

3
Bedrooms
3
Baths
1,600
SQ. Feet
2.35
Acres

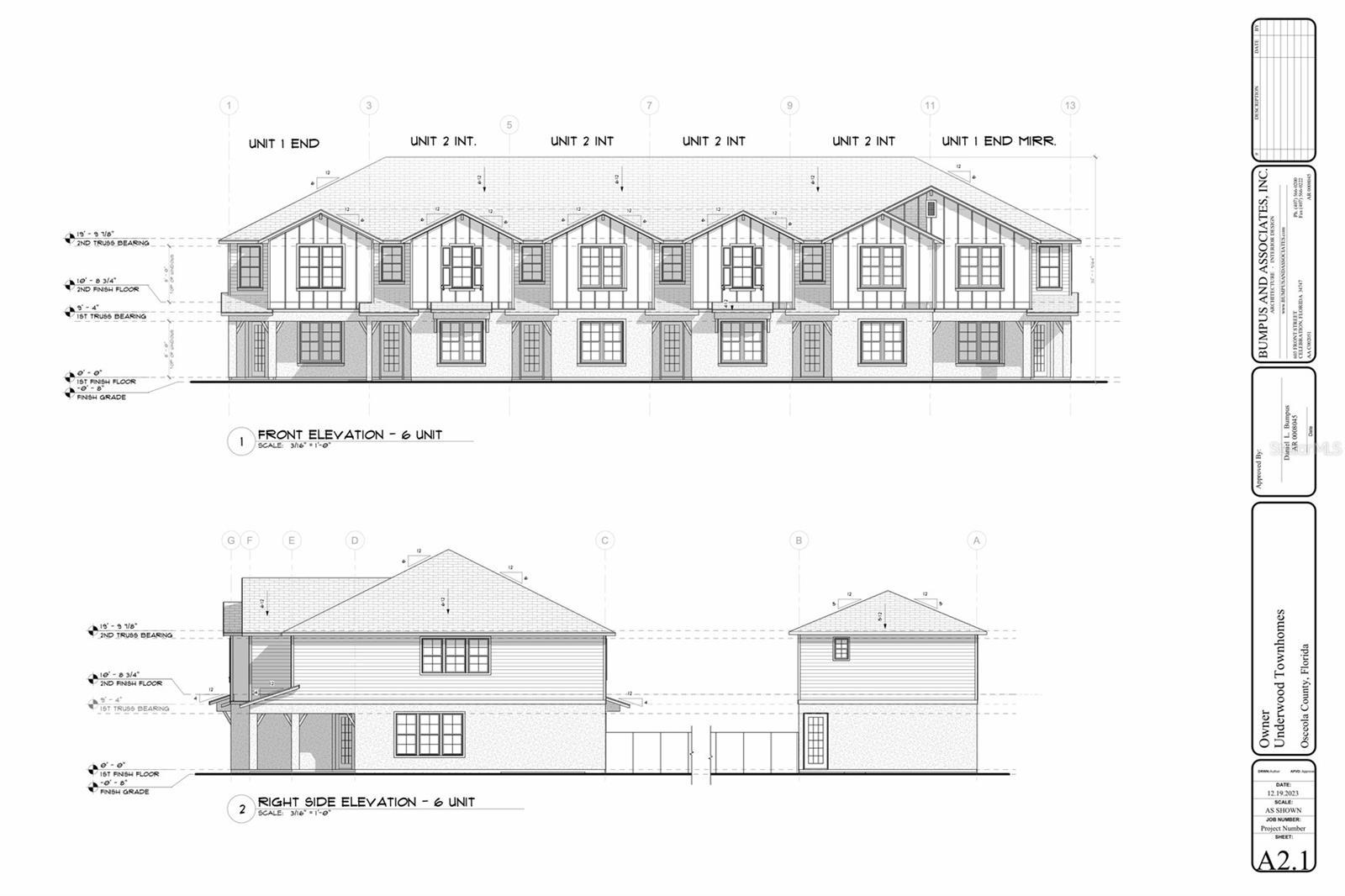
Pre-Construction. To be built. ATTENTION!! ATTENTION!!  BUILDERS... Amazing opportunity for build to rent / build to sell 17 Townhouses in a prime rapidly growing area off  the Narcoossee Corridor just south of Lake Nona and Medical City area. Existing plan consist 32 building with 6 townhomes and 1 building with 5 units, with mix of 3 and 4 bedrooms. Zoned for LDR -2.35 acres this property Property consists of 4 parcels and a portion of vacated right of way. Great access from Narcoossee and Jack Brack Roads.   Perfectly shaped and situated lot with architectural plans to build multi-family residential complex of fine 17 townhomes with attached garages and ,clubhouse and plenty of street parking . Outstanding ROI, solid deal for small or savvy investors to create their own community. There is also an option to add studio above garages for extra cash flow.  Water and Sewer available. Permits are almost ready so are a team of professionals  if you like one stop shopping. Location is everything ,this lot is situated  right near the multibillion dollars development of Neo City, Lake Nona. That means equity , tons of equity, no matter if you build, rent, wait or resell. This incredible lot is located  Nearby access to Hwy 417,  International Airport, Hgwy 528, Nemours Hospital, Newer VA Hospital and UCF Medical College.  Contact  today with all your questions!

Essential Information

  • MLS® #:
    S5111955
  • Price:
    $1,800,000
  • Bedrooms:
    3
  • Bathrooms:
    3.00
  • Square Footage:
    1,600
  • Acres:
    2.35
  • Year Built:
    2025
  • Type:
    Residential Income
  • Sub-Type:
    Multi Family
  • Status:
    Active

Community Information

  • Address:
    N Main Street
  • Area:
    St Cloud (Magnolia Square)
  • Subdivision:
    NARCOOSSEE NEW MAP OF
  • City:
    ST CLOUD
  • County:
    Osceola
  • State:
    FL
  • Zip Code:
    34771

Amenities

  • # of Garages:
    2

Interior

  • Interior Features:
    Ceiling Fans(s)
  • Heating:
    Central
  • Cooling:
    Central Air

Exterior

  • Exterior Features:
    Sidewalk
  • Roof:
    Shingle
  • Foundation:
    Slab

Additional Information

  • Days on Market:
    478
  • Zoning:
    RS-2

Listing Details

  • Listing Office:
    Charles Rutenberg Realty Orlando

Listing information courtesy of Charles Rutenberg Realty Orlando.

All listing information is deemed reliable but not guaranteed and should be independently verified through personal inspection by appropriate professionals. Listings displayed on this website may be subject to prior sale or removal from sale; availability of any listing should always be independently verified.

Listing information is provided for consumer personal, non-commercial use, solely to identify potential properties for potential purchase; all other use is strictly prohibited and may violate relevant federal and state law.

Listing data comes from My Florida Regional MLS.

Listing information last updated on January 1st, 2026 at 1:49pm EST.