My Search Tools:

$1,567,000 - 100 Jardin Cove, ALTAMONTE SPRINGS

4
Bedrooms
5
Baths
4,227
SQ. Feet
0.15
Acres

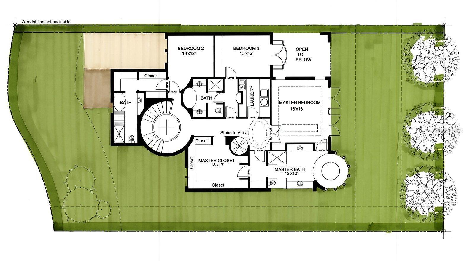
Under Construction. Brand new subdivision. Located between Maitland and Altamonte Springs. I4 access is just minutes away, with effortless travels to downtown, Winter Park, Cranes Roost, and more. Enjoy a new luxurious subdivision, crafted by award winning architects and developers on a hilly and natural terrain, surrounded by beautiful oaks and multi million dollar homes. New construction means the latest technology and construction materials. 10 lots available, ranging in different sizes and custom designs, fit just for you. Build the home of your dreams, the home you deserve. Welcome to Central Florida’s NEW and EXCLUSIVE architectural jewel, Club at Maison Jardin. This unique and charming 10 custom home community will transcend you out of the dated central Florida market, and into an imaginative world of architectural creativity and LUXURY. Designed by the creative minds of award-winning architect-builder, Silver Sea Homes Inc. Club at Maison Jardin is unlike anything you have seen before. With its SLOPING TOPOGRAPHY and rare HERITAGE OAK TREES, this unique community will feel like you are entering a charming old world Tuscan town, executed with all of today’s latest technology, materials, and amenities. With 10 original floor plans, no two homes are alike. Each has been meticulously designed to perfectly fit their unique and lavish landscape, and topography. The homes will feature the latest in LUXURY DESIGN. Some of the features include COURTYARD DESIGNS, INDOOR-OUTDOOR LIVING SPACES, HIGH END THERMADOR APPLIANCES, HIGH CEILINGS AND DOUBLE HEIGHT SPACES, SMART HOME TECHNOLOGY, OVERSIZED WINDOWS AND DOORS, CONCRETE BARREL TILE ROOFS, THEATER ROOMS, BARS AND WINE CELLARS, SUMMER KITCHENS, CUSTOM CLOSETS, EXQUISITE CARPENTRY DETAILS, and INNOVATIVE KITCHEN AND BATH DESIGNS, to name a few. The community will have plumbed natural gas appliances, tankless water heaters, oversized ranges, fireplaces, and outdoor grills. The latest technology and materials will enhance the outdoor and indoor environments to complement their architectural potential and comfortability. Silver Sea Homes has built over a million square feet of A-Class real estate locally, and in Europe and South America. Their Internationally recognized architectural style is truly unmatched in originality and built quality. Your new dream home will come with a builder-backed warrantee to ensure the peace of mind and security you deserve. . Price includes land

Essential Information

  • MLS® #:
    R4907305
  • Price:
    $1,567,000
  • Bedrooms:
    4
  • Bathrooms:
    5.00
  • Full Baths:
    4
  • Half Baths:
    1
  • Square Footage:
    4,227
  • Acres:
    0.15
  • Year Built:
    2024
  • Type:
    Residential
  • Sub-Type:
    Single Family Residence
  • Status:
    Pending

Community Information

  • Address:
    100 Jardin Cove
  • Area:
    Altamonte Springs West/Forest City
  • Subdivision:
    CLUB AT MAISON JARDIN
  • City:
    ALTAMONTE SPRINGS
  • County:
    Seminole
  • State:
    FL
  • Zip Code:
    32714

Amenities

  • # of Garages:
    2
  • Has Pool:
    Yes

Interior

  • Interior Features:
    Central Vaccum, Crown Molding, High Ceilings, Kitchen/Family Room Combo, Primary Bedroom Main Floor, PrimaryBedroom Upstairs, Open Floorplan, Smart Home, Walk-In Closet(s)
  • Appliances:
    Cooktop, Dishwasher, Microwave, Range, Range Hood, Refrigerator, Tankless Water Heater
  • Heating:
    Central, Heat Pump
  • Cooling:
    Central Air
  • Fireplace:
    Yes

Exterior

  • Exterior Features:
    French Doors, Irrigation System, Outdoor Kitchen, Sliding Doors
  • Roof:
    Tile
  • Foundation:
    Block, Slab

Additional Information

  • Days on Market:
    796
  • Zoning:
    RES

Listing Details

  • Listing Office:
    Silver Sea Realty

Listing information courtesy of Silver Sea Realty.

All listing information is deemed reliable but not guaranteed and should be independently verified through personal inspection by appropriate professionals. Listings displayed on this website may be subject to prior sale or removal from sale; availability of any listing should always be independently verified.

Listing information is provided for consumer personal, non-commercial use, solely to identify potential properties for potential purchase; all other use is strictly prohibited and may violate relevant federal and state law.

Listing data comes from My Florida Regional MLS.

Listing information last updated on January 13th, 2026 at 11:35am EST.