My Search Tools:

$2,595,000 - (Undisclosed Address), HATO REY

-
Bedrooms
-
Baths
N/A
SQ. Feet
0.4
Acres

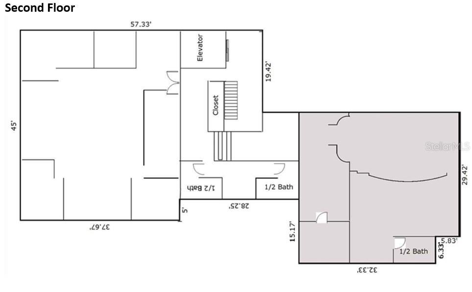
Commercial building/triple-frontage lot located at the intersection of José Martí, Padre Rufo, and Jamaica Streets (Floral Park, Hato Rey, San Juan). Lot size: 1,618 m²; construction: 14,227 sq ft distributed across a basement plus 3 levels. Reinforced-concrete structure formerly used as a clinical laboratory and medical offices. First level with multiple rooms (offices, X-ray, MRI), 8 half baths and 1 full bath; basement: 1,381 sq ft. Second level with offices, conference room, cubicles, and 3 half baths. Small third level with rooftop access. Fourteen open parking spaces. Zoning: R-I. Flood zone: Zone X (outside flood-risk area). Highest and best use: commercial. The property requires repairs.

Essential Information

  • MLS® #:
    PR9117202
  • Price:
    $2,595,000
  • Bathrooms:
    0.00
  • Acres:
    0.40
  • Year Built:
    1985
  • Type:
    Commercial Sale
  • Sub-Type:
    Office
  • Status:
    Active

Community Information

  • Address:
    N/A
  • Area:
    San Juan
  • City:
    HATO REY
  • County:
    San Juan
  • State:
    PR
  • Zip Code:
    00917

Interior

  • Cooling:
    None

Exterior

  • Foundation:
    Concrete Perimeter

Additional Information

  • Days on Market:
    102

Listing Details

  • Listing Office:
    Suksa Realty

Listing information courtesy of Suksa Realty.

All listing information is deemed reliable but not guaranteed and should be independently verified through personal inspection by appropriate professionals. Listings displayed on this website may be subject to prior sale or removal from sale; availability of any listing should always be independently verified.

Listing information is provided for consumer personal, non-commercial use, solely to identify potential properties for potential purchase; all other use is strictly prohibited and may violate relevant federal and state law.

Listing data comes from My Florida Regional MLS.

Listing information last updated on February 21st, 2026 at 11:03pm EST.