My Search Tools:

$17,000,000 - Carretera 2, Km 3.1, BAYAMON

-
Bedrooms
-
Baths
N/A
SQ. Feet
26.97
Acres

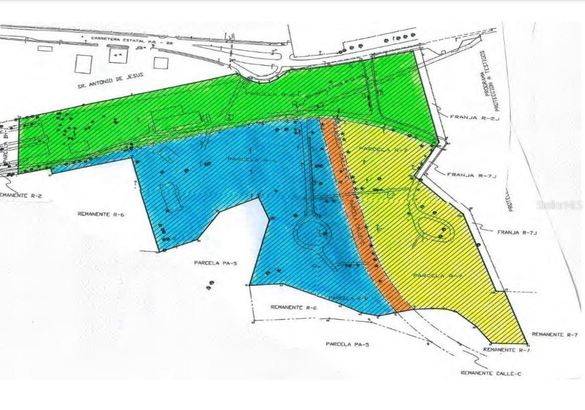
This exceptional industrial lot is located in Bayamón’s prime industrial district, strategically positioned near major ports and key distributors including Goya and Puma Energy, among others. With Heavy Industrial (I-P) zoning and a total registered area of 114,223.77 square meters (28.19 acres) across four segregated parcels, the site provides extraordinary flexibility for large-scale development. Its strategic location, connectivity, and ample space make it ideal for distribution centers, logistics hubs, manufacturing facilities, or industrial warehouses seeking proximity to San Juan’s metropolitan market. Highlights: • Prime Bayamón industrial location near major distributors and infrastructure • Heavy Industrial (I-P) zoning • Total area: 114,223.77 m² (28.19 acres) • Subdivided into 4 registered parcels • Ideal for logistics, warehousing, or manufacturing projects • $148.83 a square meter

Essential Information

  • MLS® #:
    PR9115671
  • Price:
    $17,000,000
  • Bathrooms:
    0.00
  • Acres:
    26.97
  • Type:
    Land
  • Sub-Type:
    Land
  • Status:
    Active

Community Information

  • Address:
    Carretera 2, Km 3.1
  • Area:
    Bayamon
  • City:
    BAYAMON
  • County:
    Bayamón
  • State:
    PR
  • Zip Code:
    00961

Additional Information

  • Days on Market:
    117
  • Zoning:
    RINC

Listing Details

  • Listing Office:
    Meilyn Guzman Ensenat

Listing information courtesy of Meilyn Guzman Ensenat.

All listing information is deemed reliable but not guaranteed and should be independently verified through personal inspection by appropriate professionals. Listings displayed on this website may be subject to prior sale or removal from sale; availability of any listing should always be independently verified.

Listing information is provided for consumer personal, non-commercial use, solely to identify potential properties for potential purchase; all other use is strictly prohibited and may violate relevant federal and state law.

Listing data comes from My Florida Regional MLS.

Listing information last updated on February 4th, 2026 at 7:49pm EST.