My Search Tools:

$24 - 90 Alondra St., SAN JUAN

-
Bedrooms
-
Baths
N/A
SQ. Feet
1.7
Acres

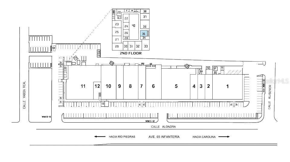
Plaza 65 Shopping Center is located on 65th Infantry Ave. near Campo Rico Ave, Costco, and Plaza Escorial. The center has been fully remodeled and upgraded. Join Auto Zone, Rent a Center, Uniform Outlet, All Ways 99 and Pet House. Beautiful completely remodeled offices on the second level of Plaza 65 Shopping Center. Car traffic in front of the center is 66,137 cars daily and the population within a 3-mile radius is 312,030, making it an ideal location for any retail or service business. Offices on the second floor have available full power generator, cistern and fiber optic internet service.

Essential Information

  • MLS® #:
    PR0000398
  • Price:
    $24
  • Bathrooms:
    0.00
  • Acres:
    1.70
  • Year Built:
    1995
  • Type:
    Commercial Lease
  • Sub-Type:
    Mixed Use
  • Status:
    Active

Community Information

  • Address:
    90 Alondra St.
  • Subdivision:
    PLAZA 65 SHOPPING
  • City:
    SAN JUAN
  • County:
    San Juan
  • State:
    PR
  • Zip Code:
    00924

Amenities

  • # of Garages:
    216

Interior

  • Cooling:
    None

Additional Information

  • Days on Market:
    2550

Listing Details

  • Listing Office:
    Winer Property Group

Listing information courtesy of Winer Property Group.

All listing information is deemed reliable but not guaranteed and should be independently verified through personal inspection by appropriate professionals. Listings displayed on this website may be subject to prior sale or removal from sale; availability of any listing should always be independently verified.

Listing information is provided for consumer personal, non-commercial use, solely to identify potential properties for potential purchase; all other use is strictly prohibited and may violate relevant federal and state law.

Listing data comes from My Florida Regional MLS.

Listing information last updated on January 31st, 2026 at 10:49am EST.