My Search Tools:

$799,000 - 2683 Wyndsor Oaks Way, WINTER HAVEN

4
Bedrooms
4
Baths
3,440
SQ. Feet
0.57
Acres

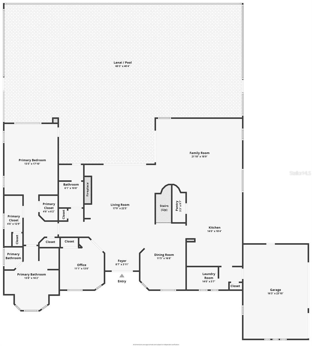
Back on market, property passed inspections already. Welcome to 2683 Wyndsor Oaks Way, Winter Haven, FL – an extraordinary residence in the highly sought-after gated Wyndsor at Lake Winterset community, offering a luxurious lifestyle with lake access, tennis courts, and a playground. This stunning home blends timeless elegance with modern comforts, creating a perfect sanctuary for discerning buyers. As you enter, a gracious foyer welcomes you into a sunlit living area that exudes warmth and sophistication. The open layout features a cozy yet spacious living room, perfect for relaxing with loved ones. A formal dining area leads seamlessly into the gourmet kitchen, equipped with high-end stainless steel appliances, recently updated double ovens, exquisite granite countertops, and ample custom cabinetry. This thoughtfully designed home offers flexibility and functionality, including a versatile den/bonus room on the main floor, ideal as a home office, playroom, or entertainment space. The oversized primary suite on the main level is a true retreat, featuring a spa-like en-suite bath with dual vanities, a luxurious soaking tub, a walk-in shower, and generous closet space. Step outside to your own private paradise – a serene outdoor haven with a sparkling pool, lush landscaping offering amazing pond views. The pool’s salt cell has been recently replaced, ensuring easy maintenance for years to come. The expansive patio invites al fresco dining, summer gatherings, and tranquil evenings under the stars. Upstairs, you’ll find three well-appointed guest bedrooms and a media room all with recently updated flooring, There are two additional guest bathrooms, providing comfort and privacy for family and guests alike. Additional highlights include a three-car garage, offering plenty of storage and convenience and plenty of parking space including a circular paved driveway. Located in the heart of Winter Haven, this home offers central access to both Tampa and Orlando. It is just minutes from Legoland and approximately 1.5 hours from Florida’s beautiful east and west coasts, making it ideal for those who appreciate both convenience and adventure. Don’t miss this rare opportunity to call 2683 Wyndsor Oaks Way your forever home – schedule your private showing today!

Essential Information

  • MLS® #:
    P4933374
  • Price:
    $799,000
  • Bedrooms:
    4
  • Bathrooms:
    4.00
  • Full Baths:
    4
  • Square Footage:
    3,440
  • Acres:
    0.57
  • Year Built:
    2002
  • Type:
    Residential
  • Sub-Type:
    Single Family Residence
  • Status:
    Active

Community Information

  • Address:
    2683 Wyndsor Oaks Way
  • Area:
    Winter Haven / Cypress Gardens
  • Subdivision:
    WYNDSOR AT LAKE WINTERSET
  • City:
    WINTER HAVEN
  • County:
    Polk
  • State:
    FL
  • Zip Code:
    33884

Amenities

  • Amenities:
    Gated, Playground, Tennis Court(s)
  • Parking:
    Circular Driveway, Oversized
  • # of Garages:
    3
  • Has Pool:
    Yes

Interior

  • Interior Features:
    Built-in Features, Ceiling Fans(s), Crown Molding, High Ceilings, Solid Wood Cabinets, Stone Counters, Thermostat, Walk-In Closet(s), Window Treatments
  • Appliances:
    Built-In Oven, Convection Oven, Dishwasher, Dryer, Gas Water Heater, Range, Refrigerator, Washer
  • Heating:
    Central, Electric
  • Cooling:
    Central Air
  • Fireplace:
    Yes
  • Fireplaces:
    Gas, Living Room

Exterior

  • Exterior Features:
    Balcony, Courtyard, French Doors, Garden, Lighting
  • Roof:
    Tile
  • Foundation:
    Slab

School Information

  • Elementary:
    Chain O Lakes Elem
  • Middle:
    Denison Middle
  • High:
    Lake Region High

Additional Information

  • Days on Market:
    258

Listing Details

  • Listing Office:
    Re/max Heritage Professionals

Listing information courtesy of Re/max Heritage Professionals.

All listing information is deemed reliable but not guaranteed and should be independently verified through personal inspection by appropriate professionals. Listings displayed on this website may be subject to prior sale or removal from sale; availability of any listing should always be independently verified.

Listing information is provided for consumer personal, non-commercial use, solely to identify potential properties for potential purchase; all other use is strictly prohibited and may violate relevant federal and state law.

Listing data comes from My Florida Regional MLS.

Listing information last updated on February 15th, 2026 at 12:18pm EST.