My Search Tools:

$1,300,000 - 18080 North Us Highway 441, REDDICK

-
Bedrooms
-
Baths
N/A
SQ. Feet
1.2
Acres

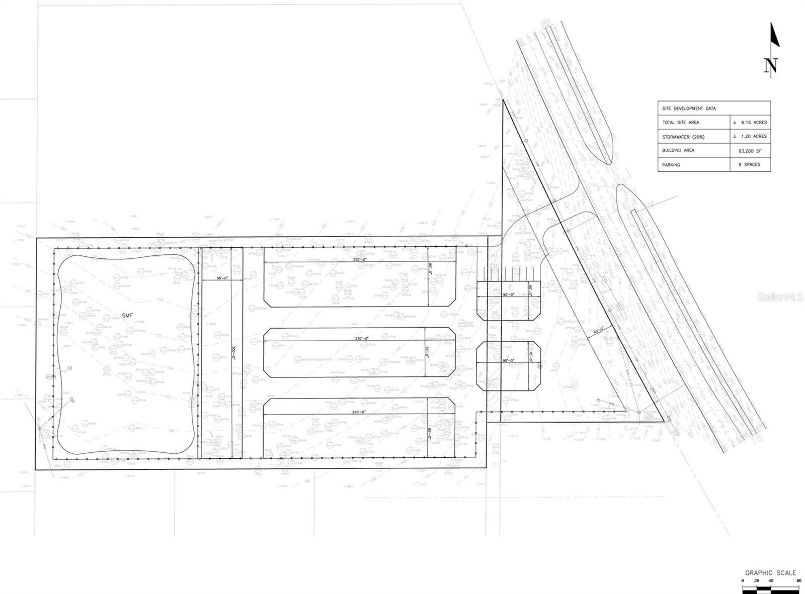
Prime 6-acre commercial property primed for development as a self-storage facility, with zoning and studies complete to streamline your investment. Strategically positioned on the west side of US Hwy 441, this site boasts exceptional exposure with over 8,500 daily vehicles, ensuring maximum visibility for your business. Conveniently located with easy access to Ocala, Gainesville, and I-75, the property is perfectly suited for capturing regional demand. True By-Right Execution: This is a permit-ready, by-right self-storage site, eliminating zoning uncertainty and significantly reducing entitlement timelines—an increasingly rare advantage in Central Florida. By-Right, Permit-Ready Opportunity: Self-storage is approved by right under the current CP zoning, allowing a qualified buyer to move directly to permitting and construction without rezoning or entitlement risk—ideal for developers seeking speed to market. Recently rezoned to RAC (Rural Activity Center), the site is approved by right for self-storage, eliminating zoning hurdles. The versatile RAC zoning also permits a wide array of commercial uses, including gas stations, car washes, professional offices, and more, offering flexibility for diverse development opportunities. Key features include: Development-Ready: Boundary and topography surveys completed, along with environmental studies, ensuring no surprises during planning. Conceptual Plan Included: A detailed concept plan for a self-storage facility is provided to jumpstart your project. Proforma Available: Financial projections included, based on comparable facilities in nearby Williston and Ocala, with limited local competition for self-storage, enhancing market potential. Infrastructure Support: FDOT plans to resurface Hwy 441 along the property, improving access and appeal. With no direct competition in the immediate area, this high-traffic, high-visibility site is an exceptional opportunity for developers or investors looking to capitalize on the growing demand for self-storage or other commercial ventures. Don’t miss this turnkey development prospect in a rapidly accessible corridor!

Essential Information

  • MLS® #:
    OM707339
  • Price:
    $1,300,000
  • Bathrooms:
    0.00
  • Acres:
    1.20
  • Year Built:
    1951
  • Type:
    Commercial Sale
  • Sub-Type:
    Mixed Use
  • Status:
    Active

Community Information

  • Address:
    18080 North Us Highway 441
  • Area:
    Reddick
  • City:
    REDDICK
  • County:
    Marion
  • State:
    FL
  • Zip Code:
    32686

Interior

  • Cooling:
    Other
  • # of Stories:
    1

Exterior

  • Foundation:
    Other

Additional Information

  • Days on Market:
    212
  • Zoning:
    RAC

Listing Details

  • Listing Office:
    Florida Homes Realty & Mortgage

Listing information courtesy of Florida Homes Realty & Mortgage.

All listing information is deemed reliable but not guaranteed and should be independently verified through personal inspection by appropriate professionals. Listings displayed on this website may be subject to prior sale or removal from sale; availability of any listing should always be independently verified.

Listing information is provided for consumer personal, non-commercial use, solely to identify potential properties for potential purchase; all other use is strictly prohibited and may violate relevant federal and state law.

Listing data comes from My Florida Regional MLS.

Listing information last updated on March 13th, 2026 at 4:33pm EDT.