My Search Tools:

$849,510 - 1393 Zesty Citrus Lane, MINNEOLA

4
Bedrooms
4
Baths
3,108
SQ. Feet
0.14
Acres

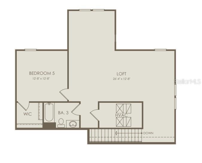
Del Webb at Minneola is a luxurious guard-gated 55+ active adult community offering new construction single-family homes in an unrivaled location on one of the highest peaks in Central Florida. Del Webb Minneola will offer an abundance of resort-style amenities with social events and activities planned by a full-time Lifestyle Director - centered in the stunning clubhouse which offers views of Sugarloaf Mountain. Planned community amenities include a zero-entry resort-style pool, in-ground heated spa, sports courts, on-site bar & grille with indoor and outdoor seating, a fitness center and walking/biking trails. Monthly HOA includes 1 GB high-speed internet, 75 streaming channels and your home's yard maintenance. Visit today to learn more and see for yourself why Del Webb Minneola is the absolute best place to call home! Experience the perfect blend of luxury and convenience with this brand-new, ready-to-move-in Mystique Grand home by Pulte. This two-story home offers a thoughtfully designed layout featuring 4 bedrooms, an enclosed flex room, 4 bathrooms, and a 2-car garage. The owner's suite is conveniently located on the first floor, offering a private retreat with a spa-inspired en suite bathroom. The heart of the home is the open-concept kitchen, café, and gathering room, where natural light floods the space, creating a welcoming and airy atmosphere. Tall ceilings, expansive windows, and a pocket sliding glass door leading to the screened-in extended covered lanai and outdoor kitchen seamlessly blend the indoor and outdoor living areas, ideal for effortless entertaining. The gourmet kitchen is a true highlight, featuring built-in Whirlpool appliances – including a natural gas cooktop, 42” soft-close cabinetry with clear glass uppers, quartz countertops, and a decorative tile backsplash. A spacious walk-in pantry, upgraded faucet, and stainless-steel single-bowl sink completes this culinary space, which is both stylish and functional. The owner's suite is designed for relaxation, with an en suite bathroom that includes a frameless glass enclosed shower, garden tub, dual vanity with quartz countertops, a linen closet, and an enclosed toilet for added privacy. On the first floor, you’ll also find 2 spare bedrooms and 2 bathrooms (one of which is an en suite) and an enclosed flex room that can easily serve as an office, hobby room, or guest retreat. Upstairs, the expansive loft provides additional space for leisure, and the third bedroom features its own walk-in closet and private bathroom. Throughout the home, designer-curated finishes enhance the sense of luxury, including comfort height toilets, brushed nickel hardware and plumbing fixtures, garage floor epoxy finish, crown molding in the main living areas, and under cabinet lighting in the kitchen. The entire home is outfitted with beautiful tile, with the exception of the loft, stairs, and upstairs bedroom, which are complemented by plush, stain-resistant Shaw brand carpet. This home is also equipped with the latest in-home technology, including a smart thermostat, video doorbell, LED downlights, digital IP camera pre-wire, electric car plug-in, retractable hose central vacuum package, surround sound speakers, and garage lighting package. Don’t miss the opportunity to own this beautifully designed home with unparalleled functionality and elegance. Schedule your tour today!

Essential Information

  • MLS® #:
    O6362906
  • Price:
    $849,510
  • Bedrooms:
    4
  • Bathrooms:
    4.00
  • Full Baths:
    4
  • Square Footage:
    3,108
  • Acres:
    0.14
  • Year Built:
    2025
  • Type:
    Residential
  • Sub-Type:
    Single Family Residence
  • Style:
    Florida, Mediterranean
  • Status:
    Active

Community Information

  • Address:
    1393 Zesty Citrus Lane
  • Area:
    Minneola
  • Subdivision:
    DEL WEBB MINNEOLA
  • City:
    MINNEOLA
  • County:
    Lake
  • State:
    FL
  • Zip Code:
    34715

Amenities

  • Amenities:
    Clubhouse, Fitness Center, Gated, Other, Pickleball Court(s), Pool, Recreation Facilities, Spa/Hot Tub, Tennis Court(s), Trail(s)
  • Parking:
    Driveway, Garage Door Opener
  • # of Garages:
    2
  • View:
    Trees/Woods

Interior

  • Interior Features:
    Eat-in Kitchen, Kitchen/Family Room Combo, Open Floorplan, Pest Guard System, Split Bedroom, Stone Counters, Thermostat, Walk-In Closet(s)
  • Appliances:
    Built-In Oven, Cooktop, Dishwasher, Disposal, Gas Water Heater, Microwave, Refrigerator, Tankless Water Heater
  • Heating:
    Central, Electric, Heat Pump
  • Cooling:
    Central Air

Exterior

  • Exterior Features:
    Lighting, Outdoor Kitchen, Rain Gutters, Sidewalk, Sliding Doors
  • Lot Description:
    Cleared, Landscaped, Sidewalk, Paved
  • Roof:
    Shingle
  • Foundation:
    Slab

Additional Information

  • Days on Market:
    76
  • Zoning:
    P-D

Listing Details

  • Listing Office:
    Pulte Realty Of North Florida Llc

Listing information courtesy of Pulte Realty Of North Florida Llc.

All listing information is deemed reliable but not guaranteed and should be independently verified through personal inspection by appropriate professionals. Listings displayed on this website may be subject to prior sale or removal from sale; availability of any listing should always be independently verified.

Listing information is provided for consumer personal, non-commercial use, solely to identify potential properties for potential purchase; all other use is strictly prohibited and may violate relevant federal and state law.

Listing data comes from My Florida Regional MLS.

Listing information last updated on February 10th, 2026 at 11:48am EST.