My Search Tools:

$279,999 - 4130 Capland Avenue, CLERMONT

2
Bedrooms
2
Baths
1,427
SQ. Feet
0.12
Acres

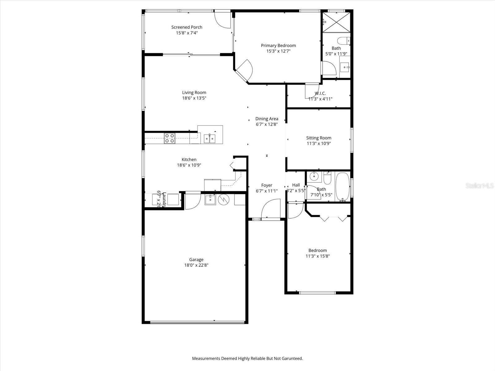
Under contract-accepting backup offers. Price Reduction! Welcome to 4130 Capland Avenue, a charming home nestled within the highly sought-after 55+ gated community of Kings Ridge in Clermont! This beautifully maintained 2-bedroom, 2-bath residence with a versatile den offers both comfort and convenience in an active, resort-style setting. Step inside to find fresh interior paint that create a bright, inviting atmosphere throughout the main living areas. The open floor plan allows for seamless flow between the living room, dining area, and kitchen—perfect for entertaining friends or enjoying a quiet evening at home. The updated primary bathroom features a new vanity, stylish shiplap accents, and modern finishes that add a touch of elegance. Relax and take in the peaceful golf course views from your private backyard patio, the ideal spot for morning coffee or evening sunsets. Recent updates include a new electric water heater, giving you added peace of mind. Living in Kings Ridge means you’ll have access to resort-style amenities including two golf courses, clubhouses, heated pools, fitness centers, tennis and pickleball courts, and an active social calendar with events and activities year-round. Best of all, lawn care, cable, and security are included—so you can spend more time enjoying the good life and less time on maintenance. Come discover why Kings Ridge is one of Clermont’s most desirable 55+ communities and make this move-in-ready home your next chapter in Florida living!

Essential Information

  • MLS® #:
    O6358749
  • Price:
    $279,999
  • Bedrooms:
    2
  • Bathrooms:
    2.00
  • Full Baths:
    2
  • Square Footage:
    1,427
  • Acres:
    0.12
  • Year Built:
    2002
  • Type:
    Residential
  • Sub-Type:
    Single Family Residence
  • Status:
    Pending

Community Information

  • Address:
    4130 Capland Avenue
  • Area:
    Clermont
  • Subdivision:
    CLERMONT SUSSEX AT KINGS RIDGE LT 01 ORB 02
  • City:
    CLERMONT
  • County:
    Lake
  • State:
    FL
  • Zip Code:
    34711

Amenities

  • Amenities:
    Basketball Court, Clubhouse, Fitness Center, Gated, Golf Course, Pickleball Court(s), Pool, Sauna, Shuffleboard Court, Spa/Hot Tub, Tennis Court(s)
  • Parking:
    Driveway
  • # of Garages:
    2
  • View:
    Golf Course

Interior

  • Interior Features:
    Ceiling Fans(s), Living Room/Dining Room Combo, Primary Bedroom Main Floor, Split Bedroom, Thermostat
  • Appliances:
    Dishwasher, Microwave, Range, Refrigerator
  • Heating:
    Central, Electric
  • Cooling:
    Central Air

Exterior

  • Exterior Features:
    Sliding Doors
  • Roof:
    Shingle
  • Foundation:
    Other

Additional Information

  • Days on Market:
    41
  • Zoning:
    PUD

Listing Details

  • Listing Office:
    Real Broker Llc

Listing information courtesy of Real Broker Llc.

All listing information is deemed reliable but not guaranteed and should be independently verified through personal inspection by appropriate professionals. Listings displayed on this website may be subject to prior sale or removal from sale; availability of any listing should always be independently verified.

Listing information is provided for consumer personal, non-commercial use, solely to identify potential properties for potential purchase; all other use is strictly prohibited and may violate relevant federal and state law.

Listing data comes from My Florida Regional MLS.

Listing information last updated on December 19th, 2025 at 5:18am EST.