My Search Tools:

$3,500,000 - 189 South Orange Avenue 1900-1970, ORLANDO

-
Bedrooms
-
Baths
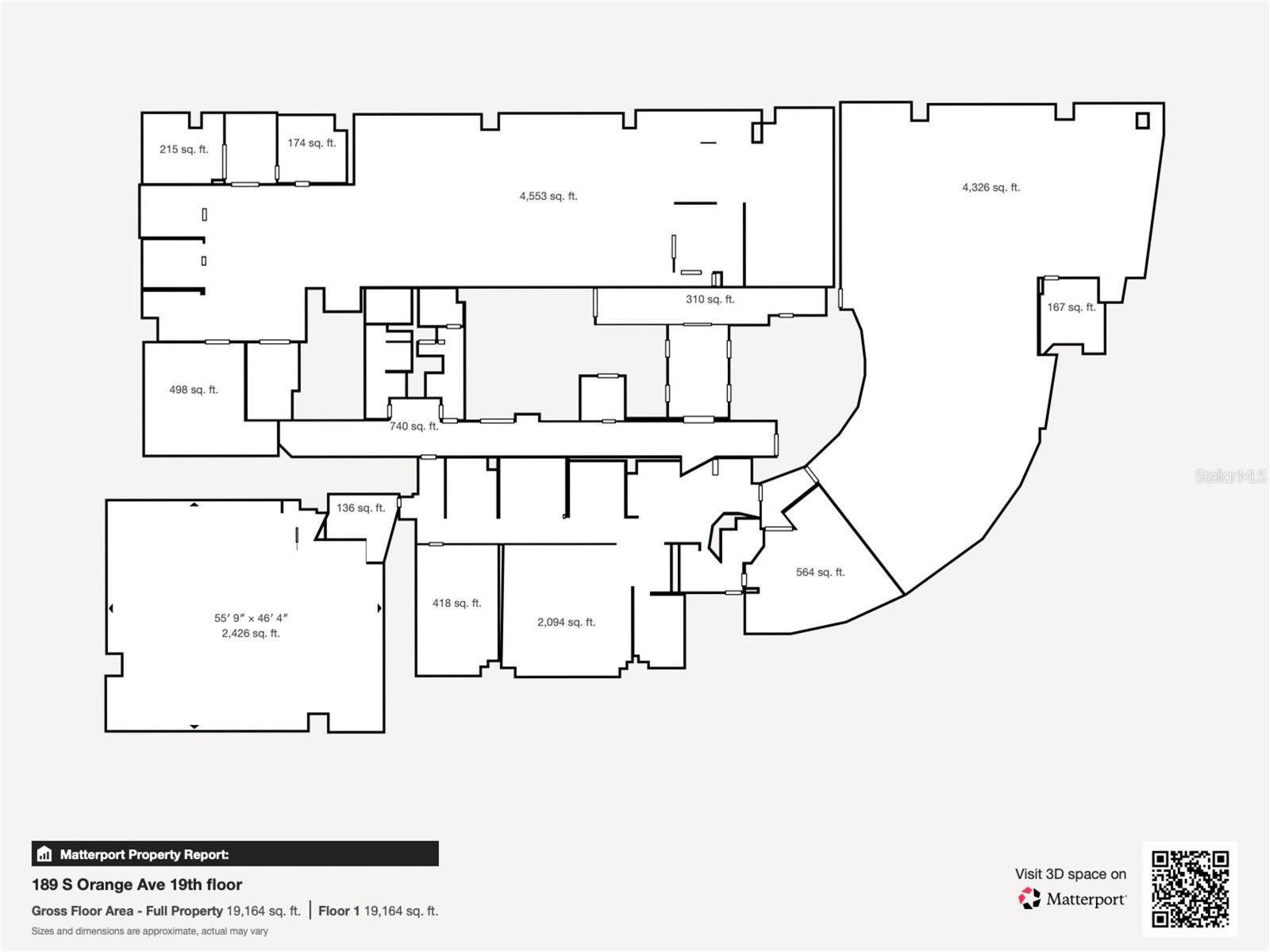
19,032
SQ. Feet
0.44
Acres

Unlock a rare opportunity to occupy or invest in a full floor within one of Downtown Orlando’s most recognizable Class A office towers. The 19th floor at The Plaza South Tower offers ±19,032 rentable square feet (±16,548 usable) across six modern suites (1900–1970 S), with options for full-floor occupancy or divisible configurations starting around ±2,500 RSF. Highlights: *Premium Class A finishes with floor-to-ceiling glass *Multiple private balconies with skyline views *Efficient central-core layout for flexible demising *Modern elevator lobby and secure access *Covered parking available onsite *Walkable to Amway Center, Kia Center, and downtown dining Perfect for corporate headquarters, professional firms, or creative offices seeking a premier downtown address with high visibility and exceptional amenities.

Essential Information

  • MLS® #:
    O6356122
  • Price:
    $3,500,000
  • Bathrooms:
    0.00
  • Square Footage:
    19,032
  • Acres:
    0.44
  • Year Built:
    2007
  • Type:
    Commercial Sale
  • Sub-Type:
    Office
  • Status:
    Active

Community Information

  • Address:
    189 South Orange Avenue 1900-1970
  • Area:
    Orlando
  • Subdivision:
    PLAZA SOUTH TOWER COML CONDO
  • City:
    ORLANDO
  • County:
    Orange
  • State:
    FL
  • Zip Code:
    32801

Interior

  • Heating:
    Electric
  • Cooling:
    Central Air

Exterior

  • Roof:
    Membrane
  • Foundation:
    Stilt/On Piling

Additional Information

  • Days on Market:
    108
  • Zoning:
    AC-3A/T/HP

Listing Details

  • Listing Office:
    Alpha Equity Realty & Management Inc

Listing information courtesy of Alpha Equity Realty & Management Inc.

All listing information is deemed reliable but not guaranteed and should be independently verified through personal inspection by appropriate professionals. Listings displayed on this website may be subject to prior sale or removal from sale; availability of any listing should always be independently verified.

Listing information is provided for consumer personal, non-commercial use, solely to identify potential properties for potential purchase; all other use is strictly prohibited and may violate relevant federal and state law.

Listing data comes from My Florida Regional MLS.

Listing information last updated on February 16th, 2026 at 4:18am EST.