My Search Tools:

$1,550,000 - 20130 Sugarloaf Mountain Road, CLERMONT

4
Bedrooms
4
Baths
3,501
SQ. Feet
4.79
Acres

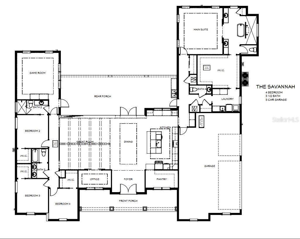
Pre-Construction. To be built. The talented team at Trilogy Homes brings craftsmanship and quality to this custom-built home. Nestled on 4.79 acres on Sugarloaf Mountain, this beautifully designed 5,251 total square foot and 3,501 square-foot living residence offers you the opportunity to select your finishes and truly make it your own. Featuring 4 bedrooms, 3.5 baths, private front and rear porches, a paver driveway leads to an oversized 3 car garage. This home combines elegance and functionality. Entering through the foyer, you'll find a gallery that opens to an incredible open-concept floor plan. The stunning volume ceilings, enhanced with wood-style beams, grace the great room. The kitchen boasts gorgeous quartz countertops, top-of-the-line appliances, a huge walk-in hidden pantry, and an oversized island, perfect for meal preparation and entertainment. The expansive master suite, with coffered ceilings, offers views of the property providing the ultimate in rest and relaxation. The master bathroom features a walk-through shower with multiple showerheads, a soaking tub, and his and her vanities. A walk-in closet has convenient access to the adjoining laundry room. For privacy, a French door opens directly to the lanai. Additional highlights include main-floor bedrooms with high ceilings and ample walk-in closet space, a private office, and a game room with views of the lanai. Call now to schedule an appointment and discover how you can customize this exquisite home to your liking. Minutes from the Minneola Turnpike exit and the new Hospital.

Essential Information

  • MLS® #:
    O6339575
  • Price:
    $1,550,000
  • Bedrooms:
    4
  • Bathrooms:
    4.00
  • Full Baths:
    3
  • Half Baths:
    1
  • Square Footage:
    3,501
  • Acres:
    4.79
  • Year Built:
    2026
  • Type:
    Residential
  • Sub-Type:
    Single Family Residence
  • Status:
    Active

Community Information

  • Address:
    20130 Sugarloaf Mountain Road
  • Area:
    Minneola
  • Subdivision:
    SUGARLOAF VIEW ESTATES
  • City:
    CLERMONT
  • County:
    Lake
  • State:
    FL
  • Zip Code:
    34715

Amenities

  • # of Garages:
    3

Interior

  • Interior Features:
    Coffered Ceiling(s)
  • Appliances:
    Electric Water Heater
  • Heating:
    Electric
  • Cooling:
    Central Air

Exterior

  • Exterior Features:
    Other
  • Lot Description:
    Level, Oversized Lot, Private, Paved
  • Roof:
    Shingle
  • Foundation:
    Slab

Additional Information

  • Days on Market:
    126
  • Zoning:
    A

Listing Details

  • Listing Office:
    La Rosa Realty Llc

Listing information courtesy of La Rosa Realty Llc.

All listing information is deemed reliable but not guaranteed and should be independently verified through personal inspection by appropriate professionals. Listings displayed on this website may be subject to prior sale or removal from sale; availability of any listing should always be independently verified.

Listing information is provided for consumer personal, non-commercial use, solely to identify potential properties for potential purchase; all other use is strictly prohibited and may violate relevant federal and state law.

Listing data comes from My Florida Regional MLS.

Listing information last updated on January 13th, 2026 at 1:19pm EST.