My Search Tools:

$2,560,000 - 2535 Ocoee Apopka Road 5, APOPKA

-
Bedrooms
-
Baths
N/A
SQ. Feet
0.23
Acres

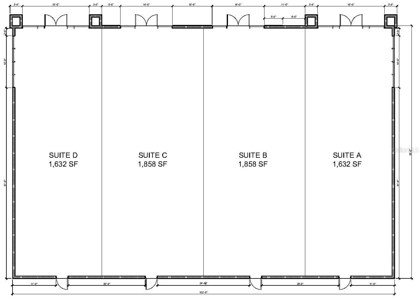
Under Construction. Building #05 is available for purchase at Lake Carter Exchange, a distinguished mixed-use development in Apopka’s East Shore at the intersection of Ocoee-Apopka Road and W Keene Road. In addition, this building is on the corner and has visibility from both roads. This dark gray shell retail building features a customizable interior, shared patio space and dedicated end-unit patio space. The shell delivery provides buyers with maximum flexibility to design the interior layout, with four front entrances supporting up to four unique suites. The development is strategically located less than one mile from Advent Health’s seven-story, 120-bed hospital and opposite a new Publix Supermarket development. Situated in the vibrant East Shore trade area, which includes 5,000 planned residences and an average household income above $100k, this Class A property is perfectly positioned for businesses targeting growth in Central Florida’s second-fastest-growing city. Contact us for pricing details/incentives and to schedule a tour of this exceptional commercial opportunity.

Essential Information

  • MLS® #:
    O6300768
  • Price:
    $2,560,000
  • Bathrooms:
    0.00
  • Acres:
    0.23
  • Year Built:
    2025
  • Type:
    Commercial Sale
  • Sub-Type:
    Retail
  • Status:
    Active

Community Information

  • Address:
    2535 Ocoee Apopka Road 5
  • Area:
    Apopka
  • City:
    APOPKA
  • County:
    Orange
  • State:
    FL
  • Zip Code:
    32703

Interior

  • Cooling:
    None
  • # of Stories:
    1

Exterior

  • Roof:
    Metal
  • Foundation:
    Stem Wall

Additional Information

  • Days on Market:
    274

Listing Details

  • Listing Office:
    The Marks Group Realty, Llc

Listing information courtesy of The Marks Group Realty, Llc.

All listing information is deemed reliable but not guaranteed and should be independently verified through personal inspection by appropriate professionals. Listings displayed on this website may be subject to prior sale or removal from sale; availability of any listing should always be independently verified.

Listing information is provided for consumer personal, non-commercial use, solely to identify potential properties for potential purchase; all other use is strictly prohibited and may violate relevant federal and state law.

Listing data comes from My Florida Regional MLS.

Listing information last updated on February 21st, 2026 at 9:33pm EST.