My Search Tools:

$1,450,000 - 646 Jasmine Road, ALTAMONTE SPRINGS

6
Bedrooms
7
Baths
3,670
SQ. Feet
0.36
Acres

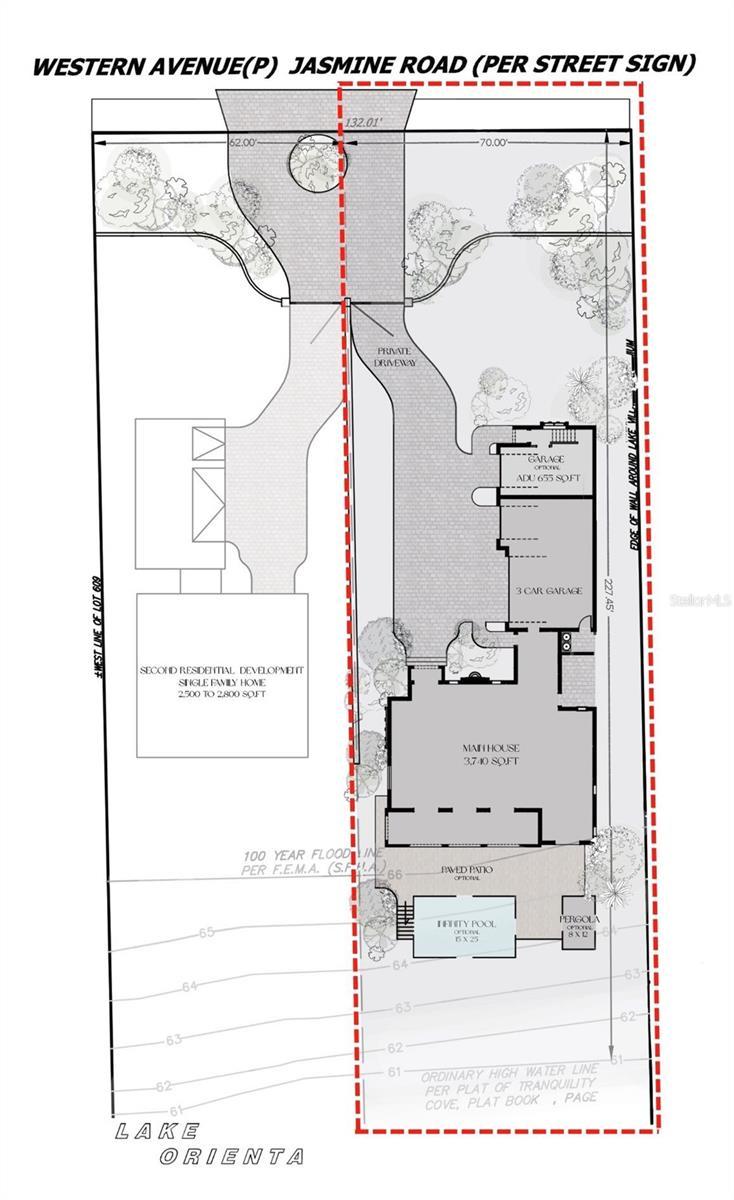
Under contract-accepting backup offers. Pre-Construction. To be built. Pre-Construction. To be built. This is one of the last lake front lots available on the shores of Lake Orienta. Build your Dream home with direct water views and full direct access to Lake Orienta. Amazing Views. Approximately 70' wide and 227' Deep. Construction concept plans available. No HOA. Zoned for Duplex, ideal for mother in law suite with separate entrance or garge apartment. Open floor plan with abundant natural light, and 4 car garage. Chef's kitchen with 60" 6 burner range, quartz counter tops, plus alfresco dining area. Hardwood flooring throughout with tile in wet areas. May be possible to build your own private dock & boat house at an additional cost. Also possible to build a private pool at additional cost. Conveniently located to SunRail, restaurants, shopping, Hospital, grocery stores, Altamonte Springs Mall, Cranes Roost Park, and I4. Call today to schedule your meeting with the Builder!

Essential Information

  • MLS® #:
    O6274854
  • Price:
    $1,450,000
  • Bedrooms:
    6
  • Bathrooms:
    7.00
  • Full Baths:
    6
  • Half Baths:
    1
  • Square Footage:
    3,670
  • Acres:
    0.36
  • Year Built:
    2025
  • Type:
    Residential
  • Sub-Type:
    Single Family Residence
  • Status:
    Pending

Community Information

  • Address:
    646 Jasmine Road
  • Area:
    Altamonte Springs East
  • Subdivision:
    ALTAMONTE LAND HOTEL & NAVIGATION CO
  • City:
    ALTAMONTE SPRINGS
  • County:
    Seminole
  • State:
    FL
  • Zip Code:
    32701

Amenities

  • # of Garages:
    3
  • View:
    Pool, Water
  • Is Waterfront:
    Yes
  • Waterfront:
    Lake Privileges
  • Has Pool:
    Yes

Interior

  • Interior Features:
    Cathedral Ceiling(s), High Ceilings, Open Floorplan, Solid Wood Cabinets, Stone Counters
  • Appliances:
    Cooktop, Dishwasher
  • Heating:
    Central
  • Cooling:
    Central Air
  • Fireplace:
    Yes
  • Fireplaces:
    Wood Burning

Exterior

  • Exterior Features:
    Sidewalk
  • Lot Description:
    Sloped, Paved
  • Roof:
    Tile
  • Foundation:
    Slab

Additional Information

  • Days on Market:
    406
  • Zoning:
    RES

Listing Details

  • Listing Office:
    Sloane Realty, Llc

Listing information courtesy of Sloane Realty, Llc.

All listing information is deemed reliable but not guaranteed and should be independently verified through personal inspection by appropriate professionals. Listings displayed on this website may be subject to prior sale or removal from sale; availability of any listing should always be independently verified.

Listing information is provided for consumer personal, non-commercial use, solely to identify potential properties for potential purchase; all other use is strictly prohibited and may violate relevant federal and state law.

Listing data comes from My Florida Regional MLS.

Listing information last updated on March 10th, 2026 at 5:03pm EDT.