My Search Tools:

$1,595,000 - 255 Minorca Beach Way 206, NEW SMYRNA BEACH

4
Bedrooms
3
Baths
2,620
SQ. Feet
2.11
Acres

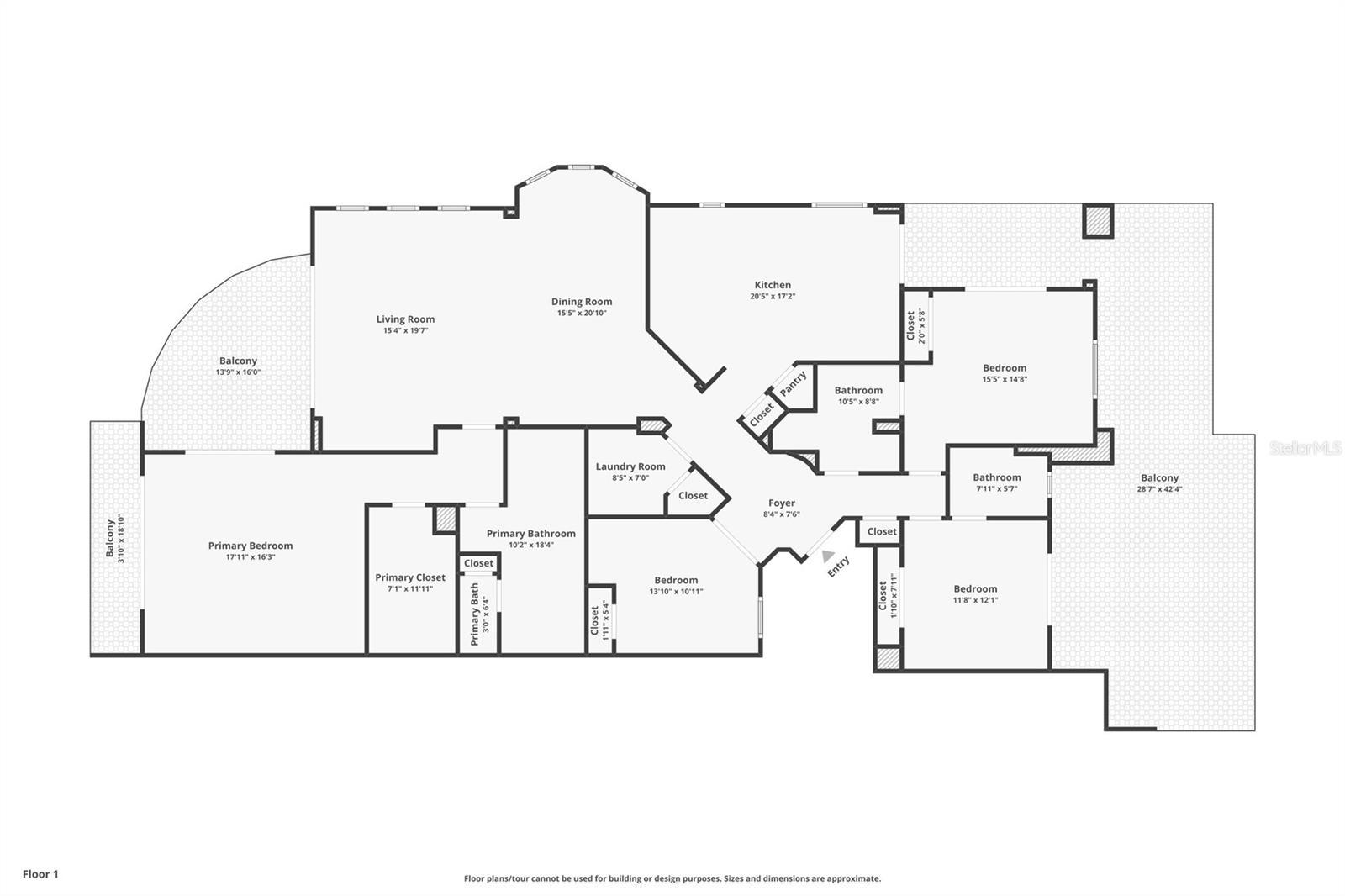
Experience the best of coastal luxury at Minorca, New Smyrna Beach’s premier beachfront community stretching from the river to the Atlantic Ocean at Ponce Inlet. This recently renovated 4BR/3BA “Coquina” end unit comes FURNISHED and lives like a private home, offering over 2,600 SF of interior living space plus 1,200 SF of covered balconies and open terraces showcasing stunning ocean and dune views from nearly every room. The welcoming grand foyer with a custom Ponce Inlet Lighthouse mural leads to a spacious split floor plan featuring a guest suite with private terrace, two additional guest bedrooms (one with terrace and shared bath access), and a spectacular oceanfront primary suite with dual balconies, floor-to-ceiling sliders, and a newly designed spa-style bath with dual vanities, massive shower, and a custom California Closet system. The renovated kitchen is a showpiece with new cabinetry, granite countertops, stainless steel appliances, large island, walk-in pantry, and built-in desk—opening to the dining and living areas with wraparound windows, ocean views, and a custom entertainment center. Enjoy al fresco dining on the kitchen terrace or unwind to the sound of the surf from any of the multiple balconies. This unit has a large storage unit across the hall and a deeded parking space in the garage below. Within the exclusive Dunes Association, residents share a private oceanfront pool, spa, outdoor kitchen, and beach walkover with the Andros building. Minorca’s resort-style amenities include 24-hour gated security, clubhouse with fitness center and sauna, billiards and catering kitchen, four lighted tennis courts with on-site pro, ocean and river pavilions, fishing pier, kayak launch, and optional boat slips. Pet-friendly and ideally located near the Dog Beach at Smyrna Dunes Park and just over a mile from Flagler Avenue’s shops, restaurants, and nightlife—this residence captures the ultimate ocean-to-river lifestyle where beach walks and boating adventures await right outside your door. UNIT IS BEING SOLD FURNISHED. ALL INFORMATION IS ASSUMED ACCURATE BUT NOT GUARANTEED. ALL MEASUREMENTS ARE ESTIMATED. BUYERS AND THEIR AGENTS TO VERIFY ALL INFORMATION DEEMED IMPORTANT TO THEM.

Essential Information

  • MLS® #:
    NS1086535
  • Price:
    $1,595,000
  • Bedrooms:
    4
  • Bathrooms:
    3.00
  • Full Baths:
    3
  • Square Footage:
    2,620
  • Acres:
    2.11
  • Year Built:
    2002
  • Type:
    Residential
  • Sub-Type:
    Condo - Hotel
  • Style:
    Mediterranean
  • Status:
    Active

Community Information

  • Address:
    255 Minorca Beach Way 206
  • Area:
    New Smyrna Beach
  • Subdivision:
    MINORCA DUNES
  • City:
    NEW SMYRNA BEACH
  • County:
    Volusia
  • State:
    FL
  • Zip Code:
    32169

Amenities

  • Amenities:
    Cable TV, Clubhouse, Elevator(s), Fitness Center, Lobby Key Required, Maintenance, Pool, Recreation Facilities, Sauna, Security, Spa/Hot Tub, Storage, Tennis Court(s)
  • Parking:
    Covered, Deeded, Garage Door Opener, Ground Level, Guest, Basement
  • # of Garages:
    1
  • View:
    Water
  • Is Waterfront:
    Yes
  • Waterfront:
    Beach Front, Gulf/Ocean
  • Has Pool:
    Yes

Interior

  • Interior Features:
    Built-in Features, Ceiling Fans(s), Crown Molding, Eat-in Kitchen, Elevator, High Ceilings, Living Room/Dining Room Combo, Open Floorplan, Primary Bedroom Main Floor, Sauna, Solid Wood Cabinets, Split Bedroom, Stone Counters, Thermostat, Walk-In Closet(s), Window Treatments
  • Appliances:
    Dishwasher, Disposal, Dryer, Electric Water Heater, Exhaust Fan, Microwave, Range, Refrigerator, Washer
  • Heating:
    Electric
  • Cooling:
    Central Air
  • # of Stories:
    9

Exterior

  • Exterior Features:
    Balcony, Outdoor Kitchen, Outdoor Shower, Sauna, Sidewalk, Storage, Tennis Court(s)
  • Lot Description:
    Conservation Area, City Limits, Landscaped, Near Marina, Sidewalk, Paved
  • Roof:
    Built-Up, Tile
  • Foundation:
    Concrete Perimeter, Pillar/Post/Pier, Slab, Stem Wall

Additional Information

  • Days on Market:
    55
  • Zoning:
    PUD-RR

Listing Details

  • Listing Office:
    Collado Real Estate

Listing information courtesy of Collado Real Estate.

All listing information is deemed reliable but not guaranteed and should be independently verified through personal inspection by appropriate professionals. Listings displayed on this website may be subject to prior sale or removal from sale; availability of any listing should always be independently verified.

Listing information is provided for consumer personal, non-commercial use, solely to identify potential properties for potential purchase; all other use is strictly prohibited and may violate relevant federal and state law.

Listing data comes from My Florida Regional MLS.

Listing information last updated on January 13th, 2026 at 12:17am EST.