My Search Tools:

$1,900,000 - 12456 North Access Road, PORT CHARLOTTE

-
Bedrooms
-
Baths
5,916
SQ. Feet
0.93
Acres

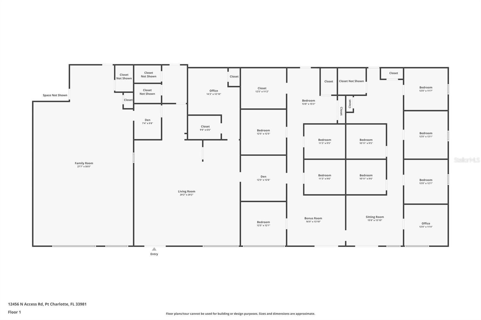
Exceptional investment opportunity. This well-maintained commercial property at 12456 North Access Road, Port Charlotte offers flexibility, strong income potential, and long-term growth upside. Built in 2006, the 5,916 sq. ft. block building sits on 0.93 acres and features four separately metered units,PUBLIC WATER AND PUBLIC SEWER, currently occupied by the established business Furniture & Décor Encore. The property spans multiple parcels, including the main structure situated on three lots, a large parking area, and two additional lots improved with two 20x20 Commercial Storage Garages built in April 2023 on concrete slabs. Zoned Commercial General, the site allows for a wide variety of commercial uses and future development possibilities. Property features include five bathrooms, slab foundation, metal roof, and ample on-site parking. Ideally positioned directly in front of a newly approved 297-unit multifamily development, this location offers excellent exposure and strong future demand. Conveniently located near US-41, I-75, shopping, dining, medical facilities, schools, and Gulf Coast beaches, this property combines a quiet setting with easy access to major amenities. Surrounded by new construction and continued area growth, this is an ideal opportunity for investors, builders, or owner-users seeking a strategic position in a rapidly developing area.

Essential Information

  • MLS® #:
    N6141945
  • Price:
    $1,900,000
  • Bathrooms:
    0.00
  • Square Footage:
    5,916
  • Acres:
    0.93
  • Year Built:
    2006
  • Type:
    Commercial Sale
  • Sub-Type:
    Retail
  • Status:
    Active

Community Information

  • Address:
    12456 North Access Road
  • Area:
    Port Charlotte
  • Subdivision:
    PORT CHARLOTTE SEC 095
  • City:
    PORT CHARLOTTE
  • County:
    Charlotte
  • State:
    FL
  • Zip Code:
    33981

Interior

  • Cooling:
    Central Air
  • # of Stories:
    1

Exterior

  • Foundation:
    Slab

Additional Information

  • Days on Market:
    61
  • Zoning:
    CG

Listing Details

  • Listing Office:
    Re/max Palm Realty Of Venice

Listing information courtesy of Re/max Palm Realty Of Venice.

All listing information is deemed reliable but not guaranteed and should be independently verified through personal inspection by appropriate professionals. Listings displayed on this website may be subject to prior sale or removal from sale; availability of any listing should always be independently verified.

Listing information is provided for consumer personal, non-commercial use, solely to identify potential properties for potential purchase; all other use is strictly prohibited and may violate relevant federal and state law.

Listing data comes from My Florida Regional MLS.

Listing information last updated on February 28th, 2026 at 5:18pm EST.