My Search Tools:

$699,900 - 600 Shetland, NOKOMIS

3
Bedrooms
2
Baths
2,214
SQ. Feet
1
Acres

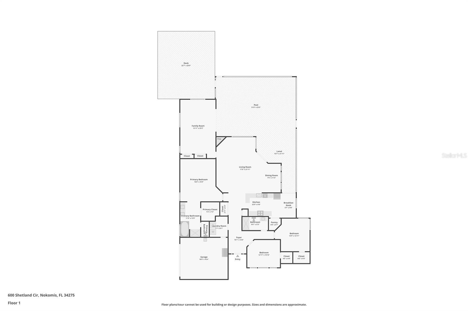
Under contract-accepting backup offers. The listing agent is the owner. Price enhancement. Welcome home to this stunning, fully renovated three bedroom, two bath executive home, perfectly situated on one beautiful professionally landscaped acre in coveted Mission Valley in Nokomis, FL.! No HOA fees, non deed restricted community, priced to sell! This home boasts some of the finest finishes, including slate flooring in main living areas, travertine tile flooring in the master bath, solid walnut kitchen cabinetry, tongue and groove cedar vaulted ceilings throughout the main living areas as well as the master bedroom, kitchen and family room. A standing seam metalroof, new HURRICANE impact and thermal windows (26) and exterior impact thermal doors including a double/triple slider: house qualifies for long-term insurance savings as all house openings were replaced. Two seat infrared spa in garage stays. New Bali blinds throughout-more energy savings. Wired Bose surround speakers stay. From the moment you enter this gorgeous home, you can simply feel the love and care put into every decision made to renovate this lovely home! This Nokomis beauty offers an open floor plan with great sight lines throughout the main living areas. There is plenty of storage everywhere, with all three bedrooms featuring walk-in closets, ironing/folding countertop in the laundry room, twin closets in the family room/den, a walk-in pantry, in the main hallway and shelving in the outside 12 X 20 shed. The portable generator with transfer switch and long 220 v cord stays to keep partial power on during electrical disruptions. You are sure to love all of the bright natural light, accentuating all of the great features this home has to offer! Just imagine the warmth you’ll feel as you nestle up in front of the natural stone fireplace! This home is an entertainer’s delight! Bring your family and friends to a backyard BBQ because there is plenty of room for everyone! Cook out on the ~23 X 27 sun deck, splash around in the pool, or set up your favorite yard games in the enormous back yard! THIS HOME HAS IT ALL! The kitchen also features granite countertops, a breakfast bar, a large walk-in pantry, a breakfast nook with access to one of the two back decks. The large primary suite is your own private oasis, with a double arched opening into the huge master bathroom, featuring a jetted oversized tub, separate shower, large vanity with dual sinks, water closet, larger walk-in clothes closet Though tucked away and quiet on a cul-de-sac street, you are just minutes to top rated schools, including Laurel Nokomis School, Venice H.S, I-75, Highway 41, Nokomis Beach, the new Sarasota Memorial Hospital South and adjacent complexes, plus great shopping and dining experiences. Other current upgrades include: Replumbed supply lines with Pex-A 10/2025, new interior/ exterior paint 10/2025, new carpeting 11/25, new tankless water heater 9/25, new bathroom faucets and fixtures 2025, new shower enclosures 10/25, new 5 ton AC unit 12/24, new air handler motor 12/25, new Reverse osmosis system 12/25, central vacuum motor replaced 2022. New pool filter 1/26, new whole house softener and filter 3/25. This is the home you DO NOT WANT TO MISS! No Flood Insurance required. Just bring your friends and family and all of your outdoor toys, and make this exquisite home your own!

Essential Information

  • MLS® #:
    N6141878
  • Price:
    $699,900
  • Bedrooms:
    3
  • Bathrooms:
    2.00
  • Full Baths:
    2
  • Square Footage:
    2,214
  • Acres:
    1.00
  • Year Built:
    1990
  • Type:
    Residential
  • Sub-Type:
    Single Family Residence
  • Status:
    Pending

Community Information

  • Address:
    600 Shetland
  • Area:
    Nokomis/North Venice
  • Subdivision:
    MISSION VALLEY ESTATES
  • City:
    NOKOMIS
  • County:
    Sarasota
  • State:
    FL
  • Zip Code:
    34275

Amenities

  • # of Garages:
    2
  • Has Pool:
    Yes

Interior

  • Interior Features:
    Attic Ventilator, Cathedral Ceiling(s), Ceiling Fans(s), Central Vaccum, Eat-in Kitchen, High Ceilings, Living Room/Dining Room Combo, Open Floorplan, Primary Bedroom Main Floor, Solid Surface Counters, Solid Wood Cabinets, Stone Counters, Thermostat, Vaulted Ceiling(s), Walk-In Closet(s)
  • Appliances:
    Cooktop, Dishwasher, Dryer, Electric Water Heater, Exhaust Fan, Freezer, Ice Maker, Kitchen Reverse Osmosis System, Microwave, Range, Range Hood, Refrigerator, Tankless Water Heater, Washer, Water Filtration System, Water Softener
  • Heating:
    Central, Electric
  • Cooling:
    Central Air, Attic Fan
  • Fireplace:
    Yes
  • Fireplaces:
    Masonry, Stone, Wood Burning

Exterior

  • Exterior Features:
    French Doors, Lighting, Private Mailbox, Private Yard, Rain Gutters, Sliding Doors
  • Lot Description:
    In County, Landscaped, Near Public Transit, Street Dead-End, Paved, Private
  • Roof:
    Metal
  • Foundation:
    Slab

School Information

  • Elementary:
    Laurel Nokomis Elementary
  • Middle:
    Laurel Nokomis Middle
  • High:
    Venice Senior High

Additional Information

  • Days on Market:
    54

Listing Details

  • Listing Office:
    Lpt Realty, Llc

Listing information courtesy of Lpt Realty, Llc.

All listing information is deemed reliable but not guaranteed and should be independently verified through personal inspection by appropriate professionals. Listings displayed on this website may be subject to prior sale or removal from sale; availability of any listing should always be independently verified.

Listing information is provided for consumer personal, non-commercial use, solely to identify potential properties for potential purchase; all other use is strictly prohibited and may violate relevant federal and state law.

Listing data comes from My Florida Regional MLS.

Listing information last updated on February 25th, 2026 at 5:03pm EST.