My Search Tools:

$3,200,000 - 479 South Creek Drive, OSPREY

5
Bedrooms
6
Baths
4,261
SQ. Feet
0.31
Acres

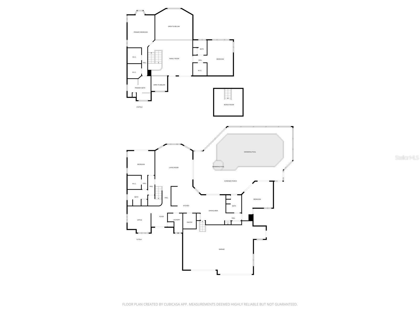
Positioned on South Creek just off the Intracoastal Waterway with beautiful views and over 130 FEET of WATERFRONT, this 5-bedroom, 5.5-bath coastal estate offers over 4,261 square feet of refined waterfront living anchored by a truly spectacular backyard oasis. The heated saltwater PebbleTec pool and separate spa are wrapped in elegant travertine pavers with a covered dining area for shaded entertaining. An expansive waterfront deck extends beyond the screened lanai for lounging and alfresco dinners overlooking the water. Steps lead to a private dock with a 7,000-pound boat lift and a dedicated kayak launch, creating seamless access to the Intracoastal lifestyle. Inside, five generously sized bedrooms each feature ensuite baths and large walk-in closets, with two bedrooms conveniently located on the first floor along with a dedicated office, den, or bonus room. The renovated kitchen is designed for both beauty and function with a Thermador cooktop, Jenn- Airconvection and built-in ovens, a large island, and a passthrough window for effortless outdoor entertaining. The dining area overlooks the pool and includes hurricane-impact sliding doors, a coffee or dry bar with mini-fridge, and additional custom cabinetry for storage. The living room is highlighted by soaring ceilings, transom windows, additional hurricane impact sliding glass doors, and charming shiplap ceiling details, creating a light-filled coastal ambiance. Upstairs, three additional bedrooms and a loft gathering area overlook the living space below, with the true primary suite on the second level along with two waterfront-view bedrooms, all featuring ensuite baths and generous closets, plus a second-floor laundry hookup for added convenience. A spacious three-car garage and elegant U-shaped driveway complete the home. This home has been replumbed and features new lift motors (2025). Located within a gated community offering a basketball court, day dock, playground, and low HOA fees, this property is just 5 miles to Nokomis Beach on Casey Key, 15 miles to downtown Sarasota, 6 miles to the Island of Venice, and 6 miles to Sarasota Memorial Hospital, with Oscar Scherer State Park right nearby for nature lovers and outdoor enthusiasts. Copy and paste the link for a luxury video https://player.vimeo.com/video/1138557428?badge=0&autopause=0&player_id=0&app_id=58479

Essential Information

  • MLS® #:
    N6141722
  • Price:
    $3,200,000
  • Bedrooms:
    5
  • Bathrooms:
    6.00
  • Full Baths:
    5
  • Half Baths:
    1
  • Square Footage:
    4,261
  • Acres:
    0.31
  • Year Built:
    1995
  • Type:
    Residential
  • Sub-Type:
    Single Family Residence
  • Status:
    Active

Community Information

  • Address:
    479 South Creek Drive
  • Area:
    Osprey
  • Subdivision:
    SOUTH CREEK
  • City:
    OSPREY
  • County:
    Sarasota
  • State:
    FL
  • Zip Code:
    34229

Amenities

  • Amenities:
    Basketball Court, Gated, Other, Park
  • Parking:
    Driveway, Garage Door Opener, Ground Level, Other
  • # of Garages:
    3
  • View:
    Water
  • Is Waterfront:
    Yes
  • Waterfront:
    Canal - Saltwater
  • Has Pool:
    Yes

Interior

  • Interior Features:
    Cathedral Ceiling(s), Ceiling Fans(s), Central Vaccum, Crown Molding, Dry Bar, High Ceilings, Solid Wood Cabinets, Split Bedroom, Stone Counters, Thermostat, Walk-In Closet(s), Window Treatments
  • Appliances:
    Bar Fridge, Built-In Oven, Convection Oven, Cooktop, Dishwasher, Disposal, Dryer, Electric Water Heater, Microwave, Refrigerator
  • Heating:
    Central, Electric
  • Cooling:
    Central Air

Exterior

  • Exterior Features:
    Hurricane Shutters, Lighting, Other, Outdoor Shower, Private Mailbox, Rain Gutters, Sliding Doors
  • Lot Description:
    In County, Landscaped, Paved
  • Roof:
    Shingle
  • Foundation:
    Stem Wall

School Information

  • Elementary:
    Laurel Nokomis Elementary
  • Middle:
    Laurel Nokomis Middle
  • High:
    Venice Senior High

Additional Information

  • Days on Market:
    21
  • Zoning:
    RSF2

Listing Details

  • Listing Office:
    Keller Williams Island Life Real Estate

Listing information courtesy of Keller Williams Island Life Real Estate.

All listing information is deemed reliable but not guaranteed and should be independently verified through personal inspection by appropriate professionals. Listings displayed on this website may be subject to prior sale or removal from sale; availability of any listing should always be independently verified.

Listing information is provided for consumer personal, non-commercial use, solely to identify potential properties for potential purchase; all other use is strictly prohibited and may violate relevant federal and state law.

Listing data comes from My Florida Regional MLS.

Listing information last updated on December 22nd, 2025 at 9:34pm EST.