My Search Tools:

$849,900 - 2409 Jenna Ln, LAKELAND

4
Bedrooms
3
Baths
4,012
SQ. Feet
0.34
Acres

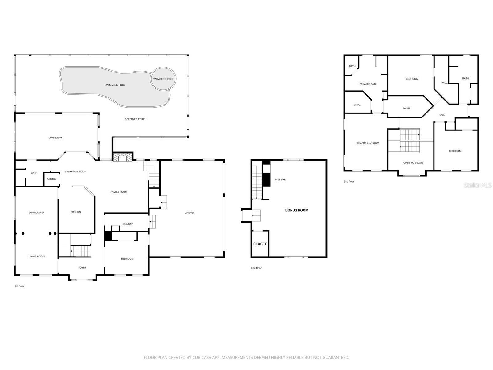
Stunning Custom Pool Home in Crews Lake Hills Estates - Timeless and classic, this stately 4 bedroom, 3 bath home, built by custom home builder Duane McQuillen, embodies a combination of beautiful craftmanship and modern luxury. Nestled in the heart of South Lakeland, this home will impress you at every turn. A grand entrance greets you, with soaring ceilings and an expansive layout designed for comfort and entertainment. The formal living room is brimming with warmth and seamlessly flows into the formal dining area, creating an enchanting ambiance that is perfect for hosting unforgettable gatherings. The well-appointed kitchen boasts stainless appliances, raised panel cabinetry, complemented by gleaming granite countertops, and a center island, adorned with an intricately detailed copper sink and large pantry. The kitchen transitions beautifully to the family room, featuring a cozy fireplace and a secondary stairway for easy access to the upper level bonus room. French doors open to a bright and airy sunroom, providing a serene space with panoramic views of the sparkling pool and meticulously landscaped backyard. Exquisite details include elegant crown molding, flawless blending of wood look & travertine tile flooring throughout and a graceful staircase to discover the upper level of this home. The primary bedroom features generous dual walk-in closets and ensuite bath, creating a sanctuary of relaxation, featuring a rejuvenating jetted tub, stylish dual vanities and beautifully designed shower, perfect for unwinding after a long day. Indulge in your favorite cinematic experience in the spacious bonus room, complete with a wet bar to enhance entertaining option and sets the stage for fun game nights in this versatile space. The well thought out design, offers 2 additional guest bedrooms, and bath, on the upper level, and 4th bedroom or office, and bath, on the main floor. Step outside to a spectacular heated pool and paver patio, built in 2016, where you can enjoy the soothing warmth of the heated spa, featuring a bubbler and captivating LED lighting. The Pentair pool equipment with remote control, ensures effortless maintenance and operation. Abundant storage options abound, including storage and linen closets, a three-car side-entry garage, and the spacious laundry room offering additional storage and utility sink, and a convenient laundry chute from the upper level. Special highlights include freshly painted exterior in 2025, a new roof in 2023, new garage doors, freshly painted garage interior and epoxy coating on garage floor, new carpet in bedrooms, updated laundry room, Bose speaker system, all baths updated in 2019, new wood-look tile flooring in 2019, new ceiling fans, new mini-split air conditioner in sunroom in 2023, new pool pump, updated landscaping around pool, and sprinkler system updated in 2022 with a Hunter X-Core XC-400 4-station controller and wireless rain sensor. This home has been lovingly cared for and thoughtfully enhanced inside and out, with lush landscaping and fenced backyard, all beautifully situated on a .34 acre corner home site. Crews Lake Hills Estates is a gated community, located near shopping, parks, schools, walking trails, restaurants, local eateries and Polk Parkway for easy commute to all of Central Florida attractions and beaches!

Essential Information

  • MLS® #:
    L4959019
  • Price:
    $849,900
  • Bedrooms:
    4
  • Bathrooms:
    3.00
  • Full Baths:
    3
  • Square Footage:
    4,012
  • Acres:
    0.34
  • Year Built:
    1994
  • Type:
    Residential
  • Sub-Type:
    Single Family Residence
  • Style:
    Traditional
  • Status:
    Active

Community Information

  • Address:
    2409 Jenna Ln
  • Area:
    Lakeland
  • Subdivision:
    CREWS LAKE HILLS ESTATES
  • City:
    LAKELAND
  • County:
    Polk
  • State:
    FL
  • Zip Code:
    33813

Amenities

  • Amenities:
    Gated
  • Parking:
    Driveway, Garage Door Opener, Garage Faces Side
  • # of Garages:
    3
  • Has Pool:
    Yes

Interior

  • Interior Features:
    Ceiling Fans(s), Crown Molding, High Ceilings, Kitchen/Family Room Combo, Living Room/Dining Room Combo, PrimaryBedroom Upstairs, Stone Counters, Thermostat, Tray Ceiling(s), Walk-In Closet(s), Wet Bar
  • Appliances:
    Bar Fridge, Dishwasher, Disposal, Electric Water Heater, Microwave, Range, Refrigerator
  • Heating:
    Central
  • Cooling:
    Central Air, Mini-Split Unit(s)
  • Fireplace:
    Yes
  • Fireplaces:
    Family Room, Wood Burning

Exterior

  • Exterior Features:
    French Doors, Lighting, Rain Gutters, Sidewalk
  • Lot Description:
    Corner Lot, In County, Landscaped, Paved, Private, Unincorporated
  • Roof:
    Shingle
  • Foundation:
    Slab

School Information

  • Elementary:
    Valleyview Elem
  • Middle:
    Lakeland Highlands Middl
  • High:
    George Jenkins High

Additional Information

  • Days on Market:
    10

Listing Details

  • Listing Office:
    Remax Experts

Listing information courtesy of Remax Experts.

All listing information is deemed reliable but not guaranteed and should be independently verified through personal inspection by appropriate professionals. Listings displayed on this website may be subject to prior sale or removal from sale; availability of any listing should always be independently verified.

Listing information is provided for consumer personal, non-commercial use, solely to identify potential properties for potential purchase; all other use is strictly prohibited and may violate relevant federal and state law.

Listing data comes from My Florida Regional MLS.

Listing information last updated on February 10th, 2026 at 4:03am EST.