My Search Tools:

$790,000 - 16642 Se 80th Bellavista Circle, THE VILLAGES

3
Bedrooms
2
Baths
2,024
SQ. Feet
0.34
Acres

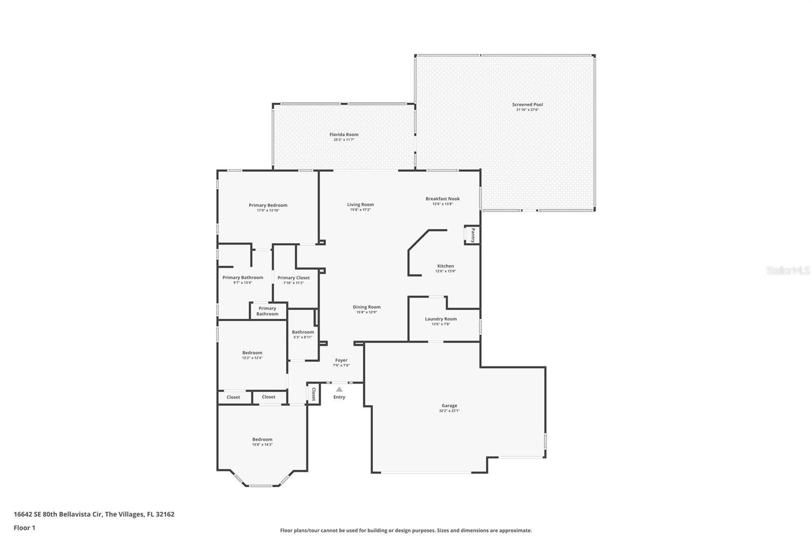
BOND PAID! Welcome to the tranquil north end of The Villages! The gorgeous 3/2 Live Oak (Lantana) is situated on the 6th fairway of Torri Pines championship golf course. This GOLF FRONT and POOL homesite has a backyard haven. The pool and private OUTSIDE SHOWER were installed in 2025. Located on an oversized lot, at the end of a cul-de-sac street in Calumet Grove has been impeccably updated from top to bottom. 4 ton HVAC (2024), ROOF (2022), NAVIEN TANKLESS WATER HEATER (2024), MITSUBISHI MINI SPLIT IN GARAGE (2024) The home includes a whole house water filtration system and a Solaris Air Filtration system (currently not connected). The interior was completely updated (2021). Light and bright kitchen cabinets, QUARTZ counters, STAINLESS appliances (2021), the INDUCTION stove and Kitchen’s Reverse Osmosis system continue to impress. The inside laundry boasts a pantry and Speed Queen washer/dryer (2021), stunning high end FLOORING and 5” baseboards were also installed throughout the home. Crown molding also graces the living area. The updated bathrooms feature QUARTZ counters, JETTA STONE showers, and FRAMELESS GLASS enclosures. ALL lights and fans throughout the home and garage were updated (2024) The Closets and the pantry were customized by CLOSETS BY DESIGN. PLANTATION SHUTTERS were installed throughout the home. (2024). All the WINDOWS in the home were replaced with ANDERSEN WINDOWS (2023), Low E glass WINDOWS on the LANAI (2021), LANAI MINI SPLIT (2021) West facing WINDOWS tinted (2024), Exterior painted (2023), Additional INSULATION over the entire home (2024), updated paver driveway and walk (2023), The GARAGE, including the GOLF CART GARAGE have a custom floor. PULL DOWN stairs allow access to the abundant storage of the attic. The entire home has had extra INSULATION added (2024). To make the home even more inviting, the LOCATION is over the top. Hop in your golf cart for a quick trip to the area's 4 executive golf courses, the 3 championship courses of NANCY LOPEZ, the Calumet Adult Pool, Mulberry Regional Recreational Center and The First Responders Recreation Center. You are able to find Resort Style Pools, Pitch -N-Putt, Pickle Ball, Platform Tennis, Arcade, Beach Volleyball, Fire Pit, Bocce Ball, Horseshoe, Shuffle Board courses and more. Shopping at Mulberry Plaza, The VA CLINIC and numerous other medical opportunities, restaurants, and shops are a short cart ride away. It is also a quick trip to entertainment, shows, and more shopping at The Savannah Center, Spanish Springs and Sumter Landing Town Squares. Square footage information is taken from the Public Record and is deemed reliable, but not guaranteed. Room dimensions are approximate and not guaranteed: buyer to verify. The 12x26 lanai is glass enclosed and has a mini split. However public record does not include it in the heated square footage.

Essential Information

  • MLS® #:
    G5106840
  • Price:
    $790,000
  • Bedrooms:
    3
  • Bathrooms:
    2.00
  • Full Baths:
    2
  • Square Footage:
    2,024
  • Acres:
    0.34
  • Year Built:
    2003
  • Type:
    Residential
  • Sub-Type:
    Single Family Residence
  • Status:
    Active

Community Information

  • Address:
    16642 Se 80th Bellavista Circle
  • Area:
    Lady Lake/The Villages
  • Subdivision:
    THE VILLAGES
  • City:
    THE VILLAGES
  • County:
    Marion
  • State:
    FL
  • Zip Code:
    32162

Amenities

  • Parking:
    Driveway, Garage Door Opener, Golf Cart Garage
  • # of Garages:
    2
  • View:
    Golf Course
  • Has Pool:
    Yes

Interior

  • Interior Features:
    Ceiling Fans(s), Crown Molding, Living Room/Dining Room Combo, Open Floorplan, Primary Bedroom Main Floor, Stone Counters, Thermostat, Walk-In Closet(s), Window Treatments
  • Appliances:
    Convection Oven, Dishwasher, Disposal, Dryer, Gas Water Heater, Kitchen Reverse Osmosis System, Microwave, Range, Refrigerator, Tankless Water Heater, Washer, Water Filtration System
  • Heating:
    Central, Natural Gas
  • Cooling:
    Central Air, Mini-Split Unit(s)

Exterior

  • Exterior Features:
    Outdoor Shower, Rain Gutters, Sliding Doors
  • Roof:
    Shingle
  • Foundation:
    Slab

Additional Information

  • Days on Market:
    23
  • Zoning:
    PUD

Listing Details

  • Listing Office:
    Sally Love Real Estate

Listing information courtesy of Sally Love Real Estate.

All listing information is deemed reliable but not guaranteed and should be independently verified through personal inspection by appropriate professionals. Listings displayed on this website may be subject to prior sale or removal from sale; availability of any listing should always be independently verified.

Listing information is provided for consumer personal, non-commercial use, solely to identify potential properties for potential purchase; all other use is strictly prohibited and may violate relevant federal and state law.

Listing data comes from My Florida Regional MLS.

Listing information last updated on February 16th, 2026 at 8:48am EST.