My Search Tools:

$6,000,000 - 910 Old Camp Road 110, THE VILLAGES

-
Bedrooms
-
Baths
11,798
SQ. Feet
0.34
Acres

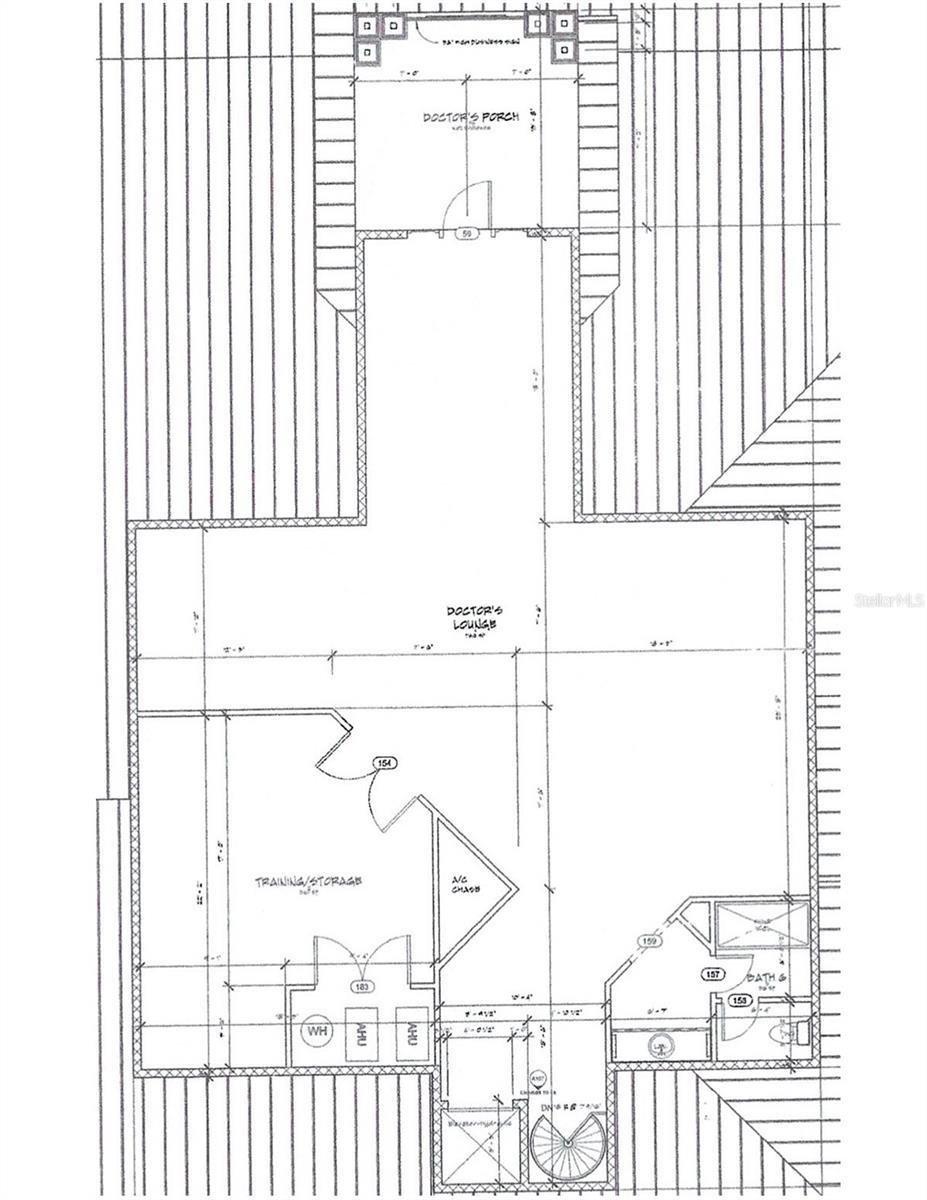
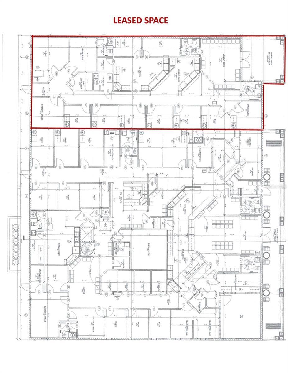
RARE OPPORTUNITY to purchase and have Fee Simple Title to a medical office building in The Villages. Sumter Landing Professional Plaza is located directly to the south of Lake Sumter Landing, the 2nd Town Square developed by The Villages. Convenient location in the heart of The Villages with golf cart access and plenty of parking. The building totals 11,798 SF (heated/cooled) plus 1,105 SF of covered porches. The Owners currently occupy 8,838 SF (heated/cooled) or 75% of the building and will close their respective medical practices upon a sale. The Owners share a common lobby (with 2 handicap restrooms) along with an X-ray room and MRI room. The space currently occupied by a Chiropractic practice has a reception desk, private waiting area, 6 semi-private therapy rooms, 4 private exam rooms, and 2 doctors offices with a shared bathroom between the two offices. The space occupied by an Orthopedic practice has a reception desk, private waiting area, 11 exam rooms, RN station, 3 bathrooms (1 is handicap), break room, and 3 small doctors offices. The 2nd floor space, occupied by the Owners, is 1,838 SF (heated/cooled) with an open work area, private office, bathroom, and large storage area, plus a 195 SF covered porch. It is accessible by stairs or elevator. The other unit totaling 2,960 SF (heated/cooled) is occupied by an urgent care practice with a 5 year lease ending 10/31/2029. The lease started 11/1/24 at $36/SF (2% annual escalators) and tenant pays 30% of the CAM expense to The Villages. This space has a private lobby, reception desk, 3 bathrooms (2 are handicap), procedure room, 6 private exam rooms, RN station, lab, pharmacy, break room, X-ray room and a doctors office. See floor plan in pictures.

Essential Information

  • MLS® #:
    G5105105
  • Price:
    $6,000,000
  • Bathrooms:
    0.00
  • Square Footage:
    11,798
  • Acres:
    0.34
  • Year Built:
    2007
  • Type:
    Commercial Sale
  • Sub-Type:
    Office
  • Status:
    Active

Community Information

  • Address:
    910 Old Camp Road 110
  • Area:
    Lady Lake/The Villages
  • City:
    THE VILLAGES
  • County:
    Sumter
  • State:
    FL
  • Zip Code:
    32162

Amenities

  • Parking:
    Common, Lighted

Interior

  • Heating:
    Central
  • Cooling:
    Central Air
  • # of Stories:
    2

Exterior

  • Lot Description:
    Sidewalk, Special Taxing District, Street Lights
  • Roof:
    Metal
  • Foundation:
    Slab

Additional Information

  • Days on Market:
    67
  • Zoning:
    RPUD

Listing Details

  • Listing Office:
    Grizzard Commercial Realestate

Listing information courtesy of Grizzard Commercial Realestate.

All listing information is deemed reliable but not guaranteed and should be independently verified through personal inspection by appropriate professionals. Listings displayed on this website may be subject to prior sale or removal from sale; availability of any listing should always be independently verified.

Listing information is provided for consumer personal, non-commercial use, solely to identify potential properties for potential purchase; all other use is strictly prohibited and may violate relevant federal and state law.

Listing data comes from My Florida Regional MLS.

Listing information last updated on February 7th, 2026 at 6:03am EST.