My Search Tools:

$825,000 - 5255 Coronado Parkway, NAPLES

6
Bedrooms
4
Baths
2,667
SQ. Feet
0.34
Acres

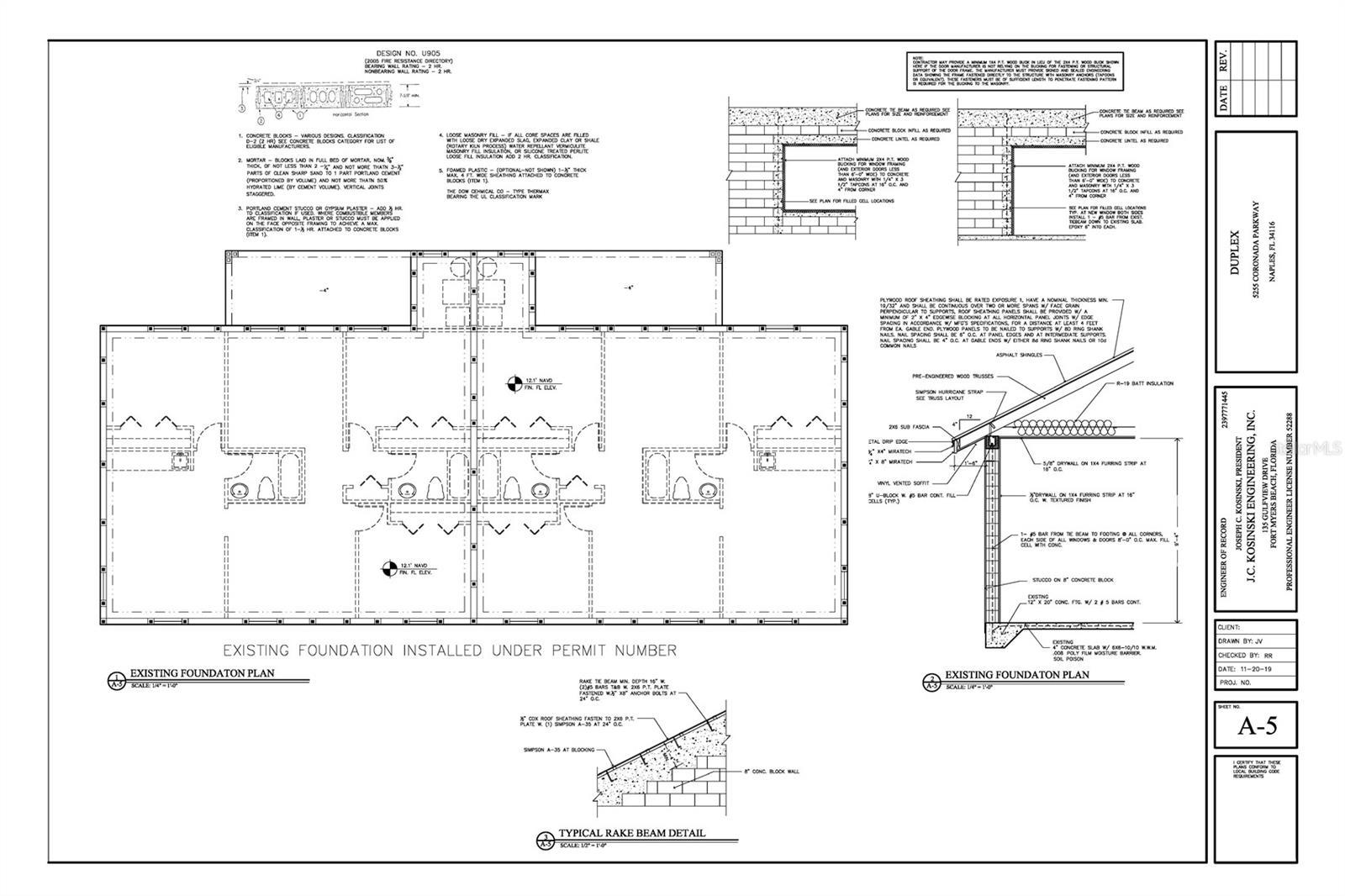
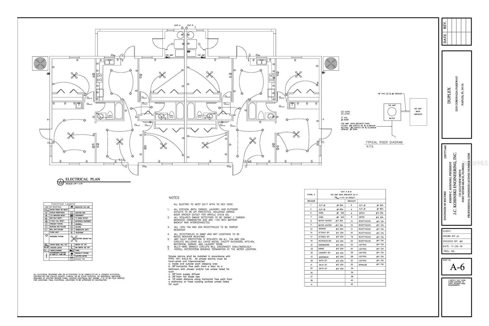
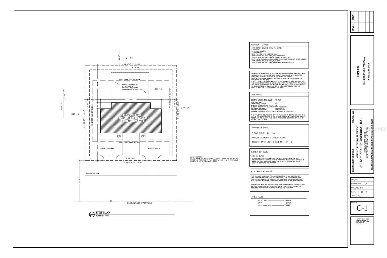
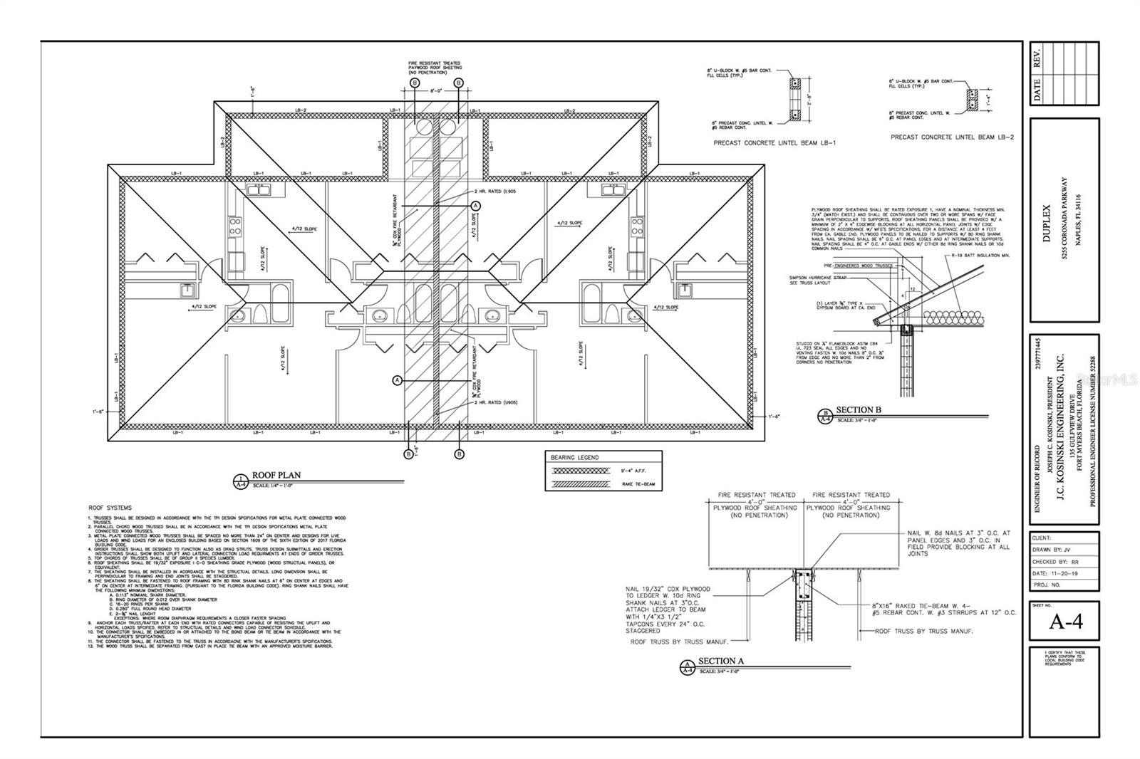
Under contract-accepting backup offers. Asking Price Has Been Further REDUCED ($165,000 from original list price) * Bring Your Offer Today * Updated Completion Date Below * Photos were updated 12/10/2025 * Make Sure to Compare this Income Property with Identical Floorplan Closed Sale (Sold) Comparable: SWFLA MLS 224049094 to help see the value in this Price Reduced Duplex / Quadruplex located at 5255 Coronado Pkwy, Naples, FL 34116, perfectly positioned just off Santa Barbara Blvd in Golden Gate City. This Upgraded New Construction (6 bed 4 bath) Three Bed Two Bath Duplex (each side) with a Laundry Room (each side) which can be used as 4 different units but is technically a Duplex with a total of 2,667 sq ft, Vinyl Plank Flooring throughout, Upgraded PGT Impact Windows and Colored Metal Roof in one of Naples / Collier County Hottest Markets. This unit, currently Under Construction with roof, stucco, drywall, bathrooms, etc complete, has a Total of Six Bedrooms and Four Bathrooms to offer a new owner many different possibilities, on a 0.34 acre lot 120 ft wide x 125 feet deep with an AH flood zone rating. This investment property is located close to everything for its occupants to fully enjoy the Desirable Southwest Florida Lifestyle. Florida Living at its best here on the Gulf of America for its residents to be able to enjoy all of the areas amenities, attractions and desirable lifestyle. This Investment Type Home for sale is suitable to Live in / Work from Home on one side and rent the other side; or Rent Both sides where there is additional flexibility due to its unique “Fourplex Floorplan Design”, all without HOA fees and condo commandoes. Property is offered $150,000 under appraised value, $975,000 appraisal is on hand, please feel free to ask. 5301 Coronado Pkwy just down the street, built in 2017 with the same floorplan but not with the same upgrades / specifications; MLS: 224049094 Sold / Closed on 11/27/2024 for $875,000. Then allow / adjust for upgraded Metal Roof, etc for brand new 5255 Coronado Pkwy. Please Note, for rental income we have a rental income projections sheet available from a local rental specialist. Estimated Monthly Rent: $3,225 per month, per side = $6,450 per month combined. Floorplans, Features Sheet, Appraisal, Disclosures and Rental Income Projections Sheet are available. (Driveways, Metal Roof, Stucco, Drywall, Floor Tile, Showers/baths are complete) 12/10/2025 Update: Seller plans to have all construction finished including driveways, kitchen and a/c with CO issued by end of December 2025. There is a Yard Sign to help locate. HT232.

Essential Information

  • MLS® #:
    G5095238
  • Price:
    $825,000
  • Bedrooms:
    6
  • Bathrooms:
    4.00
  • Square Footage:
    2,667
  • Acres:
    0.34
  • Year Built:
    2025
  • Type:
    Residential Income
  • Sub-Type:
    Duplex
  • Status:
    Pending

Community Information

  • Address:
    5255 Coronado Parkway
  • Area:
    Naples
  • Subdivision:
    GOLDEN GATE CITY
  • City:
    NAPLES
  • County:
    Collier
  • State:
    FL
  • Zip Code:
    34116

Amenities

  • Parking:
    Driveway, Other, Parking Pad

Interior

  • Interior Features:
    Built-in Features
  • Appliances:
    Dishwasher, Electric Water Heater, Microwave, Range, Refrigerator
  • Heating:
    Central, Electric
  • Cooling:
    Central Air

Exterior

  • Exterior Features:
    Garden, Other, Private Mailbox, Sidewalk
  • Lot Description:
    In County, Level, Paved
  • Roof:
    Metal
  • Foundation:
    Slab

Additional Information

  • Days on Market:
    312
  • Zoning:
    RMF-12

Listing Details

  • Listing Office:
    239realestatedeals.com Llc

Listing information courtesy of 239realestatedeals.com Llc.

All listing information is deemed reliable but not guaranteed and should be independently verified through personal inspection by appropriate professionals. Listings displayed on this website may be subject to prior sale or removal from sale; availability of any listing should always be independently verified.

Listing information is provided for consumer personal, non-commercial use, solely to identify potential properties for potential purchase; all other use is strictly prohibited and may violate relevant federal and state law.

Listing data comes from My Florida Regional MLS.

Listing information last updated on February 12th, 2026 at 2:33pm EST.