My Search Tools:

$1,100,000 - 443 Juniper Lane, ORMOND BEACH

5
Bedrooms
6
Baths
3,794
SQ. Feet
5.97
Acres

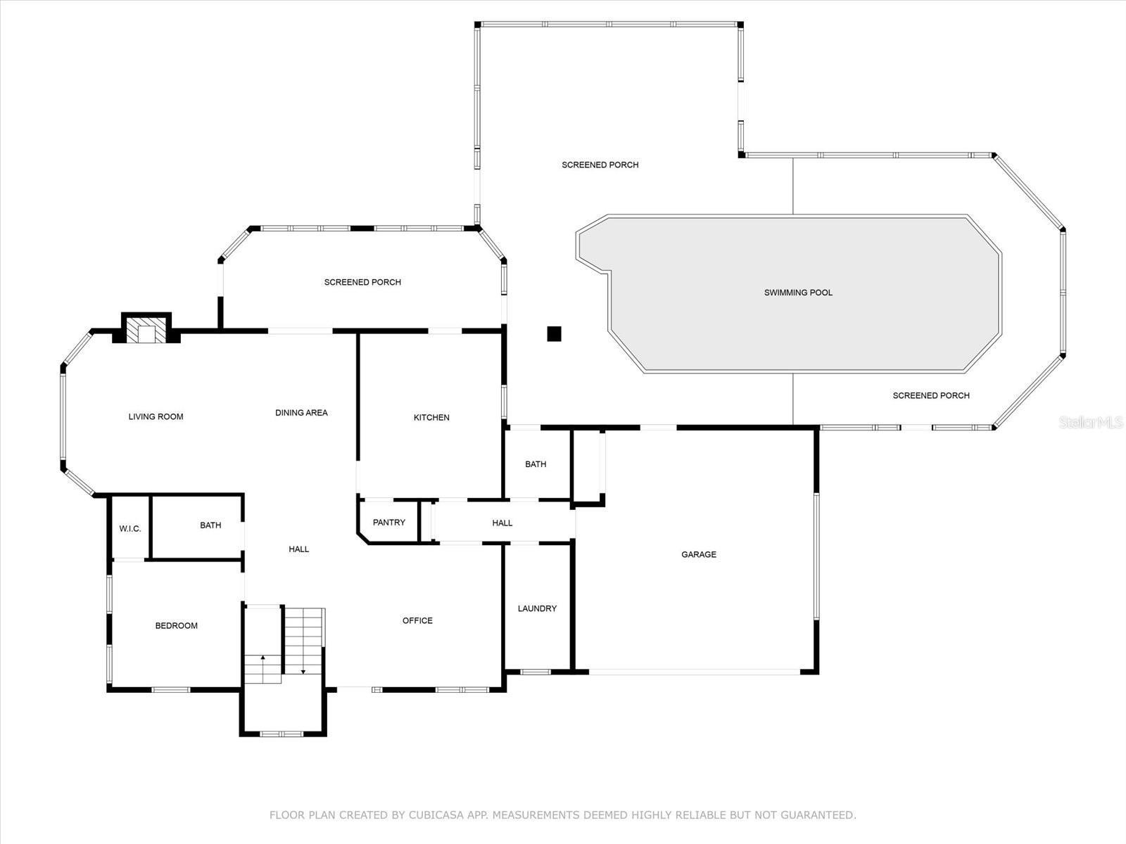
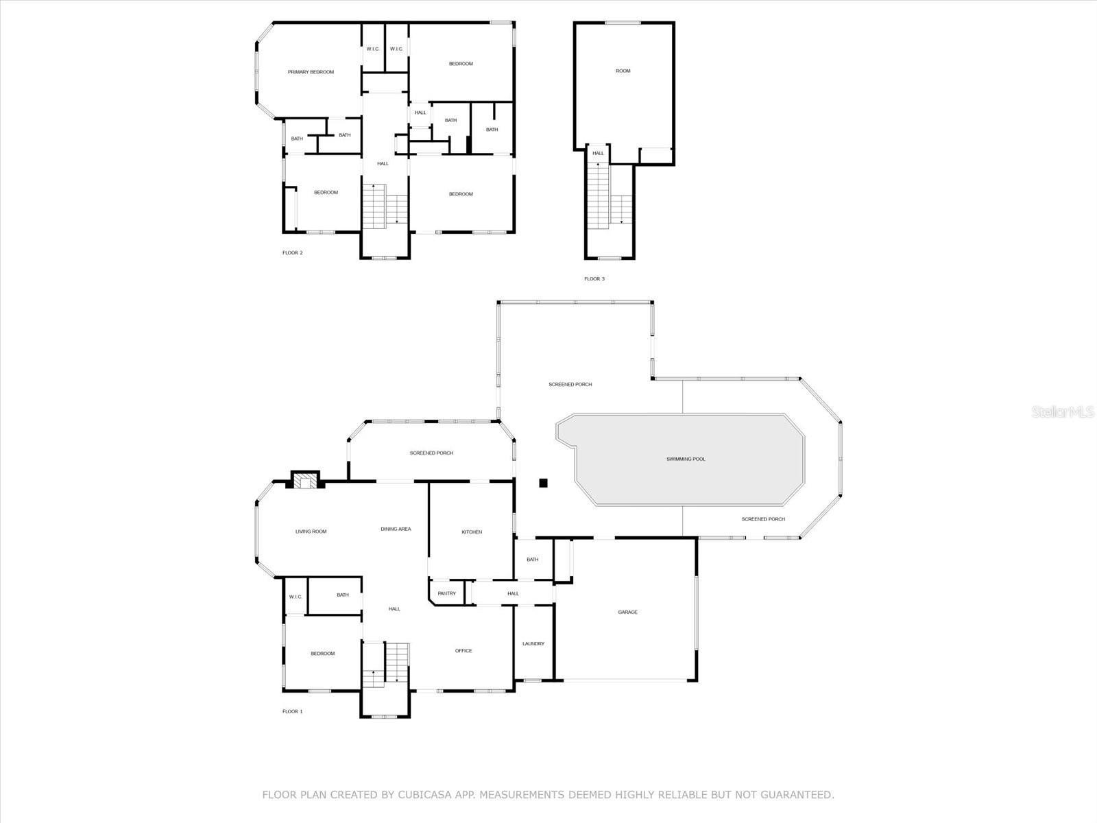
Nestled on just under 6 acres of unspoiled land, this exquisite and private residence offers the perfect blend of elegance and tranquility. As you approach the property, you'll be greeted by a grand gated entrance, with a charming pavered driveway leading you past a serene man-made pond. The 2008 custom-built Spanish-inspired home offers both comfort and style boasting 5 spacious bedrooms, 5.5 baths, and an oversized two-car garage. Inside, the home features a welcoming living room, a dining room, and a cozy den just off the foyer. The bright and airy enclosed Florida room is an ideal spot to unwind in the afternoons. With one bedroom located on the first floor and the remaining four on the second, each with its own private bath, everyone in the family (or your guests) can enjoy their own space and privacy. The third floor offers a versatile bonus room that can be transformed into a home theater, playroom, or private office. The kitchen is a chef's dream, featuring tall maple cabinetry, a center island with a sink, double ovens, and a convenient warming shelf. A spacious walk-in pantry provides ample storage. The kitchen offers easy access to the dining room, hallway, and opens up to the pool area, making it perfect for both cooking and entertaining. Outside, the expansive pool area is fully screened and includes a newly built sitting area, perfect for outdoor gatherings or simply enjoying the beautiful surroundings. The home is also equipped with a Photovoltaic Solar System, significantly lowering your electric bills—so much so that at times FPL may even pay you for the energy it produces. Come see this stunning home for yourself and choose the bedroom that best fits your lifestyle—whether you prefer a sun-drenched retreat or a room with its own private walk-out balcony. This home truly offers something for everyone.

Essential Information

  • MLS® #:
    FC307839
  • Price:
    $1,100,000
  • Bedrooms:
    5
  • Bathrooms:
    6.00
  • Full Baths:
    5
  • Half Baths:
    1
  • Square Footage:
    3,794
  • Acres:
    5.97
  • Year Built:
    2008
  • Type:
    Residential
  • Sub-Type:
    Single Family Residence
  • Style:
    Mediterranean
  • Status:
    Active

Community Information

  • Address:
    443 Juniper Lane
  • Area:
    Ormond Beach
  • Subdivision:
    PLANTATION PINES MAP
  • City:
    ORMOND BEACH
  • County:
    Volusia
  • State:
    FL
  • Zip Code:
    32174

Amenities

  • Parking:
    Garage Door Opener
  • # of Garages:
    2
  • View:
    Pool, Trees/Woods, Water
  • Has Pool:
    Yes

Interior

  • Interior Features:
    Ceiling Fans(s), Primary Bedroom Main Floor, Vaulted Ceiling(s)
  • Appliances:
    Built-In Oven, Cooktop, Dishwasher, Disposal, Electric Water Heater, Refrigerator, Water Softener
  • Heating:
    Central, Electric, Zoned
  • Cooling:
    Central Air, Ductless, Zoned
  • Fireplace:
    Yes
  • Fireplaces:
    Wood Burning

Exterior

  • Exterior Features:
    Other
  • Roof:
    Tile
  • Foundation:
    Slab

Additional Information

  • Days on Market:
    329
  • Zoning:
    01R4

Listing Details

  • Listing Office:
    Simply Real Estate

Listing information courtesy of Simply Real Estate.

All listing information is deemed reliable but not guaranteed and should be independently verified through personal inspection by appropriate professionals. Listings displayed on this website may be subject to prior sale or removal from sale; availability of any listing should always be independently verified.

Listing information is provided for consumer personal, non-commercial use, solely to identify potential properties for potential purchase; all other use is strictly prohibited and may violate relevant federal and state law.

Listing data comes from My Florida Regional MLS.

Listing information last updated on January 27th, 2026 at 11:35am EST.