My Search Tools:

$799,000 - 9588 Galaxie Circle, PORT CHARLOTTE

3
Bedrooms
2
Baths
2,142
SQ. Feet
0.32
Acres

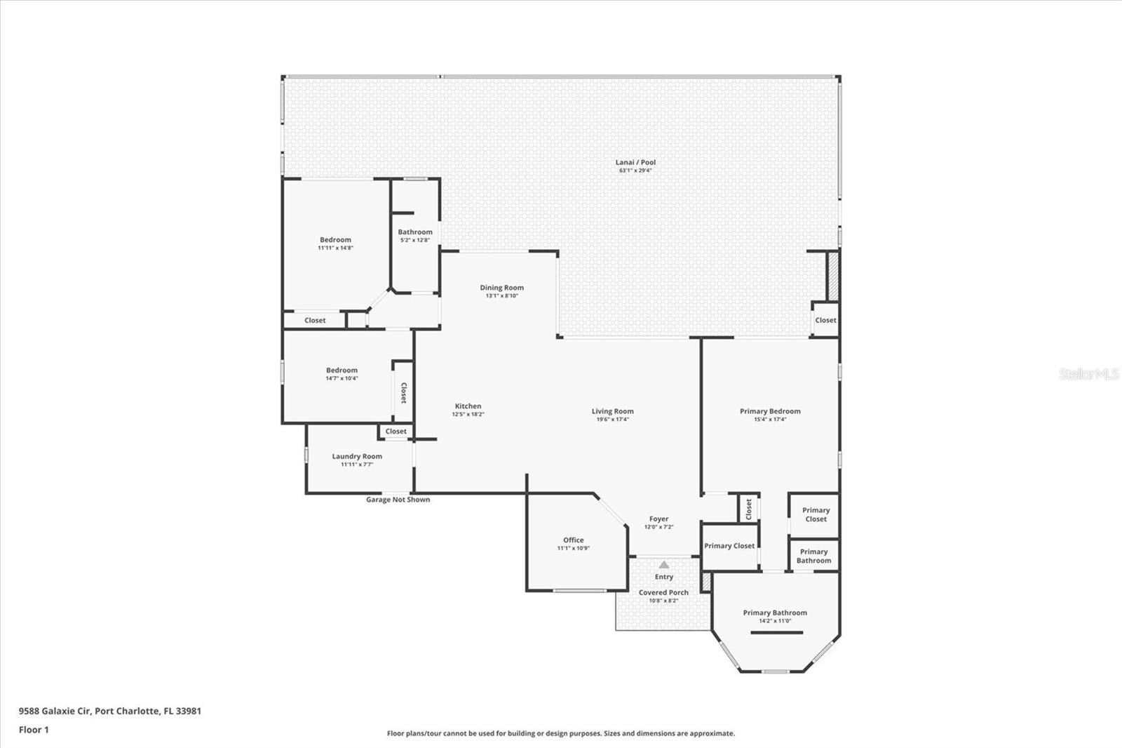
Welcome to refined waterfront living at 9588 Galaxie Circle, where luxury, comfort, and the Florida lifestyle come together seamlessly. Set on an exceptional SOUTHERN FACING, GULF-ACCESS key lot, this beautifully crafted home offers expansive intersecting canal views, breathtaking sunsets, and sun-filled days year-round. Designed for effortless indoor–outdoor living, the open great room features soaring ceilings and disappearing 90 degree corner sliders that flow directly onto the screened lanai—creating an ideal setting for both entertaining and everyday relaxation. Step outside to your private retreat, complete with a SALTWATER POOL, PRIVATE SPA, OUTDOOR KITCHEN, and even an inviting FIREPIT—perfect for gathering during the cooler months. The lanai is further elevated by a stunning wood-accent ceiling (2026), adding warmth and architectural character to the outdoor living space. Boating enthusiasts will appreciate the PRIVATE DOCK and quick access to open water, making it easy to enjoy sunset cruises, fishing, or days on the harbor. When you’re ready to explore beyond the water, the pristine beaches of Boca Grande and Manasota Key are just a short drive away. Inside, the split, open floor plan centers around a beautifully appointed kitchen featuring upgraded cabinetry, stone countertops, stainless steel appliances, stunning backsplash and a wine refrigerator—perfectly suited for hosting family and friends. A versatile DEN offers flexible space for a home office or additional living area. The primary suite provides a peaceful escape with canal views, direct lanai access, dual closets, and a spa-inspired bathroom. Guest bedrooms are thoughtfully designed with one room featuring sliding glass doors leading out to the lanai, and a pool-access bath ideal for indoor–outdoor entertaining! Additional highlights include a NEW ROOF (2023), hurricane IMPACT WINDOWS AND DOORS, and a finished THREE-CAR GARAGE with epoxy flooring—ideal for extra vehicles, storage, or recreational toys. Located in the premier boating community of South Gulf Cove, this exceptional home offers the perfect blend of coastal elegance and everyday comfort. Whether enjoyed seasonally or year-round, this is Florida living at its finest. Give us a call to schedule your own private showing, today!

Essential Information

  • MLS® #:
    D6145579
  • Price:
    $799,000
  • Bedrooms:
    3
  • Bathrooms:
    2.00
  • Full Baths:
    2
  • Square Footage:
    2,142
  • Acres:
    0.32
  • Year Built:
    2018
  • Type:
    Residential
  • Sub-Type:
    Single Family Residence
  • Style:
    Florida
  • Status:
    Active

Community Information

  • Address:
    9588 Galaxie Circle
  • Area:
    Port Charlotte
  • Subdivision:
    PORT CHARLOTTE SEC 071
  • City:
    PORT CHARLOTTE
  • County:
    Charlotte
  • State:
    FL
  • Zip Code:
    33981

Amenities

  • Parking:
    Driveway, Garage Door Opener
  • # of Garages:
    3
  • Is Waterfront:
    Yes
  • Waterfront:
    Canal - Brackish
  • Has Pool:
    Yes

Interior

  • Interior Features:
    Ceiling Fans(s), Crown Molding, Dry Bar, Eat-in Kitchen, High Ceilings, Kitchen/Family Room Combo, Open Floorplan, Split Bedroom, Stone Counters, Thermostat, Tray Ceiling(s), Walk-In Closet(s)
  • Appliances:
    Dishwasher, Disposal, Dryer, Microwave, Range, Range Hood, Refrigerator, Washer, Wine Refrigerator
  • Heating:
    Central
  • Cooling:
    Central Air
  • # of Stories:
    1

Exterior

  • Exterior Features:
    Outdoor Kitchen, Rain Gutters, Sidewalk, Sliding Doors
  • Roof:
    Shingle
  • Foundation:
    Stem Wall

School Information

  • Elementary:
    Vineland Elementary
  • Middle:
    L.A. Ainger Middle
  • High:
    Lemon Bay High

Additional Information

  • Days on Market:
    28
  • Zoning:
    RSF3.5

Listing Details

  • Listing Office:
    Paradise Exclusive Inc

Listing information courtesy of Paradise Exclusive Inc.

All listing information is deemed reliable but not guaranteed and should be independently verified through personal inspection by appropriate professionals. Listings displayed on this website may be subject to prior sale or removal from sale; availability of any listing should always be independently verified.

Listing information is provided for consumer personal, non-commercial use, solely to identify potential properties for potential purchase; all other use is strictly prohibited and may violate relevant federal and state law.

Listing data comes from My Florida Regional MLS.

Listing information last updated on February 14th, 2026 at 7:48pm EST.