My Search Tools:

$1,350,000 - 8772 Little Gasparilla Island, PLACIDA

2
Bedrooms
2
Baths
1,586
SQ. Feet
0.18
Acres

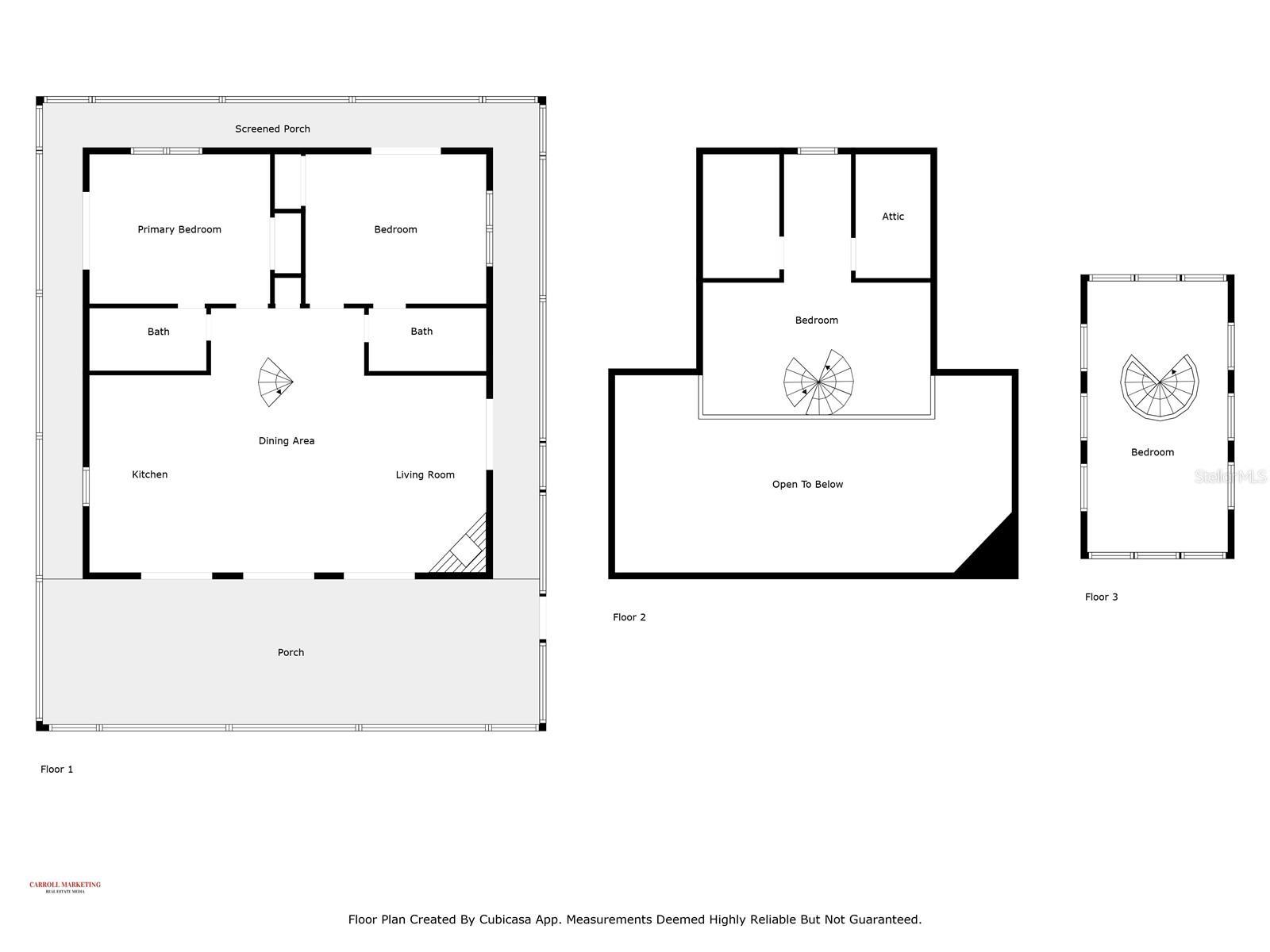
This beautiful home is one of the iconic twin bayfront homes on Little Gasparilla Island, a bridgeless barrier island off the Cape Haze peninsula. A 10-minute boat ride brings you to the new shared boat dock with 10,000# boat lift. The home was updated in 2023, including a new roof, and comes furnished. On the first floor there are 2 bedrooms, 2 bathrooms, living room, kitchen, and laundry closet. The living room and kitchen are open and spacious with vaulted wood ceilings and three sets of French doors on the front of the house that lead out to the large screened in front porch that overlooks Placida Harbor. From there you can sit and watch the sunrise, see the boats go by, the dolphins and manatees swimming, and the birds diving for fish. In the living room there is an electric fireplace with a modern design. The updated kitchen has new soft close cabinets, glass tile backsplash, under counter lighting, stainless steel appliances, quarts countertops, and a large island with seating. Both bathrooms have new vanities with quarts counter tops, and new tile around the shower and tub. Both bedrooms have French doors that lead out to the covered, wrap-around deck. All the windows and doors are impact glass. The stackable, front load, washer and dryer are cleverly hidden behind a barndoor in the hall between the two bedrooms. Up the spiral staircase leads you to the loft, that is being used as a bedroom, with vaulted wood ceilings and a cozy nook that could be used as an office or reading space, and then further up the staircase you come to the 11’ x 21’ cupola that has shiplap walls, wood ceiling, and stunning views of the bay and the island and is also being used as a bedroom. The lot behind the home, which is almost 2 acres in size, is also for sale MLS #D6143898 and is where the shared septic system is located. The lot will need to be purchased with the home. Little Gasparilla Island doesn’t have any grocery stores, restaurants, or shops but we have 3 ½ miles of uncrowded beach to wander on and collect seashells and shark’s teeth, swim, or sit with a good book and soak up the sun. There is great fishing in the surrounding waters for redfish, snook, snapper, trout and more. By water there are many wonderful restaurants to cruise to. Then at the end of the day meet your friendly neighbors at the water's edge to watch the sun set on another blissful day in paradise. Come and see this lovely home and find out what it’s like to live on island time.

Essential Information

  • MLS® #:
    D6143924
  • Price:
    $1,350,000
  • Bedrooms:
    2
  • Bathrooms:
    2.00
  • Full Baths:
    2
  • Square Footage:
    1,586
  • Acres:
    0.18
  • Year Built:
    1986
  • Type:
    Residential
  • Sub-Type:
    Single Family Residence
  • Status:
    Active

Community Information

  • Address:
    8772 Little Gasparilla Island
  • Area:
    Placida
  • Subdivision:
    SEABOARD
  • City:
    PLACIDA
  • County:
    Charlotte
  • State:
    FL
  • Zip Code:
    33946

Amenities

  • Is Waterfront:
    Yes
  • Waterfront:
    Bay/Harbor

Interior

  • Interior Features:
    Cathedral Ceiling(s), Ceiling Fans(s), Eat-in Kitchen, Primary Bedroom Main Floor, Stone Counters
  • Appliances:
    Dishwasher, Disposal, Dryer, Electric Water Heater, Microwave, Range, Refrigerator, Washer
  • Heating:
    Central, Electric
  • Cooling:
    Central Air
  • Fireplace:
    Yes
  • Fireplaces:
    Electric
  • # of Stories:
    3

Exterior

  • Exterior Features:
    French Doors, Lighting, Rain Gutters
  • Roof:
    Metal
  • Foundation:
    Stilt/On Piling

Additional Information

  • Days on Market:
    118
  • Zoning:
    BBI

Listing Details

  • Listing Office:
    Tarpon Real Estate, Inc.

Listing information courtesy of Tarpon Real Estate, Inc..

All listing information is deemed reliable but not guaranteed and should be independently verified through personal inspection by appropriate professionals. Listings displayed on this website may be subject to prior sale or removal from sale; availability of any listing should always be independently verified.

Listing information is provided for consumer personal, non-commercial use, solely to identify potential properties for potential purchase; all other use is strictly prohibited and may violate relevant federal and state law.

Listing data comes from My Florida Regional MLS.

Listing information last updated on January 19th, 2026 at 10:20am EST.