My Search Tools:

$1,100,000 - 3850 Acline Road, PUNTA GORDA

3
Bedrooms
3
Baths
3,466
SQ. Feet
3.7
Acres

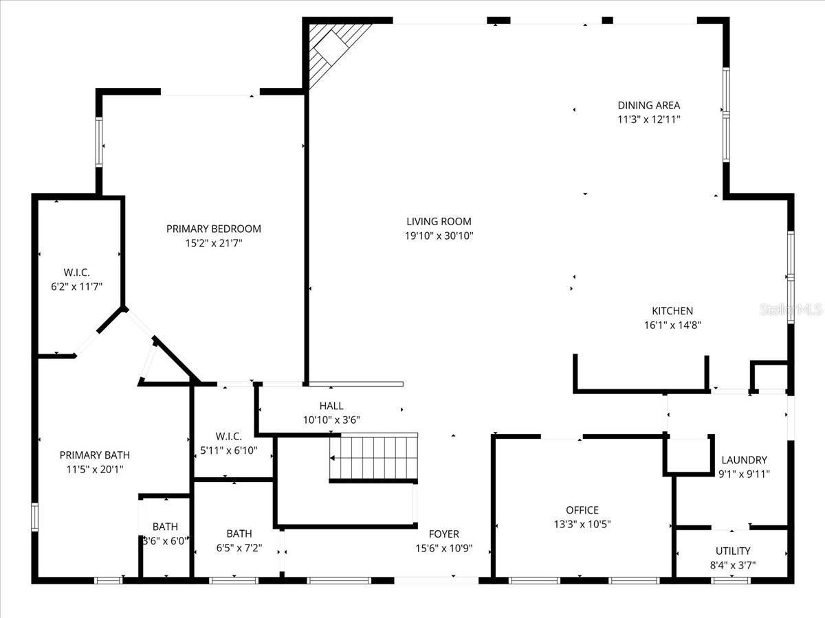
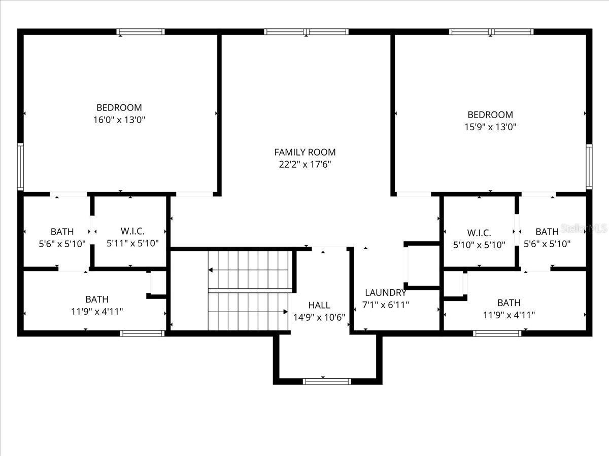
Welcome to your private oasis along Alligator Creek, where natural beauty meets everyday convenience. This picturesque custom built 3.70-acre property is nestled in a quiet rural community with paved roads, offering a rare combination of privacy and easy access to modern amenities. A long driveway, framed by majestic oak trees, leads to a serene, secluded setting that feels worlds away—yet is just minutes from shopping, dining, and the charm of downtown. The property includes a new metal roof (2023), a 1,000 sq. ft. steel building, and a 1,080 sq. ft. two-door detached garage, providing ample space for storage, a workshop, or hobbies. The impressive two-story residence offers 3,466 sq. ft. of living space with 3 bedrooms and 3.5 bathrooms, delivering generous room for both everyday living and entertaining. A spacious front porch supported by classic white columns create a warm & inviting first impression. The porch provides plenty of space for outdoor seating, perfect for relaxing while enjoying the peaceful surroundings. Large double front doors serve as a striking focal point for the entryway. Inside, the open-concept living area blends modern comfort with warm, natural finishes. Floor-to-ceiling windows/sliding doors along the back wall flood the space with natural light while framing serene views of the greenery beyond. A sleek fireplace adds both style and functionality, while the dining area, accented by elegant lighting, is perfectly positioned to take advantage of the expansive outdoor vistas. The modern chef’s kitchen features warm wood cabinetry, stainless steel appliances, large center island with gas cooktop & vent hood, exotic granite countertops, stylish pendant lighting, and a walk-in pantry conveniently located off the laundry room. The first floor also includes a private office and a convenient half bath, ideal for guests or work-from-home needs. The primary suite is conveniently located on the main floor and offers French doors opening to a screened-in section of the back deck, a custom walk-in closet, and a luxurious spa-inspired bathroom. This master bath combines sophisticated design with contemporary finishes: a spacious walk-in shower anchors the room, featuring floor-to-ceiling tile, decorative mosaic accents. Opposite the shower, a freestanding soaking tub rests against a rich wood accent wall. The extended vanity offers abundant storage with beautifully crafted dark wood cabinetry and sleek countertops, complemented by pendant lights and large mirrors that enhance the room’s brightness. The second floor opens to a bright family room with an attached bonus room, perfect for a media area, playroom, or additional office space. Two additional bedrooms are carpeted, each featuring its own walk-in closet and en-suite bathroom with walk-in shower, providing comfort and privacy for family or guests. Outdoor living is a true highlight of this home. The back deck features a covered pergola area and a screened-in section off the primary bedroom, all overlooking an expansive backyard. Meandering pathways lead down to the waterfront, where patio areas and a firepit create the perfect setting for entertaining or relaxing while enjoying the tranquil water views. Whether you’re seeking a tranquil waterside retreat, a private homestead, or a property with room to expand, this rare offering delivers the perfect balance of serenity, functionality. **PLEASE ENJOY THE 3D INTERACTIVE VIRTUAL TOUR ASSOCIATED WITH THIS LISTING**

Essential Information

  • MLS® #:
    C7520307
  • Price:
    $1,100,000
  • Bedrooms:
    3
  • Bathrooms:
    3.00
  • Full Baths:
    3
  • Square Footage:
    3,466
  • Acres:
    3.70
  • Year Built:
    1998
  • Type:
    Residential
  • Sub-Type:
    Single Family Residence
  • Status:
    Active

Community Information

  • Address:
    3850 Acline Road
  • Area:
    Punta Gorda
  • Subdivision:
    PUNTA GORDA
  • City:
    PUNTA GORDA
  • County:
    Charlotte
  • State:
    FL
  • Zip Code:
    33950

Amenities

  • Parking:
    Boat, Circular Driveway, Covered, Driveway, Garage Door Opener, Ground Level, Off Street, Oversized, Parking Pad, RV Garage, RV Access/Parking, Workshop in Garage
  • # of Garages:
    6
  • View:
    Trees/Woods, Water
  • Is Waterfront:
    Yes
  • Waterfront:
    Creek

Interior

  • Interior Features:
    Built-in Features, Ceiling Fans(s), Eat-in Kitchen, High Ceilings, Open Floorplan, Primary Bedroom Main Floor, Stone Counters, Walk-In Closet(s), Window Treatments
  • Appliances:
    Built-In Oven, Cooktop, Dishwasher, Disposal, Dryer, Electric Water Heater, Exhaust Fan, Microwave, Refrigerator, Washer
  • Heating:
    Central, Electric
  • Cooling:
    Central Air
  • Fireplace:
    Yes
  • Fireplaces:
    Living Room
  • # of Stories:
    2

Exterior

  • Exterior Features:
    Lighting, Rain Gutters, RV Hookup, Sliding Doors, Storage
  • Lot Description:
    Landscaped, Oversized Lot, Paved
  • Roof:
    Metal
  • Foundation:
    Slab

Additional Information

  • Days on Market:
    8
  • Zoning:
    RE1

Listing Details

  • Listing Office:
    Marina Park Realty Llc

Listing information courtesy of Marina Park Realty Llc.

All listing information is deemed reliable but not guaranteed and should be independently verified through personal inspection by appropriate professionals. Listings displayed on this website may be subject to prior sale or removal from sale; availability of any listing should always be independently verified.

Listing information is provided for consumer personal, non-commercial use, solely to identify potential properties for potential purchase; all other use is strictly prohibited and may violate relevant federal and state law.

Listing data comes from My Florida Regional MLS.

Listing information last updated on January 27th, 2026 at 1:20am EST.