My Search Tools:

$1,100,000 - 128 West Charlotte Avenue, PUNTA GORDA

-
Bedrooms
-
Baths
4,917
SQ. Feet
0.24
Acres

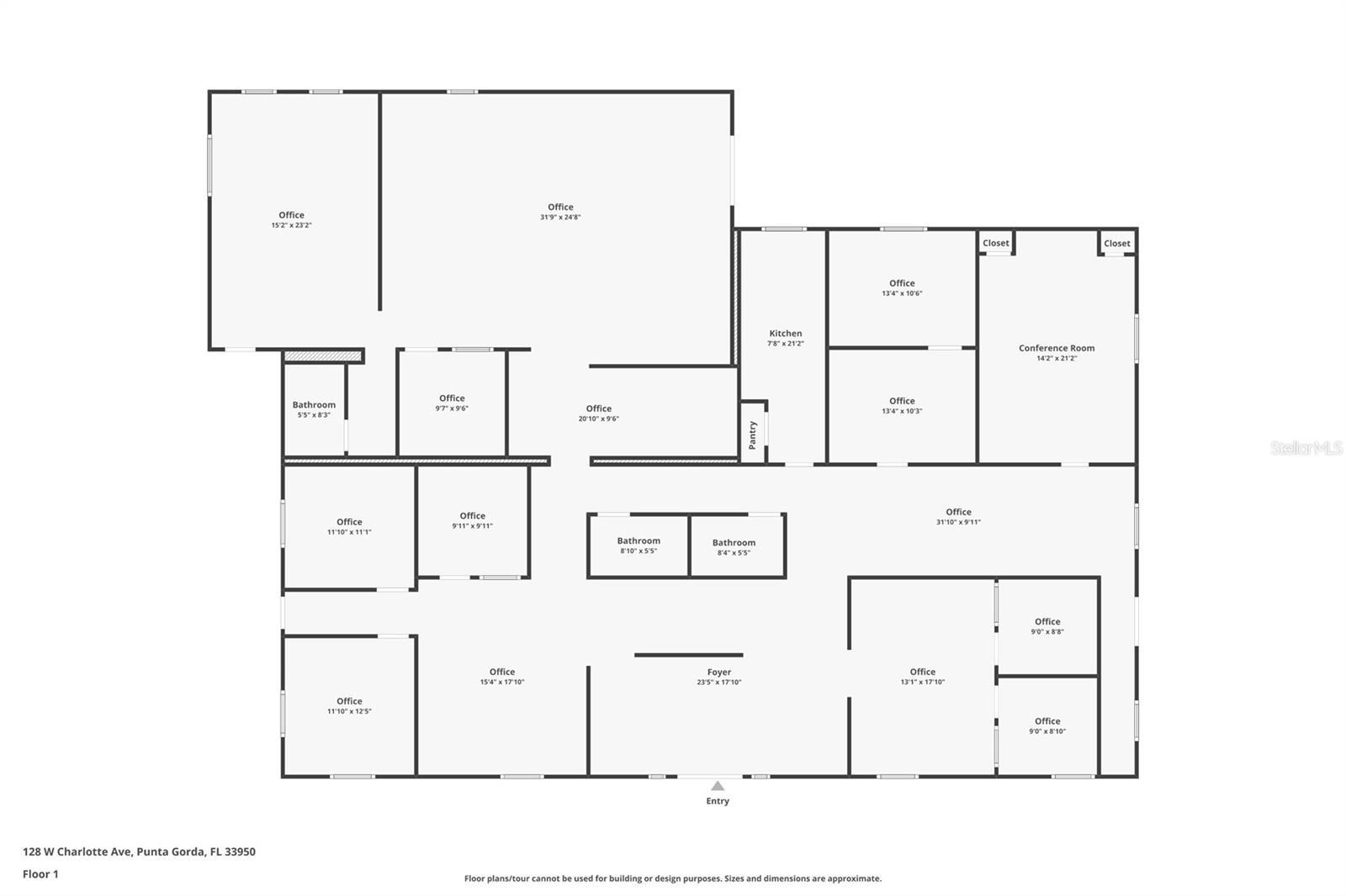
Position your business where visibility, accessibility, and community converge in downtown Punta Gorda. This established professional office building offers approximately 4,917± square feet of highly flexible commercial space designed to adapt to a variety of business needs. The interior layout includes multiple private offices, a conference room, reception area, kitchen/break room, three restrooms, and several large multi-use areas, allowing for efficient workflow and customizable configurations. The property provides parking on three sides plus convenient street parking, enhancing ease of access for staff and clients alike. With quick access to US-41 and immediate proximity to downtown businesses, restaurants, waterfront parks, and civic amenities, the location delivers excellent connectivity and day-to-day convenience. Punta Gorda is widely recognized for its vibrant, welcoming downtown and strong sense of community, making it a desirable destination for professional, medical, and service-oriented users. Zoned City Center District, this property allows for a broad range of permitted commercial uses and represents a compelling opportunity within one of the city’s most sought-after commercial corridors.

Essential Information

  • MLS® #:
    C7520206
  • Price:
    $1,100,000
  • Bathrooms:
    0.00
  • Square Footage:
    4,917
  • Acres:
    0.24
  • Year Built:
    1953
  • Type:
    Commercial Sale
  • Sub-Type:
    Office
  • Status:
    Active

Community Information

  • Address:
    128 West Charlotte Avenue
  • Area:
    Punta Gorda
  • Subdivision:
    PUNTA GORDA
  • City:
    PUNTA GORDA
  • County:
    Charlotte
  • State:
    FL
  • Zip Code:
    33950

Amenities

  • Parking:
    Parking Spaces - 6 to 12

Interior

  • Cooling:
    Central Air
  • # of Stories:
    1

Exterior

  • Lot Description:
    Corner Lot, FloodZone, City Limits, Sidewalk, Street Lights
  • Roof:
    Shingle
  • Foundation:
    Slab

Additional Information

  • Days on Market:
    8
  • Zoning:
    CC

Listing Details

  • Listing Office:
    Coldwell Banker Sunstar Realty

Listing information courtesy of Coldwell Banker Sunstar Realty.

All listing information is deemed reliable but not guaranteed and should be independently verified through personal inspection by appropriate professionals. Listings displayed on this website may be subject to prior sale or removal from sale; availability of any listing should always be independently verified.

Listing information is provided for consumer personal, non-commercial use, solely to identify potential properties for potential purchase; all other use is strictly prohibited and may violate relevant federal and state law.

Listing data comes from My Florida Regional MLS.

Listing information last updated on January 26th, 2026 at 11:18pm EST.